Maison à vendre |  Saint-Lumine-de-Coutais |  3 pièces | 88 m²
254 842 €
Réf : 600-206
Visitez en avant-première

Découvrez cette charmante maison offrant un cadre de vie agréable et fonctionnel. Elle se compose de deux chambres, d’un spacieux salon-séjour lumineux agrémenté d’un poêle, idéal pour des moments chaleureux en toute saison, ainsi que d’une cuisine aménagée et équipée. Un garage vient compléter ce bien.

  • Surface habitable : 88 m²
  • Superficie terrain : 362 m²
  • Pièce(s) : 3
  • Chambre(s) : 2
  • Cuisine : Américaine aménagée
  • Salle(s) de bain : 1
  • WC : 1
  • Chauffage : Électrique
  • Cheminée : Oui
  • Terrasse : Oui
  • Garage(s) : 1
  • Parking(s) : 2
A
B
C
D
E
F
G
Dont Emission de gaz
à effet de serre
A
B
C
D
E
F
G
Afficher le DPE

Les informations sur les risques auxquels ce bien est exposé sont disponible sur le site Géorisques :
www.georisques.gouv.fr

Photo originale Photo retouchée
Laissez-vous inspirer par nos décorateurs

Ils ont imaginé pour vous cet aménagement virtuel non contractuel. L'extérieur a été entièrement repensé afin de révéler tout son potentiel.

> Prendre rendez-vous pour visiter
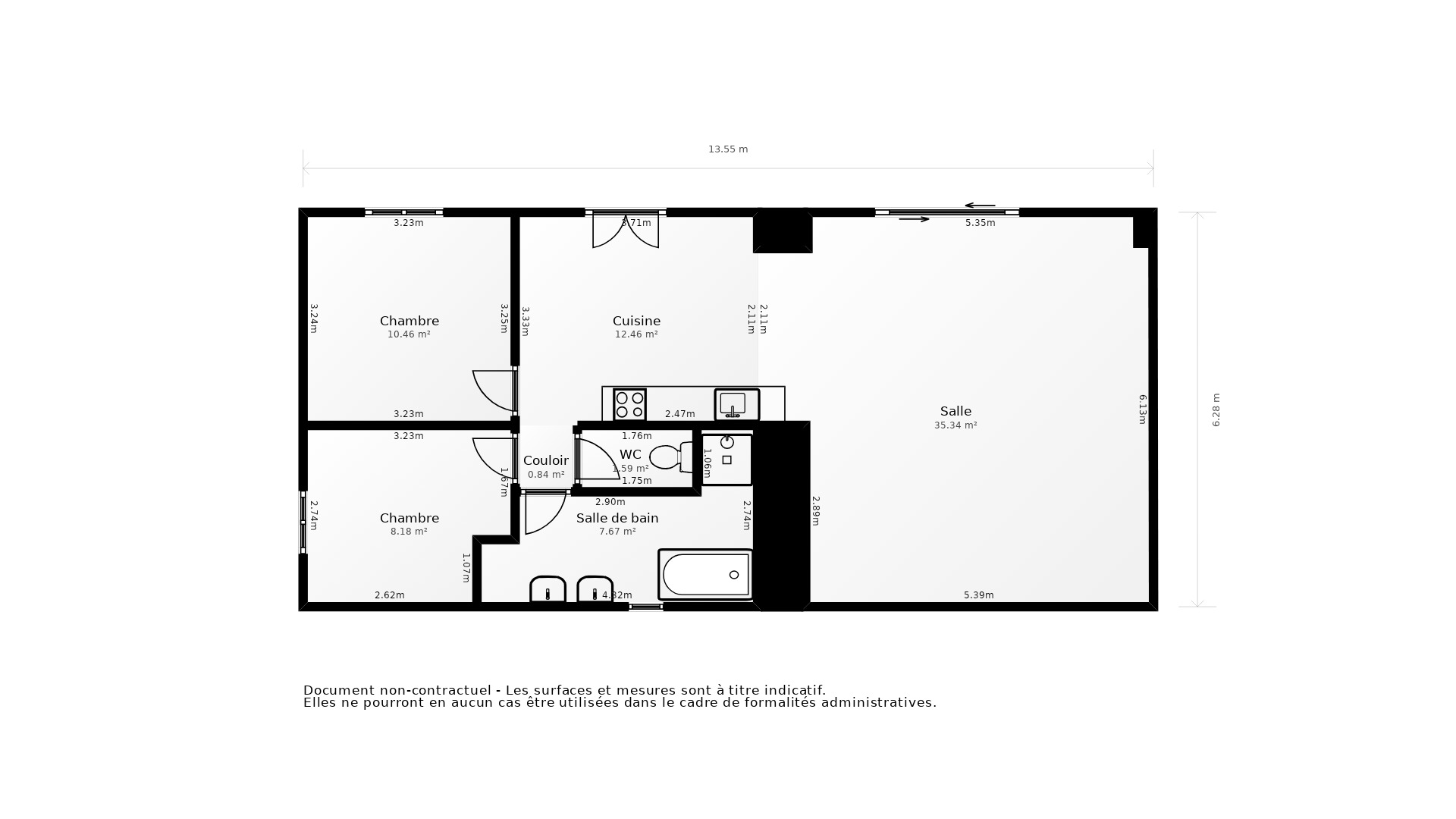
Prenez les mesures

Ce plan 2D représente la structure complète et précise du bien. La surface de chaque pièce est précisée à titre informatif. Ce plan ne se substitue en aucun cas à un diagnostic loi Carrez réalisé par un professionnel certifié.

> Télécharger le plan
Vente Maison ST LUMINE DE COUTAIS - 3 pièces - 88 m² - (44310)
Vente Maison ST LUMINE DE COUTAIS - 3 pièces - 88 m² - (44310)
Vente Maison ST LUMINE DE COUTAIS - 3 pièces - 88 m² - (44310)

Prix honoraires inclus : 254 842 €

Honoraires à la charge de l'acquéreur : 4,96% TTC

Prix hors honoraires : 242 800 €

Simulez votre mensualité pour l'achat de ce bien !

*Choissisez une durée d'emprunt

Simulez votre mensualité avec notre partenaire ImmoBanques


Calculez votre temps de trajet depuis ce bien



Les informations locales de Saint-Lumine-de-Coutais

  • Transports
    • Arrêts de bus
    • Gares
    • Tramways
    • Arrêts de métro, RER
    • Aéroports
    • Parkings
  • Santé
    • Médecins généralistes
    • Médecins spécialistes
    • Pharmacies
    • Hôpitaux
  • Education Petite enfance
    • Crèches
    • Ecoles maternelles
    • Ecoles primaires
    • Collèges
    • Lycées
    • Enseignements supérieur
  • Loisirs & Culture
    • Restaurants, Cafés
    • Monuments, Bibliothèques
    • Sport
    • Espaces verts
    • Théatres, Cinémas, Casinos
  • Commerces Administration
    • Supermarchés
    • Bureaux de poste
    • Boulangeries
    • Boucheries
    • Marchés
    • Mairies, Police, Gendarmerie

Plus d’informations sur la ville de Saint-Lumine-de-Coutais

  • Population : 1 970 habitants
  • Propriétaires : 80 %
  • Résidences secondaires : 4 %
  • Revenus moyens : 2 640 euros / mois
  • Taxe d'habitation* : 17 %
  • Taxe foncière* : 16 %
  • Densité de logements : <1 log/ha
  • Type de maison : Maisons récentes
  • Logements sociaux : 1 %
  • Densité de population : 120 hab/km²

*Taux basé sur la valeur locative cadastrale

Agence immobilière ancien neuf St Philbert de Grand Lieu
11 PLACE DE L’ABBATIALE
44310 SAINT-PHILBERT-DE-GRAND-LIEU