Maison à vendre |  Saturargues |  4 pièces | 87 m²
319 000 €
Réf : 440-889
Visitez en avant-première

Sur la commune de Saturargues, nous vous proposons a la vente cette maison individuelle très récente de 2017 encore sous garantie décénanale, d'une surface de 85m², composée d'un séjour, d'une cuisine équipée, de 3 chambres, d'une salle d'eau dégagement et 2 WC. Garage, piscine et jardin. Maison en excellent état au calme total.

  • Surface habitable : 87 m²
  • Superficie terrain : 220 m²
  • Surface du séjour : 35 m²
  • Exposition séjour : Nord Sud
  • Pièce(s) : 4
  • Chambre(s) : 3
  • Cuisine : Américaine équipée
  • Salle(s) d'eau : 1
  • WC : 2
  • Chauffage : Autre
  • Terrasse : Oui
  • Piscine : Oui
  • Garage(s) : 1
  • Parking(s) : 1
A
B
C
D
E
F
G
Dont Emission de gaz
à effet de serre
A
B
C
D
E
F
G
Afficher le DPE

Les informations sur les risques auxquels ce bien est exposé sont disponible sur le site Géorisques :
www.georisques.gouv.fr

Photo originale Photo retouchée
Laissez-vous inspirer par nos décorateurs

Ils ont imaginé pour vous cet aménagement virtuel non contractuel. L'extérieur a été entièrement repensé afin de révéler tout son potentiel.

> Prendre rendez-vous pour visiter
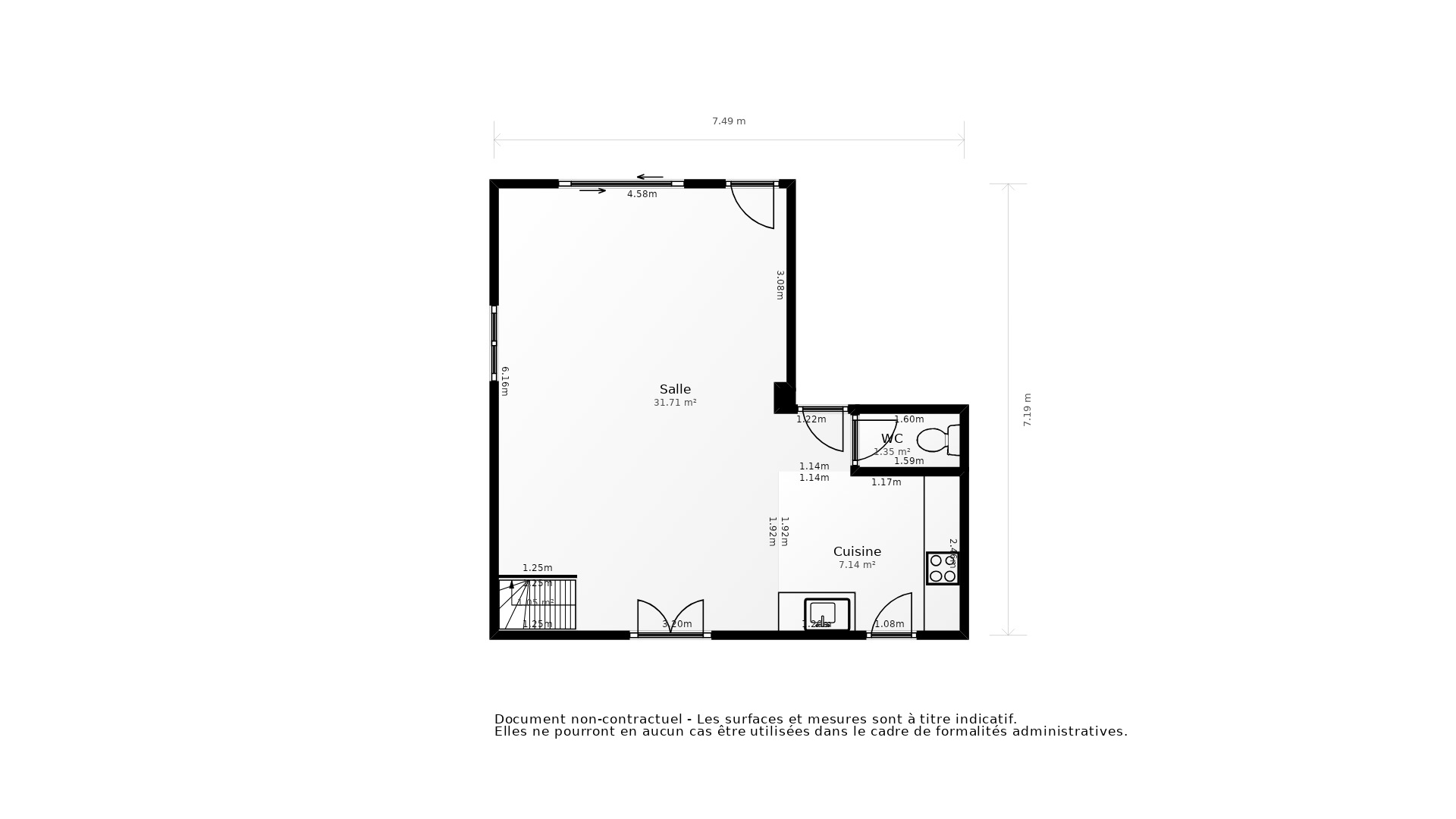
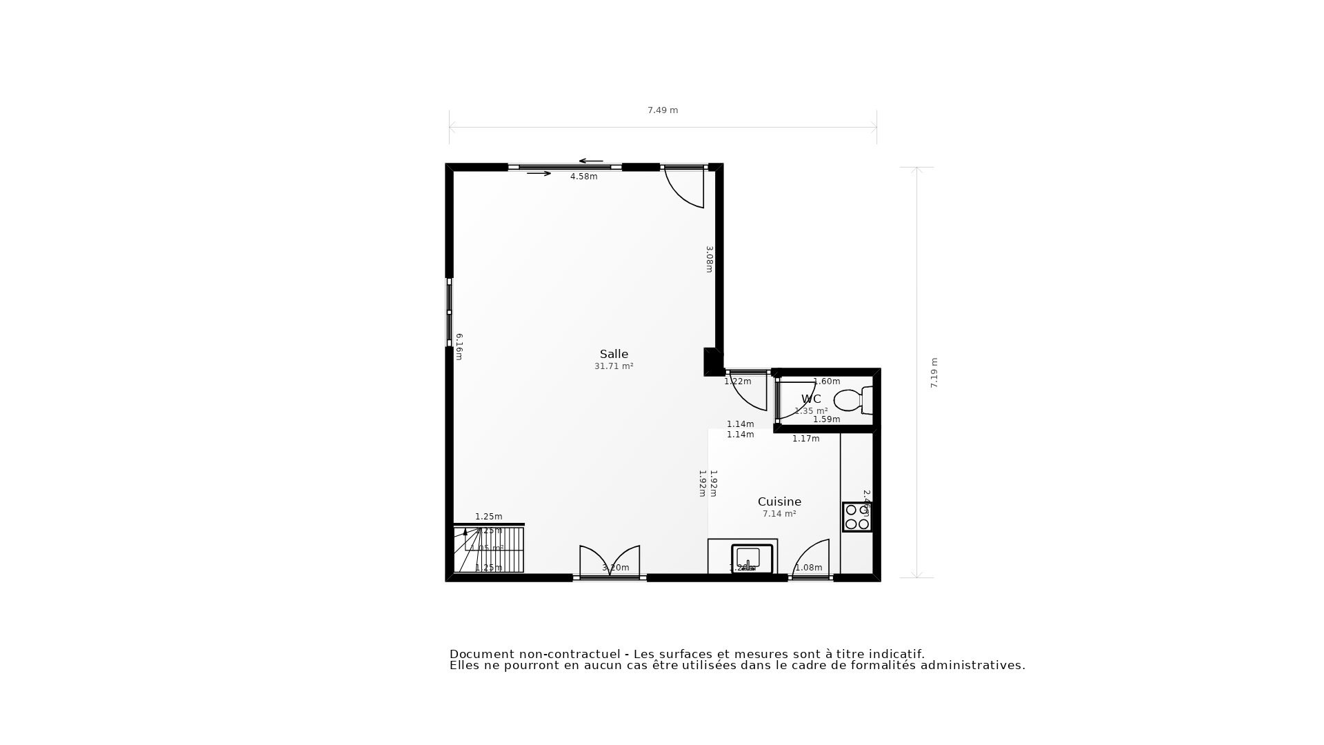
Prenez les mesures

Ce plan 2D représente la structure complète et précise du bien. La surface de chaque pièce est précisée à titre informatif. Ce plan ne se substitue en aucun cas à un diagnostic loi Carrez réalisé par un professionnel certifié.

> Télécharger le plan
Vente Maison SATURARGUES - 4 pièces - 87 m² - (34400)
Vente Maison SATURARGUES - 4 pièces - 87 m² - (34400)
Vente Maison SATURARGUES - 4 pièces - 87 m² - (34400)
Vente Maison SATURARGUES - 4 pièces - 87 m² - (34400)
Vente Maison SATURARGUES - 4 pièces - 87 m² - (34400)
Vente Maison SATURARGUES - 4 pièces - 87 m² - (34400)

Prix honoraires inclus : 319 000 €

Honoraires à la charge de l'acquéreur : 4,72% TTC

Prix hors honoraires : 304 623 €

Simulez votre mensualité pour l'achat de ce bien !

*Choissisez une durée d'emprunt

Simulez votre mensualité avec notre partenaire ImmoBanques


Calculez votre temps de trajet depuis ce bien



Les informations locales de Saturargues

  • Transports
    • Arrêts de bus
    • Gares
    • Tramways
    • Arrêts de métro, RER
    • Aéroports
    • Parkings
  • Santé
    • Médecins généralistes
    • Médecins spécialistes
    • Pharmacies
    • Hôpitaux
  • Education Petite enfance
    • Crèches
    • Ecoles maternelles
    • Ecoles primaires
    • Collèges
    • Lycées
    • Enseignements supérieur
  • Loisirs & Culture
    • Restaurants, Cafés
    • Monuments, Bibliothèques
    • Sport
    • Espaces verts
    • Théatres, Cinémas, Casinos
  • Commerces Administration
    • Supermarchés
    • Bureaux de poste
    • Boulangeries
    • Boucheries
    • Marchés
    • Mairies, Police, Gendarmerie

Plus d’informations sur la ville de Saturargues

  • Population : 910 habitants
  • Propriétaires : 74 %
  • Résidences secondaires : 3 %
  • Revenus moyens : 2 840 euros / mois
  • Taxe d'habitation* : 9 %
  • Taxe foncière* : 13 %
  • Densité de logements : 1 log/ha
  • Type de maison : Maisons récentes
  • Logements sociaux : 3 %
  • Densité de population : 150 hab/km²

*Taux basé sur la valeur locative cadastrale

Agence immobilière ancien neuf Lunel
187 BOULEVARD LAFAYETTE
34400 LUNEL