Maison à vendre |  Lunel |  6 pièces | 126 m²
199 900 €
Réf : 440-858
Visitez en avant-première

Lunel Centre, opportunité, maison de ville de 126 m² à 199 900 euros! Séjour double, cuisine, 4 chambres 1 bureau, 1 salle de bains et une salle d'eau. 2 WC Terrasse et grand espace buanderie. Double vitrage/ climatisation/ cheminée/ Maison pleine de charme pour les amoureux de l'ancien.

  • Surface habitable : 126 m²
  • Surface du séjour : 35 m²
  • Pièce(s) : 6
  • Chambre(s) : 4
  • Cuisine : Américaine équipée
  • Salle(s) de bain : 1
  • Salle(s) d'eau : 1
  • WC : 2
  • Chauffage : Autre
  • Cheminée : Oui
  • Terrasse : Oui
A
B
C
D
E
F
G
Dont Emission de gaz
à effet de serre
A
B
C
D
E
F
G
Afficher le DPE

Les informations sur les risques auxquels ce bien est exposé sont disponible sur le site Géorisques :
www.georisques.gouv.fr

Photo originale Photo retouchée
Laissez-vous inspirer par nos décorateurs

Avec la complicité de notre partenaire, nous vous proposons cet aménagement virtuel non contractuel. La pièce a été entièrement repensée et laisse place à une décoration actuelle et tendance.

> Prendre rendez-vous pour visiter
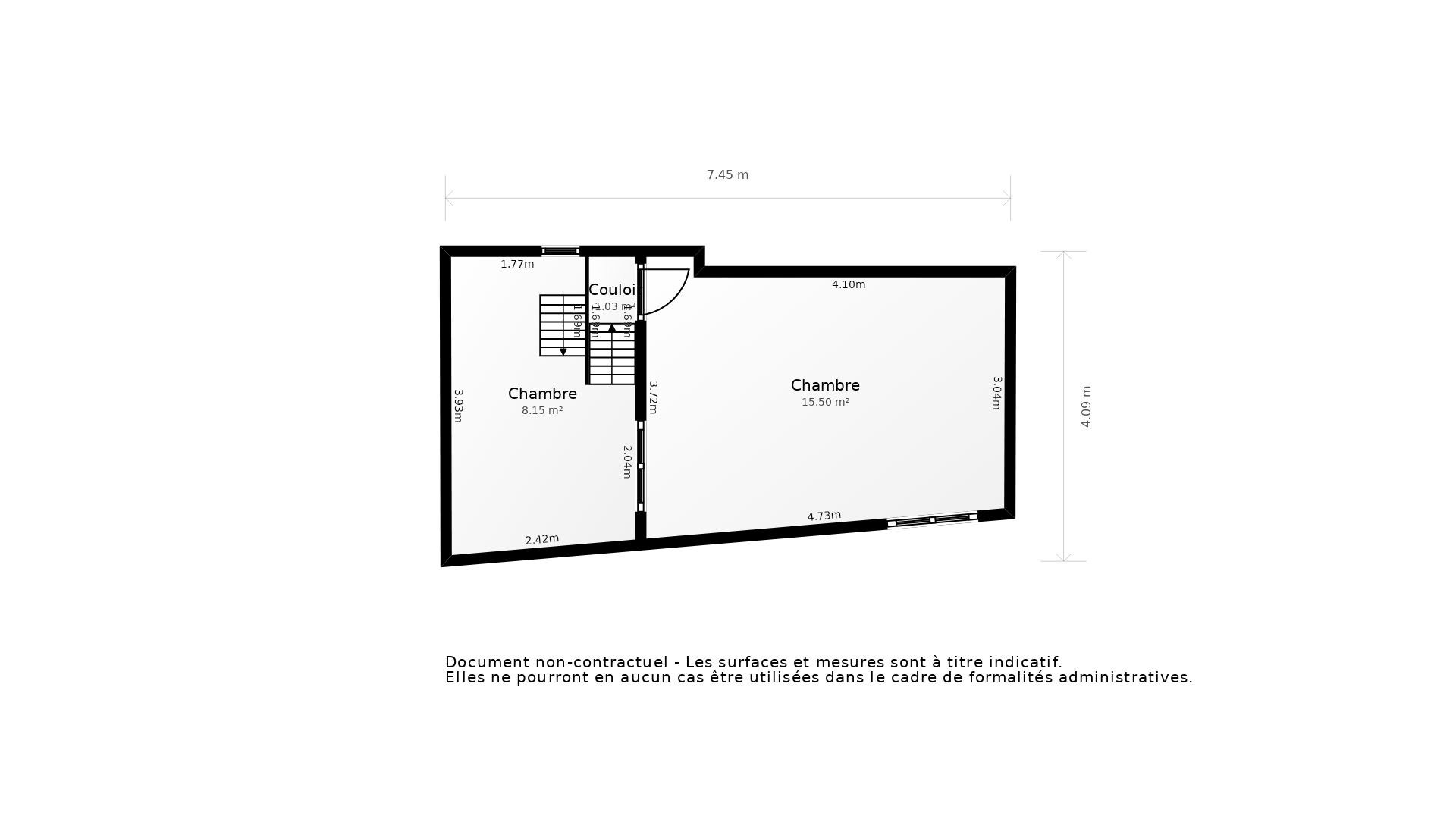
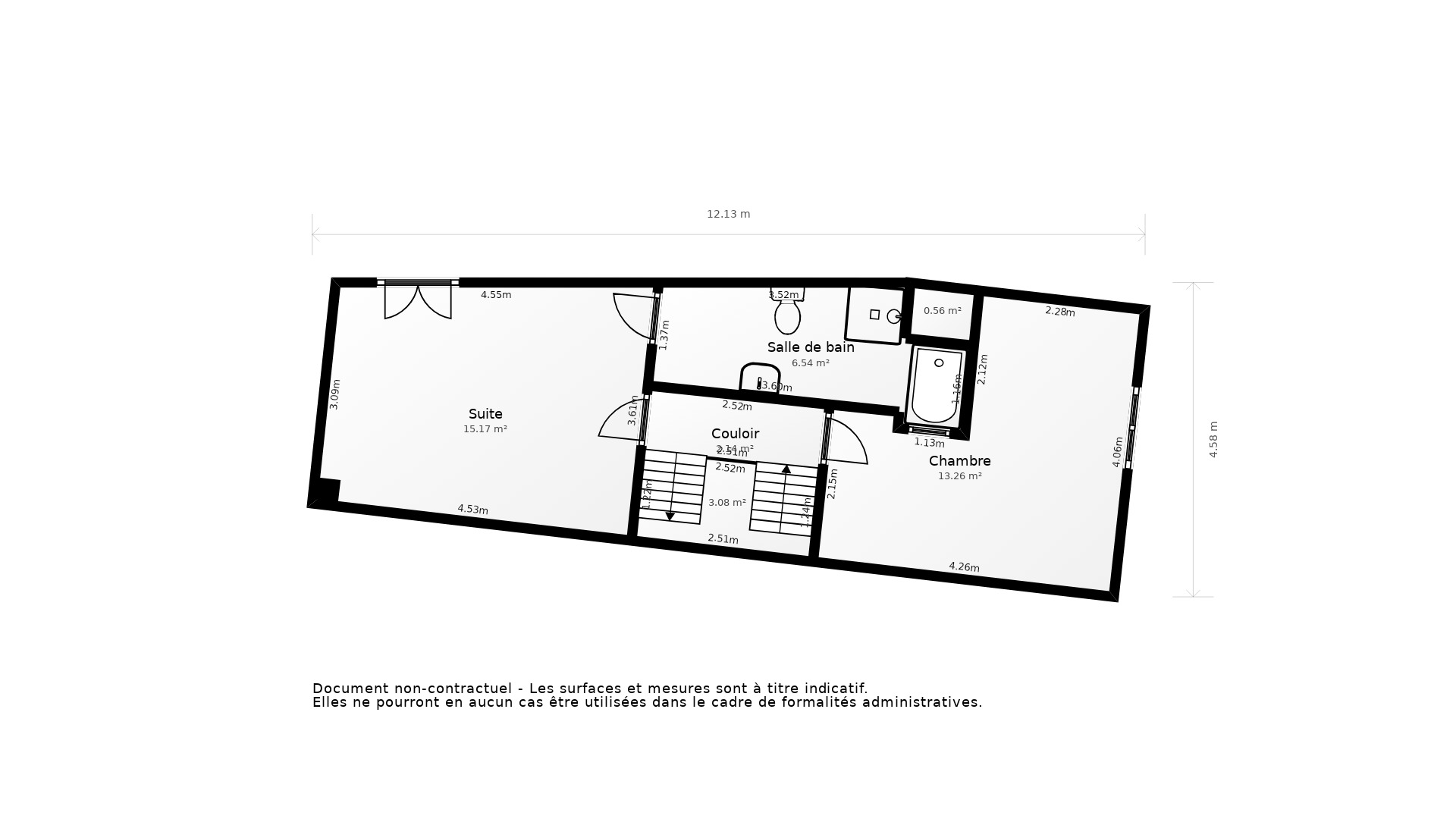
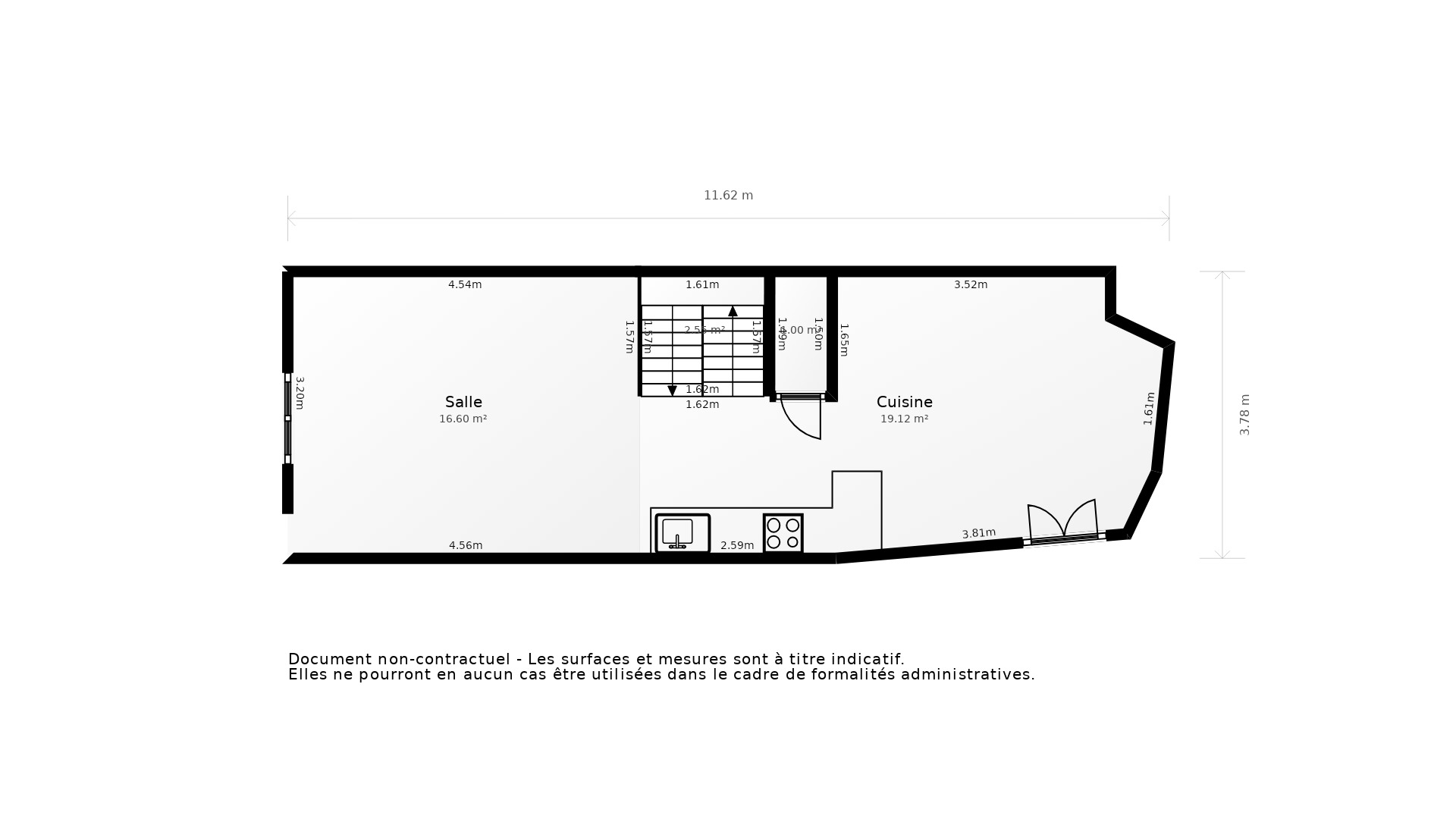
Prenez les mesures

Ce plan 2D représente la structure complète et précise du bien. La surface de chaque pièce est précisée à titre informatif. Ce plan ne se substitue en aucun cas à un diagnostic loi Carrez réalisé par un professionnel certifié.

> Télécharger le plan
Vente Maison LUNEL - 6 pièces - 126 m² - (34400)
Vente Maison LUNEL - 6 pièces - 126 m² - (34400)
Vente Maison LUNEL - 6 pièces - 126 m² - (34400)
Vente Maison LUNEL - 6 pièces - 126 m² - (34400)

Prix honoraires inclus : 199 900 €

Honoraires à la charge de l'acquéreur : 5,44% TTC

Prix hors honoraires : 189 587 €

Simulez votre mensualité pour l'achat de ce bien !

*Choissisez une durée d'emprunt

Simulez votre mensualité avec notre partenaire ImmoBanques


Calculez votre temps de trajet depuis ce bien



Les informations locales de Lunel

  • Transports
    • Arrêts de bus
    • Gares
    • Tramways
    • Arrêts de métro, RER
    • Aéroports
    • Parkings
  • Santé
    • Médecins généralistes
    • Médecins spécialistes
    • Pharmacies
    • Hôpitaux
  • Education Petite enfance
    • Crèches
    • Ecoles maternelles
    • Ecoles primaires
    • Collèges
    • Lycées
    • Enseignements supérieur
  • Loisirs & Culture
    • Restaurants, Cafés
    • Monuments, Bibliothèques
    • Sport
    • Espaces verts
    • Théatres, Cinémas, Casinos
  • Commerces Administration
    • Supermarchés
    • Bureaux de poste
    • Boulangeries
    • Boucheries
    • Marchés
    • Mairies, Police, Gendarmerie

Plus d’informations sur la ville de Lunel

  • Population : 25 410 habitants
  • Propriétaires : 51 %
  • Résidences secondaires : 2 %
  • Revenus moyens : 2 000 euros / mois
  • Taxe d'habitation* : 21 %
  • Taxe foncière* : 39 %
  • Densité de logements : 5 log/ha
  • Type de maison : Maisons récentes
  • Logements sociaux : 13 %
  • Densité de population : 1 060 hab/km²

*Taux basé sur la valeur locative cadastrale

Agence immobilière ancien neuf Lunel
187 BOULEVARD LAFAYETTE
34400 LUNEL