Maison à vendre |  La Chevrolière |  5 pièces | 130 m²
297 404 €
Réf : 600-155
Visitez en avant-première

Au coeur de Passay – Maison familiale comprenant au RDC une pièce de vie d'environ 60 m² avec une cuisine aménagée et équipée. À l’étage, trois grandes chambres , un bureau et une salle d’eau. Garage.

  • Surface habitable : 130 m²
  • Superficie terrain : 231 m²
  • Surface du séjour : 60 m²
  • Pièce(s) : 5
  • Chambre(s) : 3
  • Cuisine : Equipée
  • Salle(s) d'eau : 1
  • WC : 1
  • Chauffage : Gaz
  • Garage(s) : 1
  • Parking(s) : 2
  • Mitoyenneté : Oui
A
B
C
D
E
F
G
Dont Emission de gaz
à effet de serre
A
B
C
D
E
F
G
Afficher le DPE

Les informations sur les risques auxquels ce bien est exposé sont disponible sur le site Géorisques :
www.georisques.gouv.fr

Photo originale Photo retouchée
Laissez-vous inspirer par nos décorateurs

Ils ont imaginé pour vous cet aménagement virtuel non contractuel. L'extérieur a été entièrement repensé afin de révéler tout son potentiel.

> Prendre rendez-vous pour visiter
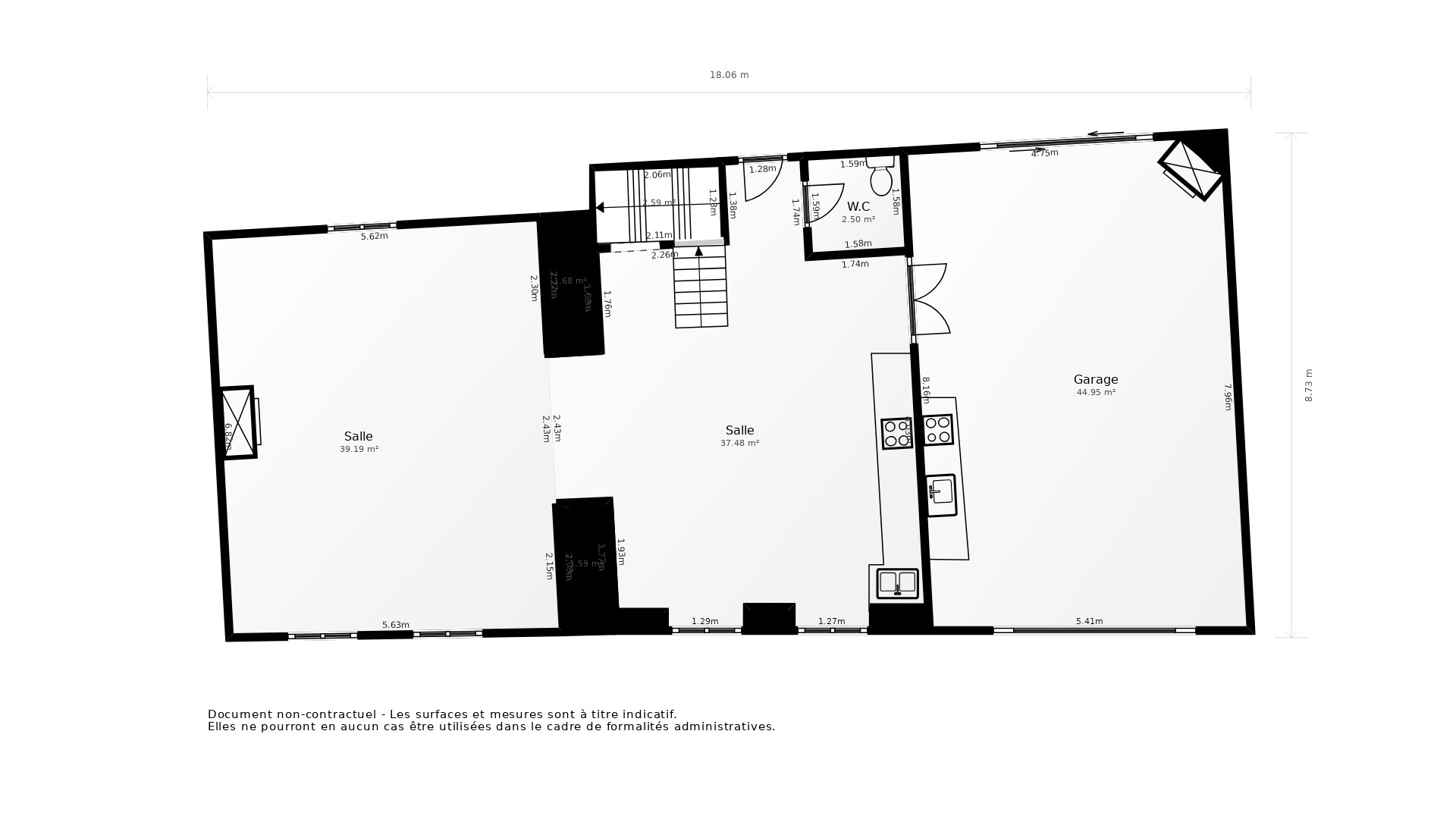
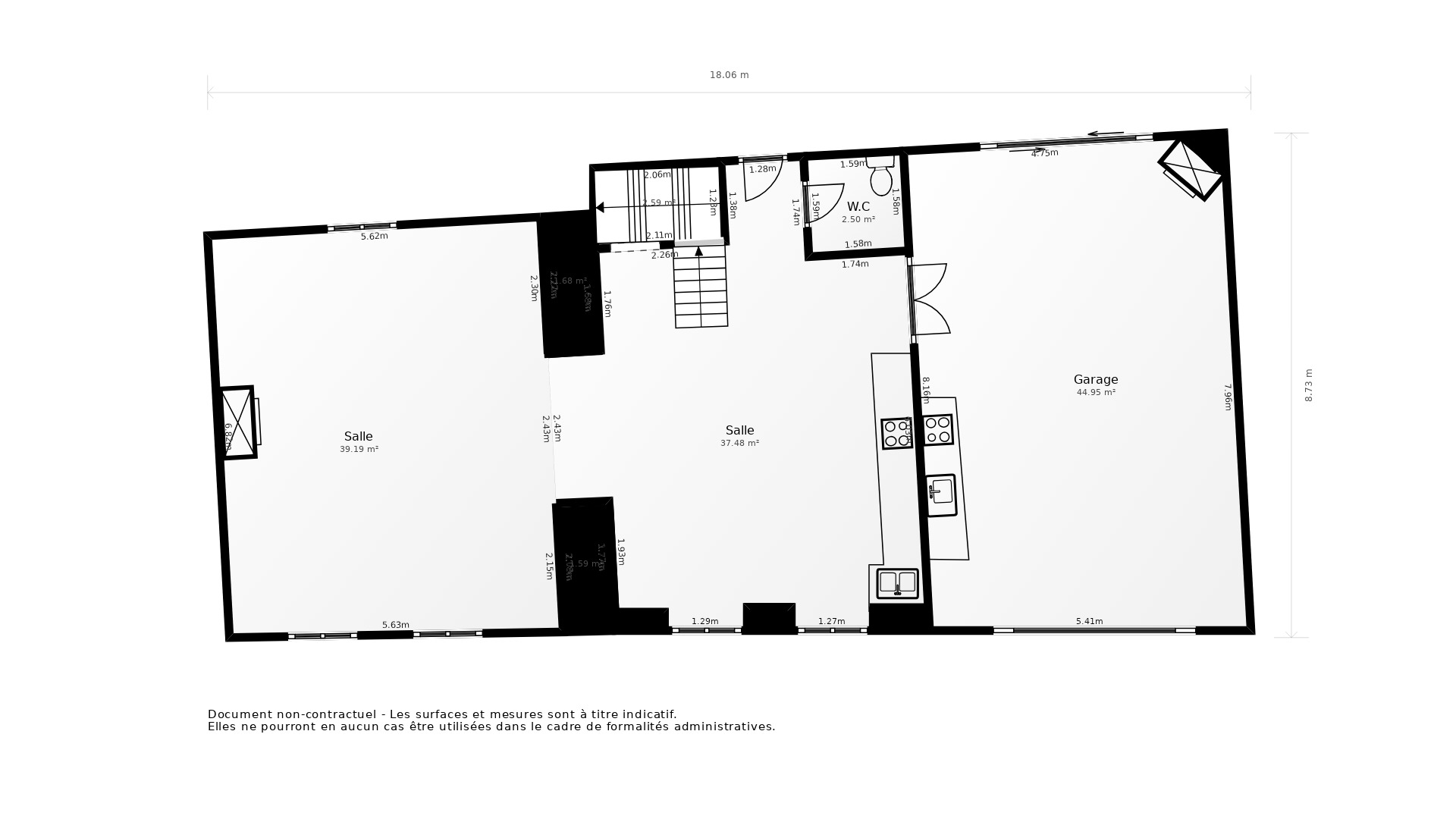
Prenez les mesures

Ce plan 2D représente la structure complète et précise du bien. La surface de chaque pièce est précisée à titre informatif. Ce plan ne se substitue en aucun cas à un diagnostic loi Carrez réalisé par un professionnel certifié.

> Télécharger le plan
Vente Maison LA CHEVROLIERE - 5 pièces - 130 m² - (44118)
Vente Maison LA CHEVROLIERE - 5 pièces - 130 m² - (44118)
Vente Maison LA CHEVROLIERE - 5 pièces - 130 m² - (44118)
Vente Maison LA CHEVROLIERE - 5 pièces - 130 m² - (44118)
Vente Maison LA CHEVROLIERE - 5 pièces - 130 m² - (44118)
Vente Maison LA CHEVROLIERE - 5 pièces - 130 m² - (44118)

Prix honoraires inclus : 297 404 €

Honoraires à la charge de l'acquéreur : 4,72% TTC

Prix hors honoraires : 284 000 €

Simulez votre mensualité pour l'achat de ce bien !

*Choissisez une durée d'emprunt

Simulez votre mensualité avec notre partenaire ImmoBanques


Calculez votre temps de trajet depuis ce bien



Les informations locales de La Chevrolière

  • Transports
    • Arrêts de bus
    • Gares
    • Tramways
    • Arrêts de métro, RER
    • Aéroports
    • Parkings
  • Santé
    • Médecins généralistes
    • Médecins spécialistes
    • Pharmacies
    • Hôpitaux
  • Education Petite enfance
    • Crèches
    • Ecoles maternelles
    • Ecoles primaires
    • Collèges
    • Lycées
    • Enseignements supérieur
  • Loisirs & Culture
    • Restaurants, Cafés
    • Monuments, Bibliothèques
    • Sport
    • Espaces verts
    • Théatres, Cinémas, Casinos
  • Commerces Administration
    • Supermarchés
    • Bureaux de poste
    • Boulangeries
    • Boucheries
    • Marchés
    • Mairies, Police, Gendarmerie

Plus d’informations sur la ville de La Chevrolière

  • Population : 5 160 habitants
  • Propriétaires : 81 %
  • Résidences secondaires : 1 %
  • Revenus moyens : 2 920 euros / mois
  • Taxe d'habitation* : 18 %
  • Taxe foncière* : 19 %
  • Densité de logements : 1 log/ha
  • Type de maison : Maisons récentes
  • Logements sociaux : 5 %
  • Densité de population : 160 hab/km²

*Taux basé sur la valeur locative cadastrale

Agence immobilière ancien neuf St Philbert de Grand Lieu
11 PLACE DE L’ABBATIALE
44310 SAINT-PHILBERT-DE-GRAND-LIEU