Maison à vendre |  Taponnat-Fleurignac |  6 pièces | 160 m²
Vendu
Réf : 397-1420

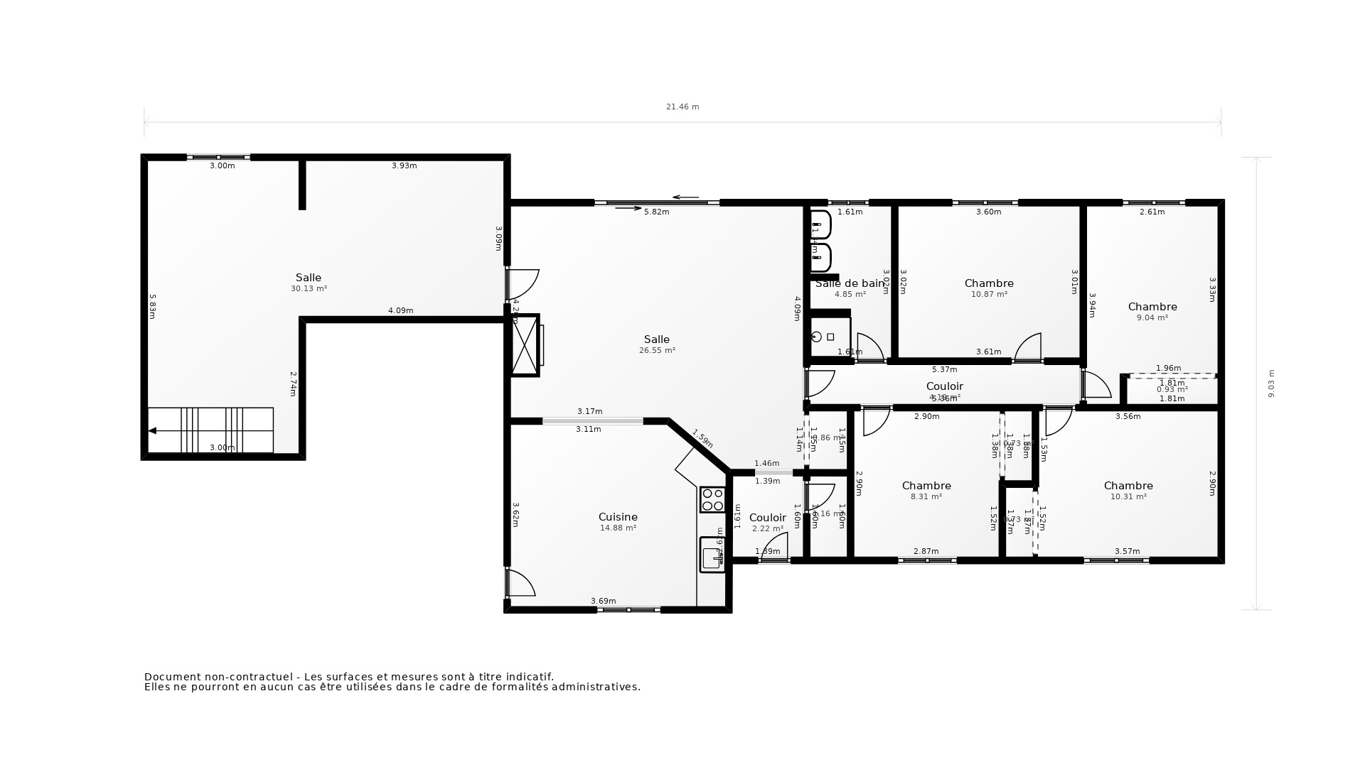
A proximité des commodités, moins de 10 minutes du centre de La Rochefoucauld, pavillon de plain pied composé d'une entrée, un séjour lumineux, une cuisine, une salle à manger, quatre chambres ainsi que de grandes dépendances. Le lieu offre également des installations adaptées pour recevoir des chevaux.

Bien sous compromis Bien sous compromis
  • Surface habitable : 160 m²
  • Superficie terrain : 7 944 m²
  • Surface du séjour : 27 m²
  • Exposition séjour : Nord Ouest
  • Pièce(s) : 6
  • Chambre(s) : 4
  • Cuisine : Aménagée
  • Salle(s) d'eau : 1
  • WC : 1
  • Chauffage : Électrique
  • Cheminée : Oui
  • Cellier : Oui
  • Garage(s) : 4
  • Parking(s) : 6
A
B
C
D
E
F
G
Dont Emission de gaz
à effet de serre
A
B
C
D
E
F
G
Afficher le DPE

Les informations sur les risques auxquels ce bien est exposé sont disponible sur le site Géorisques :
www.georisques.gouv.fr

Prenez les mesures

Ce plan 2D représente la structure complète et précise du bien. La surface de chaque pièce est précisée à titre informatif. Ce plan ne se substitue en aucun cas à un diagnostic loi Carrez réalisé par un professionnel certifié.

> Télécharger le plan
Vente Maison TAPONNAT FLEURIGNAC - 6 pièces - 160 m² - (16110)

Prix honoraires inclus : 170 000 €

Honoraires à la charge de l'acquéreur : 5,68% TTC

Prix hors honoraires : 160 864 €

Simulez votre mensualité pour l'achat de ce bien !

*Choissisez une durée d'emprunt

Simulez votre mensualité avec notre partenaire ImmoBanques


Calculez votre temps de trajet depuis ce bien



Les informations locales de Taponnat-Fleurignac

  • Transports
    • Arrêts de bus
    • Gares
    • Tramways
    • Arrêts de métro, RER
    • Aéroports
    • Parkings
  • Santé
    • Médecins généralistes
    • Médecins spécialistes
    • Pharmacies
    • Hôpitaux
  • Education Petite enfance
    • Crèches
    • Ecoles maternelles
    • Ecoles primaires
    • Collèges
    • Lycées
    • Enseignements supérieur
  • Loisirs & Culture
    • Restaurants, Cafés
    • Monuments, Bibliothèques
    • Sport
    • Espaces verts
    • Théatres, Cinémas, Casinos
  • Commerces Administration
    • Supermarchés
    • Bureaux de poste
    • Boulangeries
    • Boucheries
    • Marchés
    • Mairies, Police, Gendarmerie

Plus d’informations sur la ville de Taponnat-Fleurignac

  • Population : 1 540 habitants
  • Propriétaires : 77 %
  • Résidences secondaires : 2 %
  • Revenus moyens : 2 460 euros / mois
  • Taxe d'habitation* : 8 %
  • Taxe foncière* : 18 %
  • Densité de logements : <1 log/ha
  • Type de maison : Maisons récentes
  • Logements sociaux : 2 %
  • Densité de population : 70 hab/km²

*Taux basé sur la valeur locative cadastrale

Agence immobilière ancien neuf La Rochefoucauld
12 RUE DES HALLES
16110 LA ROCHEFOUCAULD