Maison à vendre |  Saint-Martory |  7 pièces | 107 m²
Vendu
Réf : 463-1326

Située dans un environnement paisible, découvrez cette maison 7 piéces, offrant une disposition fonctionelle et lumineuse avec de beaux volumes et un fort potentiel. Elle est idéale pour une famille. Elle dispose également d'un jardin spacieux et agréble ainsi que d'une terasse couverte parfaite pour profiter de moments détente.

Bien sous compromis Bien sous compromis
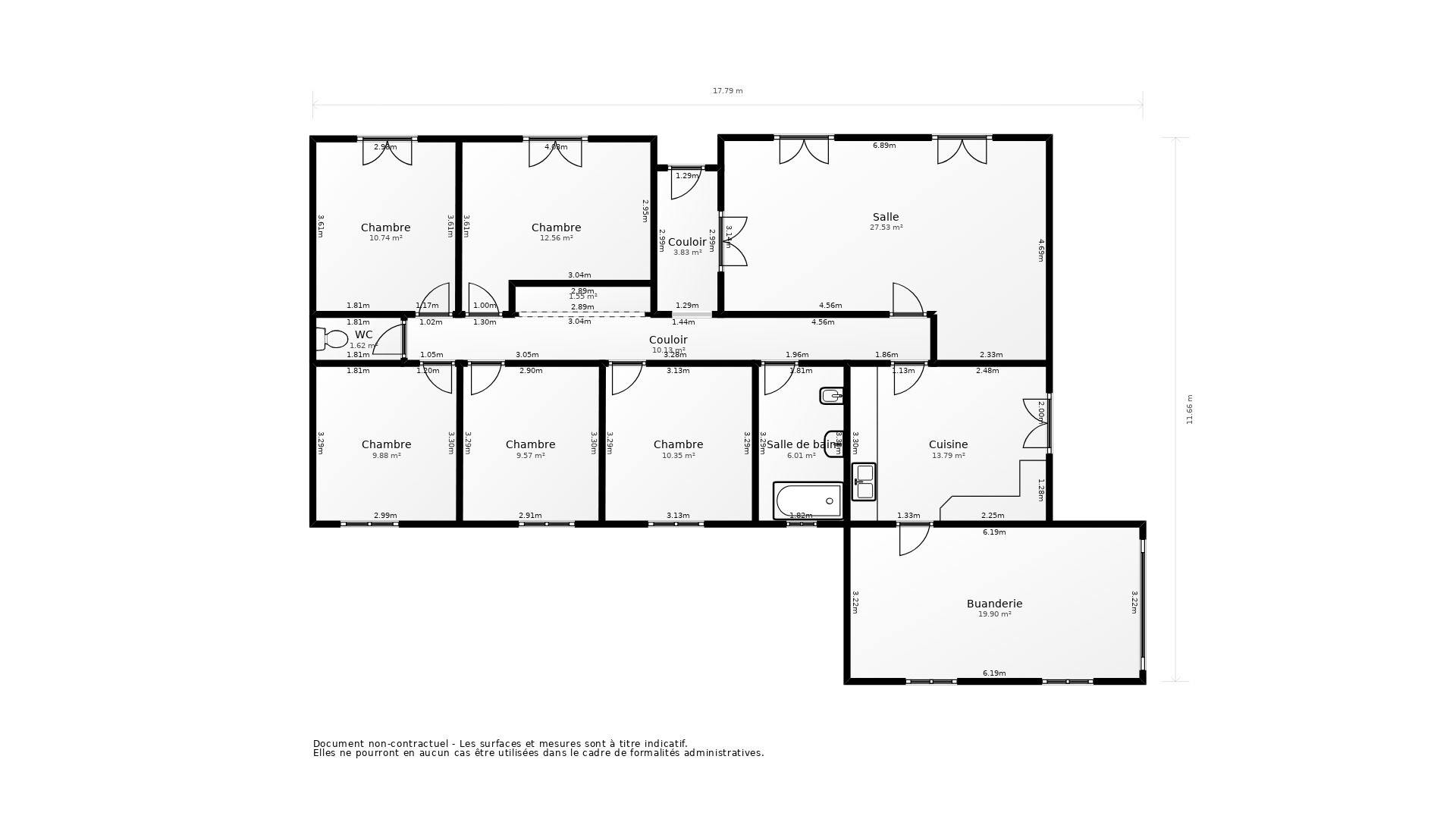
  • Surface habitable : 107 m²
  • Superficie terrain : 827 m²
  • Surface du séjour : 25 m²
  • Exposition séjour : Sud Est
  • Pièce(s) : 7
  • Chambre(s) : 5
  • Cuisine : Simple
  • Salle(s) de bain : 1
  • WC : 1
  • Chauffage : Fioul
  • Terrasse : Oui
  • Garage(s) : 1
  • Parking(s) : 1
A
B
C
D
E
F
G
Dont Emission de gaz
à effet de serre
A
B
C
D
E
F
G
Afficher le DPE

Les informations sur les risques auxquels ce bien est exposé sont disponible sur le site Géorisques :
www.georisques.gouv.fr

Photo originale Photo retouchée
Laissez-vous inspirer par nos décorateurs

Avec la complicité de notre partenaire, nous vous proposons cet aménagement virtuel non contractuel. La pièce a été entièrement repensée et laisse place à une décoration actuelle et tendance.

> Prendre rendez-vous pour visiter
Prenez les mesures

Ce plan 2D représente la structure complète et précise du bien. La surface de chaque pièce est précisée à titre informatif. Ce plan ne se substitue en aucun cas à un diagnostic loi Carrez réalisé par un professionnel certifié.

> Télécharger le plan
Vente Maison ST MARTORY - 7 pièces - 107 m² - (31360)

Prix honoraires inclus : 159 000 €

Honoraires à la charge de l'acquéreur : 6,00% TTC

Prix hors honoraires : 150 000 €

Simulez votre mensualité pour l'achat de ce bien !

*Choissisez une durée d'emprunt

Simulez votre mensualité avec notre partenaire ImmoBanques


Calculez votre temps de trajet depuis ce bien



Les informations locales de Saint-Martory

  • Transports
    • Arrêts de bus
    • Gares
    • Tramways
    • Arrêts de métro, RER
    • Aéroports
    • Parkings
  • Santé
    • Médecins généralistes
    • Médecins spécialistes
    • Pharmacies
    • Hôpitaux
  • Education Petite enfance
    • Crèches
    • Ecoles maternelles
    • Ecoles primaires
    • Collèges
    • Lycées
    • Enseignements supérieur
  • Loisirs & Culture
    • Restaurants, Cafés
    • Monuments, Bibliothèques
    • Sport
    • Espaces verts
    • Théatres, Cinémas, Casinos
  • Commerces Administration
    • Supermarchés
    • Bureaux de poste
    • Boulangeries
    • Boucheries
    • Marchés
    • Mairies, Police, Gendarmerie

Plus d’informations sur la ville de Saint-Martory

  • Population : 920 habitants
  • Propriétaires : 67 %
  • Résidences secondaires : 8 %
  • Revenus moyens : 1 980 euros / mois
  • Taxe d'habitation* : 9 %
  • Taxe foncière* : 16 %
  • Densité de logements : 1 log/ha
  • Type de maison : Logements vacants
  • Logements sociaux : 4 %
  • Densité de population : 110 hab/km²

*Taux basé sur la valeur locative cadastrale

Agence immobilière ancien neuf Salies du Salat
12 AVENUE DE LA PAIX
31260 SALIES DU SALAT