Maison à vendre |  Mézin |  5 pièces | 86 m²
169 000 €
Réf : 171-3928
Visitez en avant-première

Maison composée d'une entrée, cuisine donnat sur la salle à manger, une grande arrière cuisine, d'un salon avec poêle à bois rotatif permettant une optimisation de la diffusion de chaleur, deux chambres avec climatisation, une salle d'eau, WC, un bureau et la possibilité d'une autre chambre. La grande terrasse donne sur la piscine.

  • Surface habitable : 86 m²
  • Superficie terrain : 587 m²
  • Surface du séjour : 13 m²
  • Exposition séjour : Nord Est
  • Pièce(s) : 5
  • Chambre(s) : 2
  • Cuisine : Américaine aménagée
  • Salle(s) d'eau : 1
  • WC : 1
  • Chauffage : Pompe à chaleur
  • Cheminée : Oui
  • Terrasse : Oui
  • Cellier : Oui
  • Piscine : Oui
  • Parking(s) : 1
  • Mitoyenneté : Oui
A
B
C
D
E
F
G
Dont Emission de gaz
à effet de serre
A
B
C
D
E
F
G
Afficher le DPE

Les informations sur les risques auxquels ce bien est exposé sont disponible sur le site Géorisques :
www.georisques.gouv.fr

Photo originale Photo retouchée
Laissez-vous inspirer par nos décorateurs

Avec la complicité de notre partenaire, nous vous proposons cet aménagement virtuel non contractuel. La pièce a été entièrement repensée et laisse place à une décoration actuelle et tendance.

> Prendre rendez-vous pour visiter
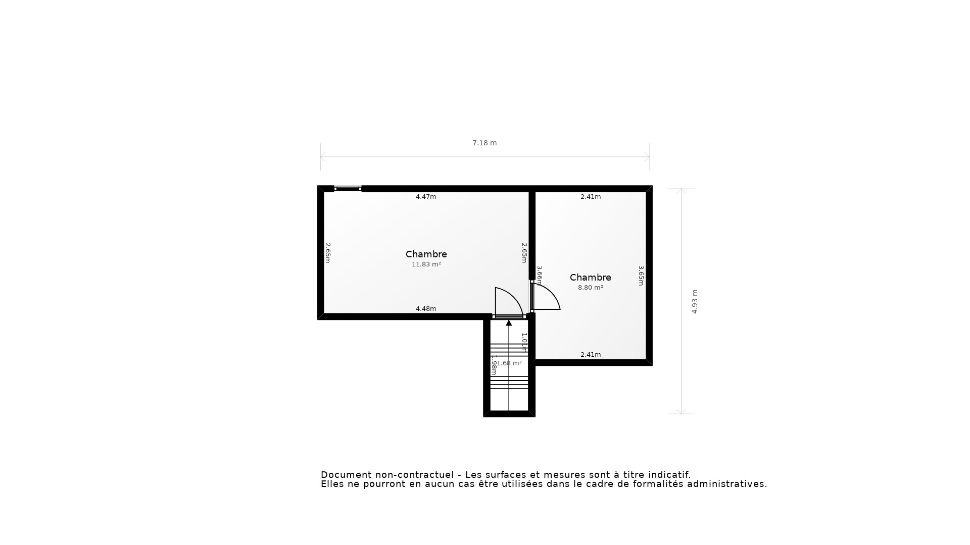
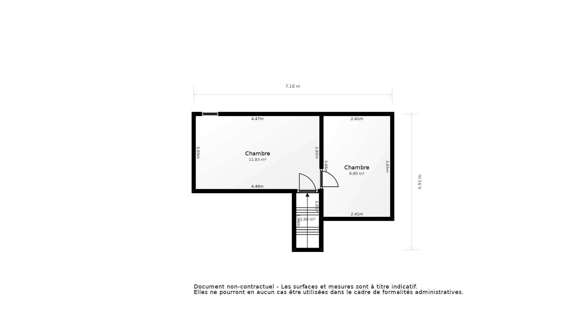
Prenez les mesures

Ce plan 2D représente la structure complète et précise du bien. La surface de chaque pièce est précisée à titre informatif. Ce plan ne se substitue en aucun cas à un diagnostic loi Carrez réalisé par un professionnel certifié.

> Télécharger le plan
Vente Maison MEZIN - 5 pièces - 86 m² - (47170)
Vente Maison MEZIN - 5 pièces - 86 m² - (47170)
Vente Maison MEZIN - 5 pièces - 86 m² - (47170)
Vente Maison MEZIN - 5 pièces - 86 m² - (47170)
Vente Maison MEZIN - 5 pièces - 86 m² - (47170)
Vente Maison MEZIN - 5 pièces - 86 m² - (47170)

Prix honoraires inclus : 169 000 €

Honoraires à la charge de l'acquéreur : 6,00% TTC

Prix hors honoraires : 159 435 €

Simulez votre mensualité pour l'achat de ce bien !

*Choissisez une durée d'emprunt

Simulez votre mensualité avec notre partenaire ImmoBanques


Calculez votre temps de trajet depuis ce bien



Les informations locales de Mézin

  • Transports
    • Arrêts de bus
    • Gares
    • Tramways
    • Arrêts de métro, RER
    • Aéroports
    • Parkings
  • Santé
    • Médecins généralistes
    • Médecins spécialistes
    • Pharmacies
    • Hôpitaux
  • Education Petite enfance
    • Crèches
    • Ecoles maternelles
    • Ecoles primaires
    • Collèges
    • Lycées
    • Enseignements supérieur
  • Loisirs & Culture
    • Restaurants, Cafés
    • Monuments, Bibliothèques
    • Sport
    • Espaces verts
    • Théatres, Cinémas, Casinos
  • Commerces Administration
    • Supermarchés
    • Bureaux de poste
    • Boulangeries
    • Boucheries
    • Marchés
    • Mairies, Police, Gendarmerie

Plus d’informations sur la ville de Mézin

  • Population : 1 520 habitants
  • Propriétaires : 65 %
  • Résidences secondaires : 11 %
  • Revenus moyens : 1 760 euros / mois
  • Taxe d'habitation* : 17 %
  • Taxe foncière* : 23 %
  • Densité de logements : <1 log/ha
  • Type de maison : Maisons anciennes
  • Logements sociaux : 5 %
  • Densité de population : 50 hab/km²

*Taux basé sur la valeur locative cadastrale

Agence immobilière ancien neuf Nérac
4 COURS ROMAS
47600 NERAC