logement très performant
logement extrêmement consommateur d'énergie
Contacter l'agence St Philbert de Grand Lieu
À l’entrée de Machecoul, maison à personnaliser selon vos envies, déjà équipée d’une pompe à chaleur et du chauffage au sol. Un beau potentiel pour créer votre futur chez-vous !
Les informations sur les risques auxquels ce bien est exposé sont disponible sur le site Géorisques :
www.georisques.gouv.fr
Ils ont imaginé pour vous cet aménagement virtuel non contractuel. L'extérieur a été entièrement repensé afin de révéler tout son potentiel.
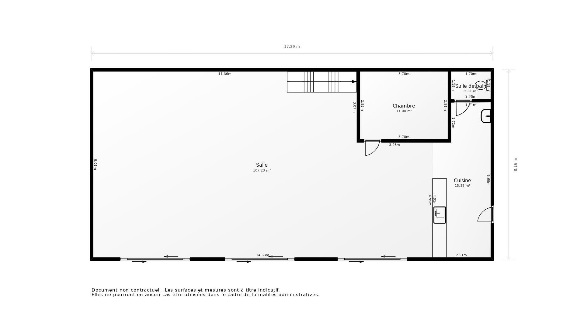
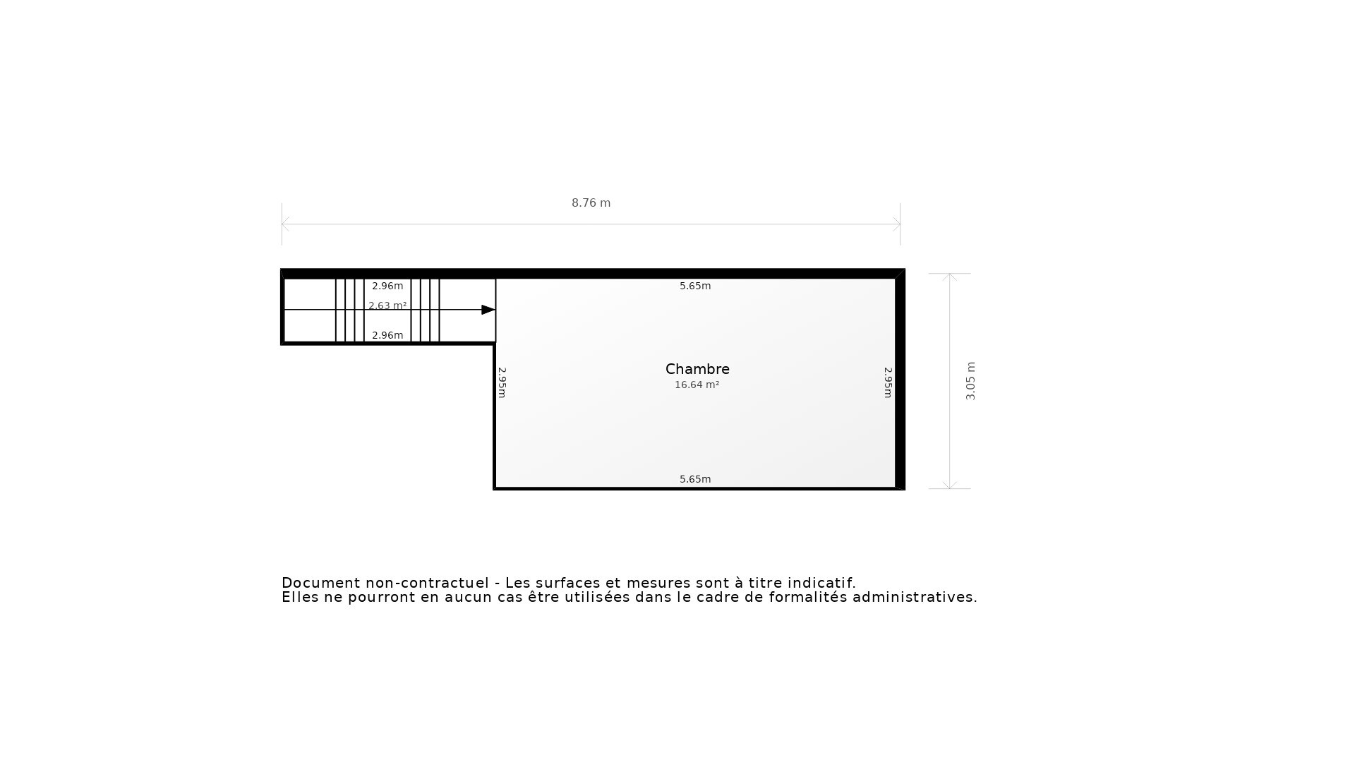
> Prendre rendez-vous pour visiterCe plan 2D représente la structure complète et précise du bien. La surface de chaque pièce est précisée à titre informatif. Ce plan ne se substitue en aucun cas à un diagnostic loi Carrez réalisé par un professionnel certifié.
> Télécharger le plan
Prix honoraires inclus : 149 000 € -
Honoraires à la charge de l'acquéreur : 6,00% TTC -
Prix hors honoraires : 140 567 €
*Choissisez une durée d'emprunt
*Taux basé sur la valeur locative cadastrale