Maison à vendre |  Lavardac |  6 pièces | 223 m²
205 000 €
Réf : 171-3926
Visitez en avant-première

Proche des commerces, école, collège et pôle santé, cette maison de style loft est une alliance parfaite entre design et confort. Elle est composée d'une pièce de vie de 75 m² baignée de lumière grâce à de larges baies vitrées, une cuisine ouverte moderne et fonctionnelle, quatre chambres, un garage et une cour fleurie.

  • Surface habitable : 223 m²
  • Superficie terrain : 510 m²
  • Surface du séjour : 75 m²
  • Exposition séjour : Sud Est
  • Pièce(s) : 6
  • Chambre(s) : 4
  • Cuisine : Américaine aménagée
  • Salle(s) de bain : 1
  • WC : 3
  • Chauffage : Pompe à chaleur
  • Cellier : Oui
  • Garage(s) : 2
  • Parking(s) : 2
A
B
C
D
E
F
G
Dont Emission de gaz
à effet de serre
A
B
C
D
E
F
G
Afficher le DPE

Les informations sur les risques auxquels ce bien est exposé sont disponible sur le site Géorisques :
www.georisques.gouv.fr

Photo originale Photo retouchée
Laissez-vous inspirer par nos décorateurs

Ils ont imaginé pour vous cet aménagement virtuel non contractuel. L'extérieur a été entièrement repensé afin de révéler tout son potentiel.

> Prendre rendez-vous pour visiter
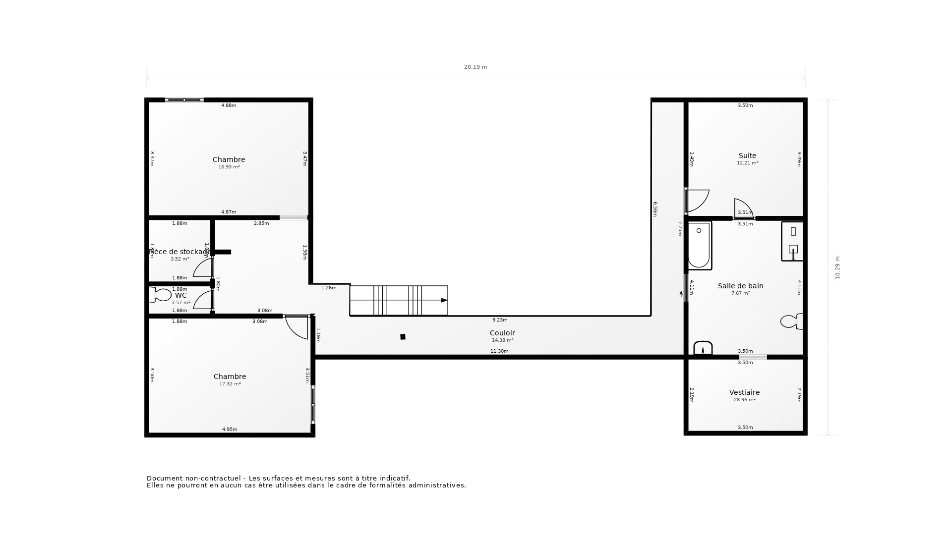
Prenez les mesures

Ce plan 2D représente la structure complète et précise du bien. La surface de chaque pièce est précisée à titre informatif. Ce plan ne se substitue en aucun cas à un diagnostic loi Carrez réalisé par un professionnel certifié.

> Télécharger le plan
Vente Maison LAVARDAC - 6 pièces - 223 m² - (47230)
Vente Maison LAVARDAC - 6 pièces - 223 m² - (47230)

Prix honoraires inclus : 205 000 €

Honoraires à la charge de l'acquéreur : 5,44% TTC

Prix hors honoraires : 194 424 €

Simulez votre mensualité pour l'achat de ce bien !

*Choissisez une durée d'emprunt

Simulez votre mensualité avec notre partenaire ImmoBanques


Calculez votre temps de trajet depuis ce bien



Les informations locales de Lavardac

  • Transports
    • Arrêts de bus
    • Gares
    • Tramways
    • Arrêts de métro, RER
    • Aéroports
    • Parkings
  • Santé
    • Médecins généralistes
    • Médecins spécialistes
    • Pharmacies
    • Hôpitaux
  • Education Petite enfance
    • Crèches
    • Ecoles maternelles
    • Ecoles primaires
    • Collèges
    • Lycées
    • Enseignements supérieur
  • Loisirs & Culture
    • Restaurants, Cafés
    • Monuments, Bibliothèques
    • Sport
    • Espaces verts
    • Théatres, Cinémas, Casinos
  • Commerces Administration
    • Supermarchés
    • Bureaux de poste
    • Boulangeries
    • Boucheries
    • Marchés
    • Mairies, Police, Gendarmerie

Plus d’informations sur la ville de Lavardac

  • Population : 2 220 habitants
  • Propriétaires : 70 %
  • Résidences secondaires : 4 %
  • Revenus moyens : 1 920 euros / mois
  • Taxe d'habitation* : 15 %
  • Taxe foncière* : 18 %
  • Densité de logements : 1 log/ha
  • Type de maison : Maisons anciennes
  • Logements sociaux : 1 %
  • Densité de population : 150 hab/km²

*Taux basé sur la valeur locative cadastrale

Agence immobilière ancien neuf Nérac
4 COURS ROMAS
47600 NERAC