Maison à vendre |  La Rochefoucauld |  6 pièces | 203 m²
Vendu
Réf : 397-1509

Environnement très prisé pour cette bâtisse en pierre rénovée, avec toutes commodités à pied et possibilité de vivre de plain-pied. Belle terrasse avec piscine semi-enterrée. Studio indépendant, carport, et dépendances offrant la possibilité de faire un troisième logement (gîte ou autre..) sur un terrain d'environ 1000m².

Bien sous compromis Bien sous compromis
  • Surface habitable : 203 m²
  • Superficie terrain : 976 m²
  • Surface du séjour : 42 m²
  • Exposition séjour : Sud Est
  • Pièce(s) : 6
  • Chambre(s) : 4
  • Cuisine : Américaine équipée
  • Salle(s) de bain : 1
  • Salle(s) d'eau : 2
  • WC : 3
  • Chauffage : Gaz
  • Terrasse : Oui
  • Garage(s) : 4
  • Parking(s) : 5
A
B
C
D
E
F
G
Dont Emission de gaz
à effet de serre
A
B
C
D
E
F
G
Afficher le DPE

Les informations sur les risques auxquels ce bien est exposé sont disponible sur le site Géorisques :
www.georisques.gouv.fr

Photo originale Photo retouchée
Laissez-vous inspirer par nos décorateurs

Avec la complicité de notre partenaire, nous vous proposons cet aménagement virtuel non contractuel. La pièce a été entièrement repensée et laisse place à une décoration actuelle et tendance.

> Prendre rendez-vous pour visiter
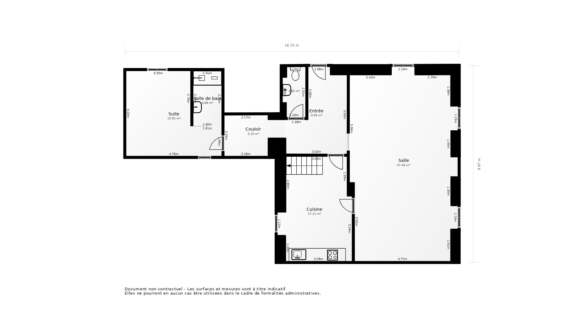
Prenez les mesures

Ce plan 2D représente la structure complète et précise du bien. La surface de chaque pièce est précisée à titre informatif. Ce plan ne se substitue en aucun cas à un diagnostic loi Carrez réalisé par un professionnel certifié.

> Télécharger le plan
Vente Maison LA ROCHEFOUCAULD EN ANGOUMOIS - 6 pièces - 203 m² - (16110)
Vente Maison LA ROCHEFOUCAULD EN ANGOUMOIS - 6 pièces - 203 m² - (16110)

Prix honoraires inclus : 355 000 €

Honoraires à la charge de l'acquéreur : 4,48% TTC

Prix hors honoraires : 339 779 €

Simulez votre mensualité pour l'achat de ce bien !

*Choissisez une durée d'emprunt

Simulez votre mensualité avec notre partenaire ImmoBanques


Calculez votre temps de trajet depuis ce bien



Les informations locales de La Rochefoucauld

  • Transports
    • Arrêts de bus
    • Gares
    • Tramways
    • Arrêts de métro, RER
    • Aéroports
    • Parkings
  • Santé
    • Médecins généralistes
    • Médecins spécialistes
    • Pharmacies
    • Hôpitaux
  • Education Petite enfance
    • Crèches
    • Ecoles maternelles
    • Ecoles primaires
    • Collèges
    • Lycées
    • Enseignements supérieur
  • Loisirs & Culture
    • Restaurants, Cafés
    • Monuments, Bibliothèques
    • Sport
    • Espaces verts
    • Théatres, Cinémas, Casinos
  • Commerces Administration
    • Supermarchés
    • Bureaux de poste
    • Boulangeries
    • Boucheries
    • Marchés
    • Mairies, Police, Gendarmerie

Plus d’informations sur la ville de La Rochefoucauld

  • Population : 2 850 habitants
  • Propriétaires : 51 %
  • Résidences secondaires : 3 %
  • Revenus moyens : 1 710 euros / mois
  • Taxe d'habitation* : 8 %
  • Taxe foncière* : 20 %
  • Densité de logements : 3 log/ha
  • Type de maison : Logements vacants
  • Logements sociaux : 13 %
  • Densité de population : 390 hab/km²

*Taux basé sur la valeur locative cadastrale

Agence immobilière ancien neuf La Rochefoucauld
12 RUE DES HALLES
16110 LA ROCHEFOUCAULD