Maison à vendre |  La Flotte |  7 pièces | 167 m²
Vendu
Réf : 485-373

Environnement privilégié à 150 mètres de l'océan, hors zone inondable. Cette propriété construite sur un terrain d'exception d'environ 2 000 m², offre un volume habitable de cinq chambres en parfait état, garage, parking et dépendances. En complément, un second accès permet un fort potentiel : construction, extension ou division.

Bien sous compromis Bien sous compromis
  • Surface habitable : 167 m²
  • Superficie terrain : 2 060 m²
  • Surface du séjour : 50 m²
  • Exposition séjour : Est Ouest
  • Pièce(s) : 7
  • Chambre(s) : 5
  • Cuisine : Equipée
  • Salle(s) de bain : 1
  • Salle(s) d'eau : 1
  • WC : 2
  • Chauffage : Électrique
  • Terrasse : Oui
  • Grenier,Combles : Oui
  • Garage(s) : 1
  • Parking(s) : 3
A
B
C
D
E
F
G
Dont Emission de gaz
à effet de serre
A
B
C
D
E
F
G
Afficher le DPE

Les informations sur les risques auxquels ce bien est exposé sont disponible sur le site Géorisques :
www.georisques.gouv.fr

Photo originale Photo retouchée
Laissez-vous inspirer par nos décorateurs

Ils ont imaginé pour vous cet aménagement virtuel non contractuel. L'extérieur a été entièrement repensé afin de révéler tout son potentiel.

> Prendre rendez-vous pour visiter
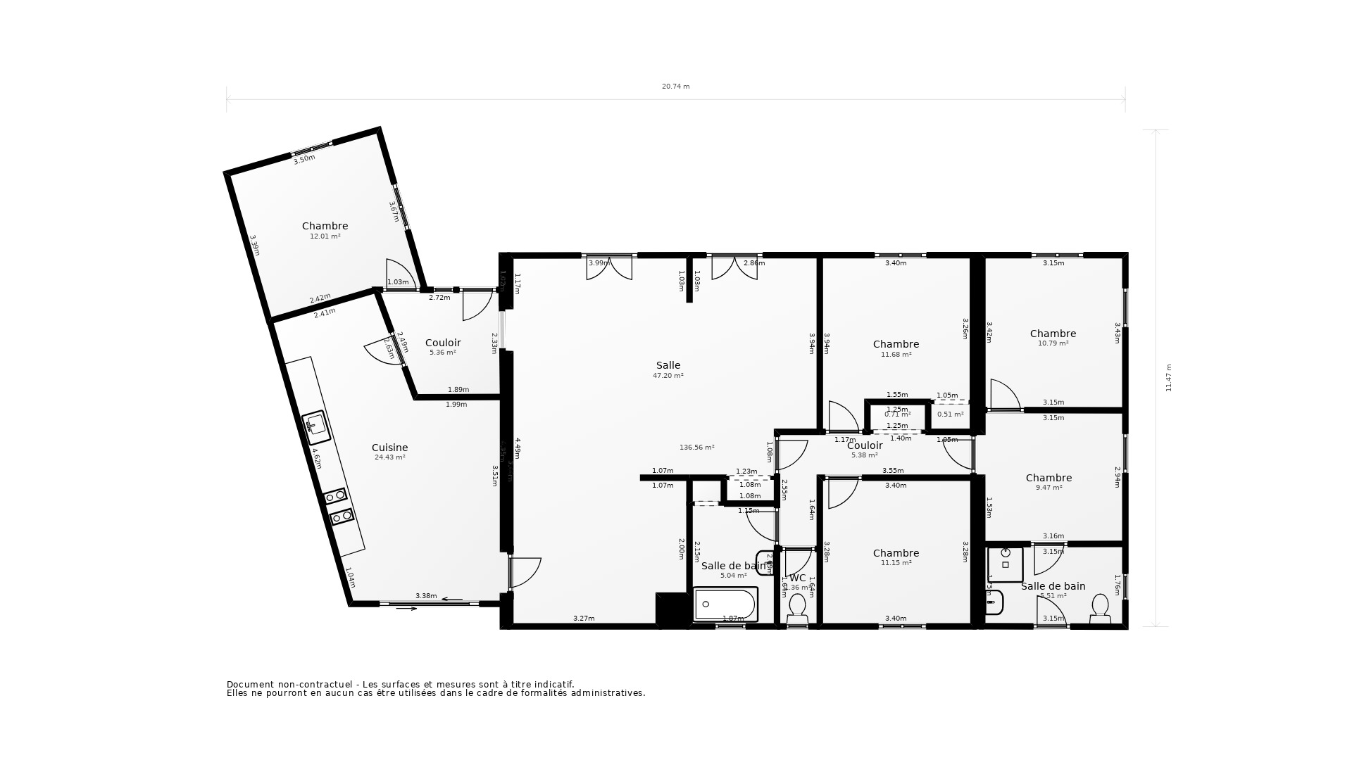
Prenez les mesures

Ce plan 2D représente la structure complète et précise du bien. La surface de chaque pièce est précisée à titre informatif. Ce plan ne se substitue en aucun cas à un diagnostic loi Carrez réalisé par un professionnel certifié.

> Télécharger le plan
Vente Maison LA FLOTTE - 7 pièces - 167 m² - (17630)
Simulez votre mensualité pour l'achat de ce bien !

*Choissisez une durée d'emprunt

Simulez votre mensualité avec notre partenaire ImmoBanques


Calculez votre temps de trajet depuis ce bien



Les informations locales de La Flotte

  • Transports
    • Arrêts de bus
    • Gares
    • Tramways
    • Arrêts de métro, RER
    • Aéroports
    • Parkings
  • Santé
    • Médecins généralistes
    • Médecins spécialistes
    • Pharmacies
    • Hôpitaux
  • Education Petite enfance
    • Crèches
    • Ecoles maternelles
    • Ecoles primaires
    • Collèges
    • Lycées
    • Enseignements supérieur
  • Loisirs & Culture
    • Restaurants, Cafés
    • Monuments, Bibliothèques
    • Sport
    • Espaces verts
    • Théatres, Cinémas, Casinos
  • Commerces Administration
    • Supermarchés
    • Bureaux de poste
    • Boulangeries
    • Boucheries
    • Marchés
    • Mairies, Police, Gendarmerie

Plus d’informations sur la ville de La Flotte

  • Population : 2 860 habitants
  • Propriétaires : 61 %
  • Résidences secondaires : 54 %
  • Revenus moyens : 2 600 euros / mois
  • Taxe d'habitation* : 11 %
  • Taxe foncière* : 16 %
  • Densité de logements : 3 log/ha
  • Type de maison : Résidences secondaires
  • Logements sociaux : 13 %
  • Densité de population : 230 hab/km²

*Taux basé sur la valeur locative cadastrale

Agence immobilière ancien neuf La Flotte en Ré
17 QUAI DE SENAC
17630 LA FLOTTE