Maison à vendre |  Houdan |  4 pièces | 68 m²
210 400 €
Réf : 228-2049
Visitez en avant-première

A Houdan, maison idéalement située au calme, proche de la gare ligne N, et à proximité des commerces. Disposant d'une chambre et un bureau/dressing, un séjour de 35m² donnant sur une véranda. Une place de stationnement privative et un jardin complétent ce bien.

Ce bien est soumis à la copropriété. Les charges courantes annuelles sont estimées à 140 €.

  • Surface habitable : 68 m²
  • Superficie terrain : 166 m²
  • Surface du séjour : 30 m²
  • Exposition séjour : Sud Est
  • Pièce(s) : 4
  • Chambre(s) : 1
  • Cuisine : Equipée
  • Salle(s) d'eau : 1
  • WC : 1
  • Chauffage : Électrique
  • Grenier,Combles : Oui
  • Parking(s) : 1
A
B
C
D
E
F
G
Dont Emission de gaz
à effet de serre
A
B
C
D
E
F
G
Afficher le DPE

Les informations sur les risques auxquels ce bien est exposé sont disponible sur le site Géorisques :
www.georisques.gouv.fr

Photo originale Photo retouchée
Laissez-vous inspirer par nos décorateurs

Avec la complicité de notre partenaire, nous vous proposons cet aménagement virtuel non contractuel. La pièce a été entièrement repensée et laisse place à une décoration actuelle et tendance.

> Prendre rendez-vous pour visiter
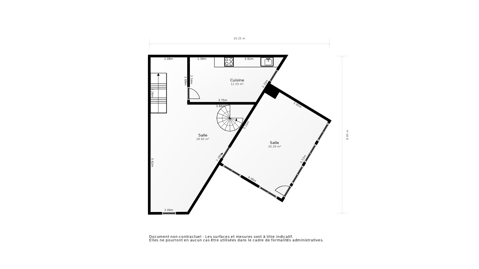
Prenez les mesures

Ce plan 2D représente la structure complète et précise du bien. La surface de chaque pièce est précisée à titre informatif. Ce plan ne se substitue en aucun cas à un diagnostic loi Carrez réalisé par un professionnel certifié.

> Télécharger le plan
Vente Maison HOUDAN - 4 pièces - 68 m² - (78550)
Vente Maison HOUDAN - 4 pièces - 68 m² - (78550)
Vente Maison HOUDAN - 4 pièces - 68 m² - (78550)

Prix honoraires inclus : 210 400 €

Honoraires à la charge de l'acquéreur : 5,20% TTC

Prix hors honoraires : 200 000 €

Simulez votre mensualité pour l'achat de ce bien !

*Choissisez une durée d'emprunt

Simulez votre mensualité avec notre partenaire ImmoBanques


Calculez votre temps de trajet depuis ce bien



Les informations locales de Houdan

  • Transports
    • Arrêts de bus
    • Gares
    • Tramways
    • Arrêts de métro, RER
    • Aéroports
    • Parkings
  • Santé
    • Médecins généralistes
    • Médecins spécialistes
    • Pharmacies
    • Hôpitaux
  • Education Petite enfance
    • Crèches
    • Ecoles maternelles
    • Ecoles primaires
    • Collèges
    • Lycées
    • Enseignements supérieur
  • Loisirs & Culture
    • Restaurants, Cafés
    • Monuments, Bibliothèques
    • Sport
    • Espaces verts
    • Théatres, Cinémas, Casinos
  • Commerces Administration
    • Supermarchés
    • Bureaux de poste
    • Boulangeries
    • Boucheries
    • Marchés
    • Mairies, Police, Gendarmerie

Plus d’informations sur la ville de Houdan

  • Population : 3 380 habitants
  • Propriétaires : 46 %
  • Résidences secondaires : 1 %
  • Revenus moyens : 2 450 euros / mois
  • Taxe d'habitation* : 9 %
  • Taxe foncière* : 10 %
  • Densité de logements : 2 log/ha
  • Type de maison : Appartements et maisons de ville
  • Logements sociaux : 13 %
  • Densité de population : 330 hab/km²

*Taux basé sur la valeur locative cadastrale

Agence immobilière ancien neuf Villiers Saint Frédéric
7 ROUTE DE SAINT-GERMAIN
78640 VILLIERS-SAINT-FRÉDÉRIC