Maison à vendre |  Couëron |  6 pièces | 120 m²
Vendu
Réf : 575-178

EN EXCLUSIVITE ! A proximité immédiate du bourg de la Chabossière ! Cette maison en pierre vous offre un vrai confort de vie suite aux travaux énergétiques réalisés. Elle vous séduira par son cadre familial avec sa pièce de vie de 60 m², ses 4 chambres et sa mezzanine, une terrasse sur jardin clos exposé plein SUD. A visiter !

Bien sous compromis Bien sous compromis
  • Surface habitable : 120 m²
  • Superficie terrain : 344 m²
  • Surface du séjour : 61 m²
  • Exposition séjour : Plein Sud
  • Pièce(s) : 6
  • Chambre(s) : 4
  • Cuisine : Américaine équipée
  • Salle(s) de bain : 1
  • Salle(s) d'eau : 1
  • WC : 2
  • Chauffage : Gaz
  • Parking(s) : 4
  • Mitoyenneté : Oui
A
B
C
D
E
F
G
Dont Emission de gaz
à effet de serre
A
B
C
D
E
F
G
Afficher le DPE

Les informations sur les risques auxquels ce bien est exposé sont disponible sur le site Géorisques :
www.georisques.gouv.fr

Photo originale Photo retouchée
Laissez-vous inspirer par nos décorateurs

Avec la complicité de notre partenaire, nous vous proposons cet aménagement virtuel non contractuel. La pièce a été entièrement repensée et laisse place à une décoration actuelle et tendance.

> Prendre rendez-vous pour visiter
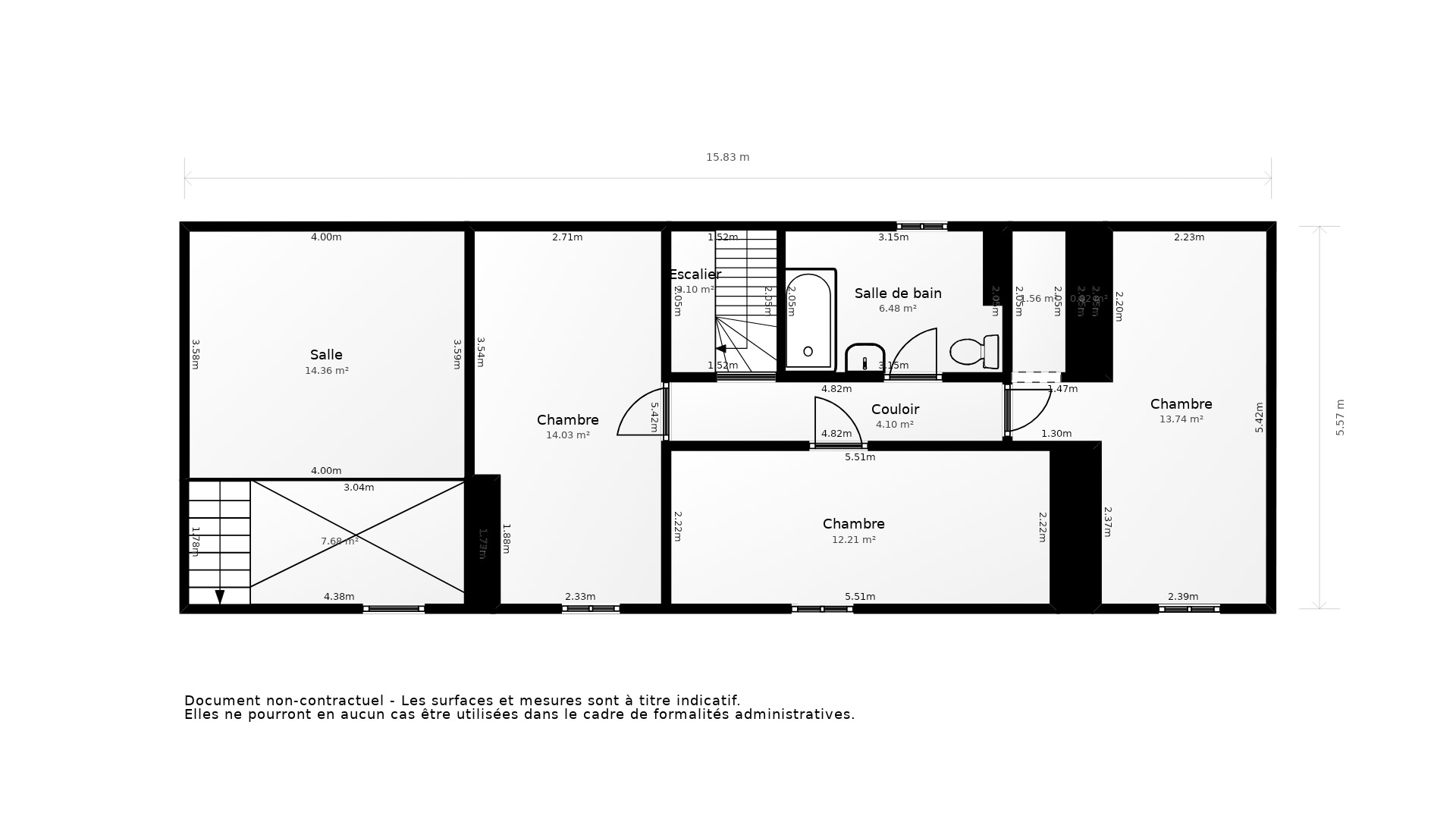
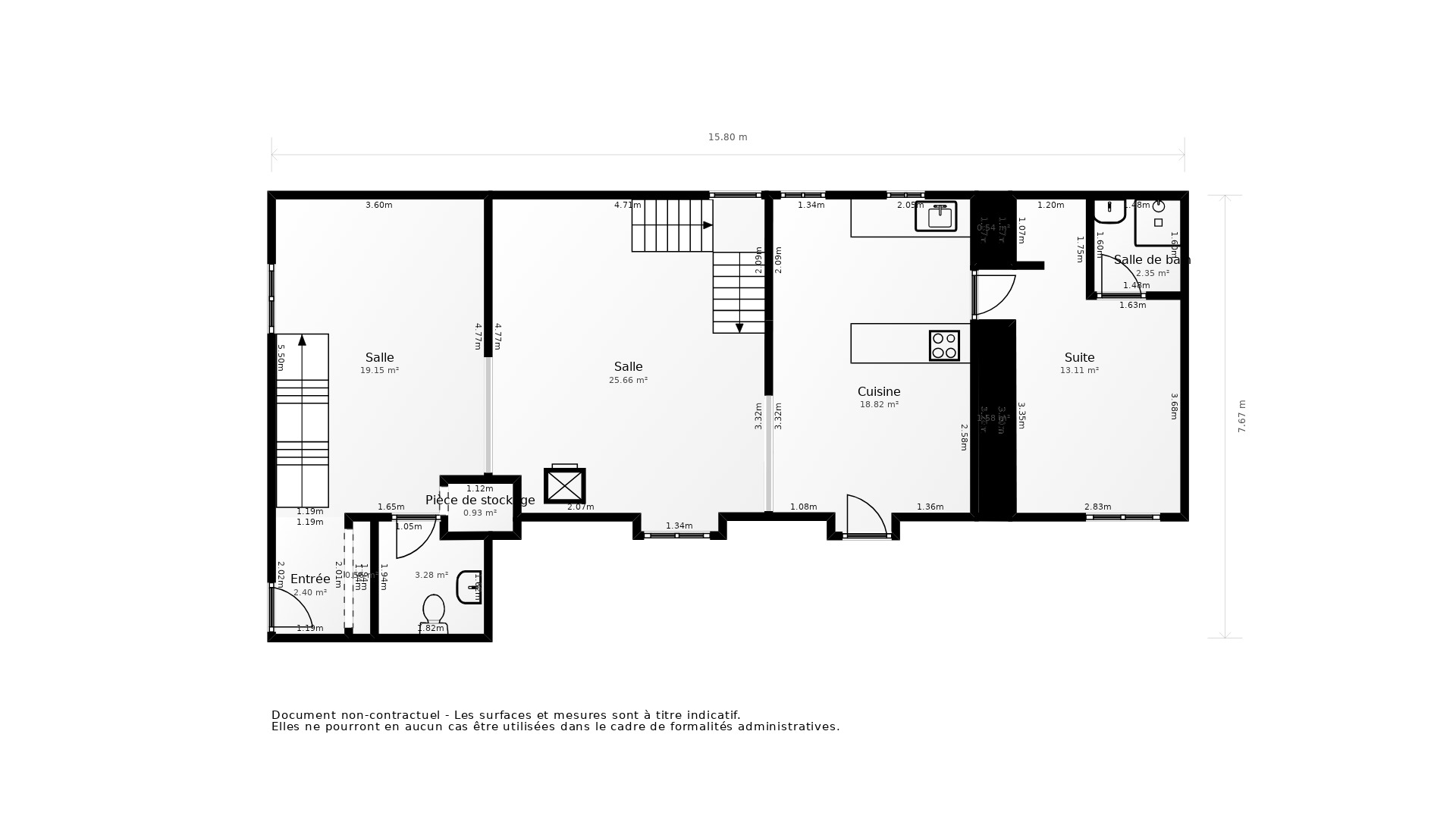
Prenez les mesures

Ce plan 2D représente la structure complète et précise du bien. La surface de chaque pièce est précisée à titre informatif. Ce plan ne se substitue en aucun cas à un diagnostic loi Carrez réalisé par un professionnel certifié.

> Télécharger le plan
Vente Maison COUERON - 6 pièces - 120 m² - (44220)
Vente Maison COUERON - 6 pièces - 120 m² - (44220)

Prix honoraires inclus : 304 735 €

Honoraires à la charge de l'acquéreur : 4,72% TTC

Prix hors honoraires : 291 000 €

Simulez votre mensualité pour l'achat de ce bien !

*Choissisez une durée d'emprunt

Simulez votre mensualité avec notre partenaire ImmoBanques


Calculez votre temps de trajet depuis ce bien



Les informations locales de Couëron

  • Transports
    • Arrêts de bus
    • Gares
    • Tramways
    • Arrêts de métro, RER
    • Aéroports
    • Parkings
  • Santé
    • Médecins généralistes
    • Médecins spécialistes
    • Pharmacies
    • Hôpitaux
  • Education Petite enfance
    • Crèches
    • Ecoles maternelles
    • Ecoles primaires
    • Collèges
    • Lycées
    • Enseignements supérieur
  • Loisirs & Culture
    • Restaurants, Cafés
    • Monuments, Bibliothèques
    • Sport
    • Espaces verts
    • Théatres, Cinémas, Casinos
  • Commerces Administration
    • Supermarchés
    • Bureaux de poste
    • Boulangeries
    • Boucheries
    • Marchés
    • Mairies, Police, Gendarmerie

Plus d’informations sur la ville de Couëron

  • Population : 19 760 habitants
  • Propriétaires : 73 %
  • Résidences secondaires : 0 %
  • Revenus moyens : 2 750 euros / mois
  • Taxe d'habitation* : 21 %
  • Taxe foncière* : 22 %
  • Densité de logements : 2 log/ha
  • Type de maison : Maisons récentes
  • Logements sociaux : 15 %
  • Densité de population : 400 hab/km²

*Taux basé sur la valeur locative cadastrale

Agence immobilière ancien neuf Couëron La Chabossière
2 RUE DU STADE
44220 COUËRON