Maison à vendre |  Clermont-l'Hérault |  5 pièces | 112 m²
Vendu
Réf : 187-4589

À Clermont-l'Hérault, villa en bois de 112m² + comble aménagé sur une parcelle de 1000m². Elle dispose de 4 chambres et offre une vue magnifique. Un cadre naturel privilégié, sans vis-à-vis, alliant confort et sérénité. Un véritable havre de paix à découvrir rapidement. Une piscine semi-enterrée et un pool-house complètent ce bien.

Bien sous compromis Bien sous compromis
  • Surface habitable : 112 m²
  • Superficie terrain : 999 m²
  • Surface du séjour : 42 m²
  • Exposition séjour : Sud Ouest
  • Pièce(s) : 5
  • Chambre(s) : 4
  • Cuisine : Equipée
  • Salle(s) de bain : 1
  • WC : 1
  • Chauffage : Électrique
  • Parking(s) : 3
A
B
C
D
E
F
G
Dont Emission de gaz
à effet de serre
A
B
C
D
E
F
G
Afficher le DPE

Les informations sur les risques auxquels ce bien est exposé sont disponible sur le site Géorisques :
www.georisques.gouv.fr

Photo originale Photo retouchée
Laissez-vous inspirer par nos décorateurs

Avec la complicité de notre partenaire, nous vous proposons cet aménagement virtuel non contractuel. La pièce a été entièrement repensée et laisse place à une décoration actuelle et tendance.

> Prendre rendez-vous pour visiter
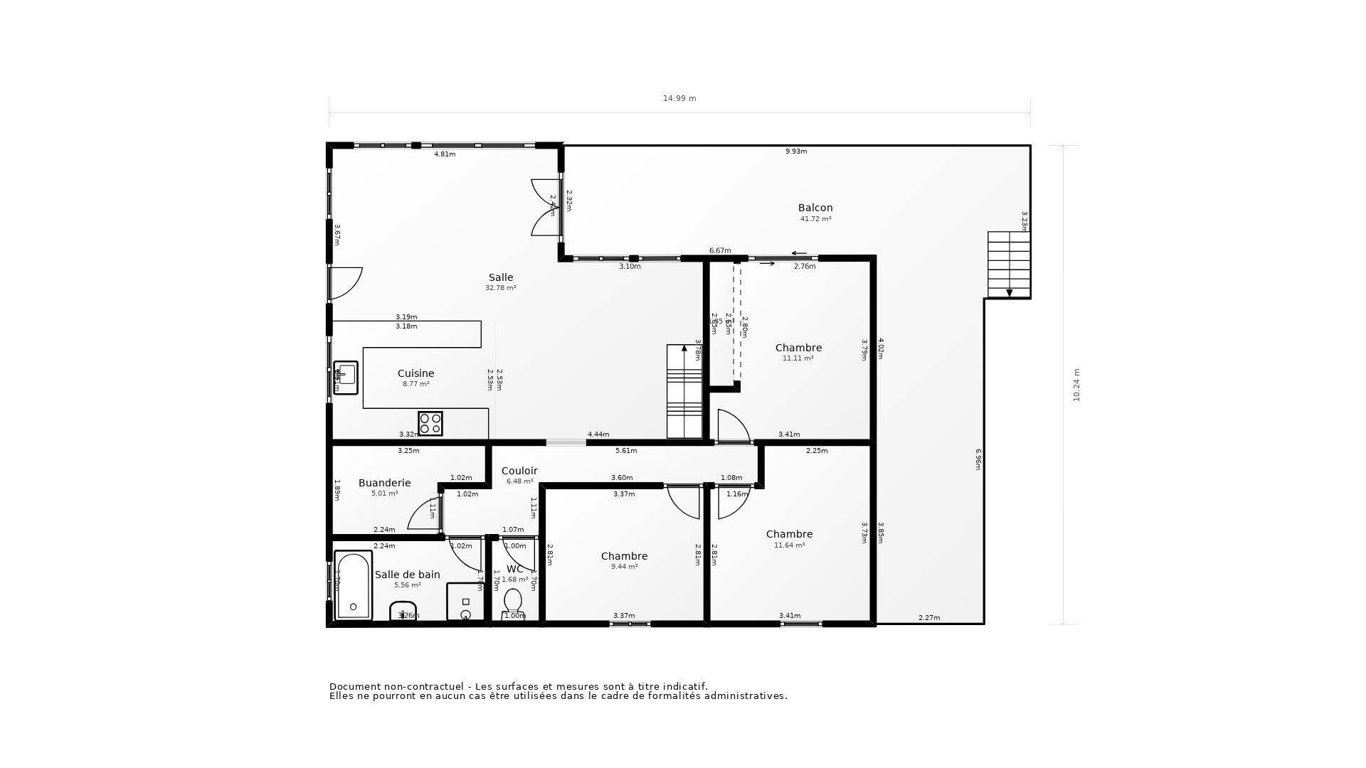
Prenez les mesures

Ce plan 2D représente la structure complète et précise du bien. La surface de chaque pièce est précisée à titre informatif. Ce plan ne se substitue en aucun cas à un diagnostic loi Carrez réalisé par un professionnel certifié.

> Télécharger le plan
Vente Maison CLERMONT L HERAULT - 5 pièces - 112 m² - (34800)
Vente Maison CLERMONT L HERAULT - 5 pièces - 112 m² - (34800)
Vente Maison CLERMONT L HERAULT - 5 pièces - 112 m² - (34800)

Prix honoraires inclus : 375 264 €

Honoraires à la charge de l'acquéreur : 4,24% TTC

Prix hors honoraires : 360 000 €

Simulez votre mensualité pour l'achat de ce bien !

*Choissisez une durée d'emprunt

Simulez votre mensualité avec notre partenaire ImmoBanques


Calculez votre temps de trajet depuis ce bien



Les informations locales de Clermont-l'Hérault

  • Transports
    • Arrêts de bus
    • Gares
    • Tramways
    • Arrêts de métro, RER
    • Aéroports
    • Parkings
  • Santé
    • Médecins généralistes
    • Médecins spécialistes
    • Pharmacies
    • Hôpitaux
  • Education Petite enfance
    • Crèches
    • Ecoles maternelles
    • Ecoles primaires
    • Collèges
    • Lycées
    • Enseignements supérieur
  • Loisirs & Culture
    • Restaurants, Cafés
    • Monuments, Bibliothèques
    • Sport
    • Espaces verts
    • Théatres, Cinémas, Casinos
  • Commerces Administration
    • Supermarchés
    • Bureaux de poste
    • Boulangeries
    • Boucheries
    • Marchés
    • Mairies, Police, Gendarmerie

Plus d’informations sur la ville de Clermont-l'Hérault

  • Population : 8 220 habitants
  • Propriétaires : 46 %
  • Résidences secondaires : 5 %
  • Revenus moyens : 1 740 euros / mois
  • Taxe d'habitation* : 13 %
  • Taxe foncière* : 29 %
  • Densité de logements : 1 log/ha
  • Type de maison : Appartements et maisons de ville
  • Logements sociaux : 14 %
  • Densité de population : 250 hab/km²

*Taux basé sur la valeur locative cadastrale

Agence immobilière ancien neuf Clermont l'Hérault
4 BOULEVARD GAMBETTA
34800 CLERMONT L HERAULT