Réf : 101-3759
  • Surface habitable : 225 m²
  • Superficie terrain : 250 m²
  • Surface du séjour : 53 m²
  • Exposition séjour : Plein Sud
  • Pièce(s) : 7
  • Chambre(s) : 5
  • Cuisine : Aménagée
  • Salle(s) de bain : 1
  • Salle(s) d'eau : 1
  • WC : 2
  • Chauffage : Électrique
  • Cheminée : Oui
  • Terrasse : Oui
  • Cave : Oui
  • Cellier : Oui
  • Grenier,Combles : Oui
  • Garage(s) : 2
  • Sous-sol : Oui
  • Mitoyenneté : Oui

Centre ville, proche de la gare de Chalais, belle maison en pierre offrant 5 chambres dont 1 en RDC, 1 grande pièce de vie lumineuse ouverte sur la cuisine aménagée, 2 salles d'eau, petite cour et terrasse couverte. Sous-sol complet avec garage et cave, possibilité de location saisonnière avec 1 partie privative. Belles prestations

Ne passez pas à côté de nouveaux biens

Picto Cloche AlerteCréer une alerte
A
B
C
D
E
F
G
Dont Emission de gaz à effet de serre
A
B
C
D
E
F
G

Les informations sur les risques auxquels ce bien est exposé sont disponible sur le site Géorisques : 
www.georisques.gouv.fr

originale retouchée
Visitez ce bien en avant-première

Cette visite virtuelle vous offre une expérience immersive pour appréhender la disposition et la circulation du bien. Prenez le temps de circuler dans chaque pièce pour vous faire une idée plus précise de son potentiel.

Prenez les mesures du bien
Vente Maison CHALAIS - 7 pièces - 225 m² - (16210)
Vente Maison CHALAIS - 7 pièces - 225 m² - (16210)

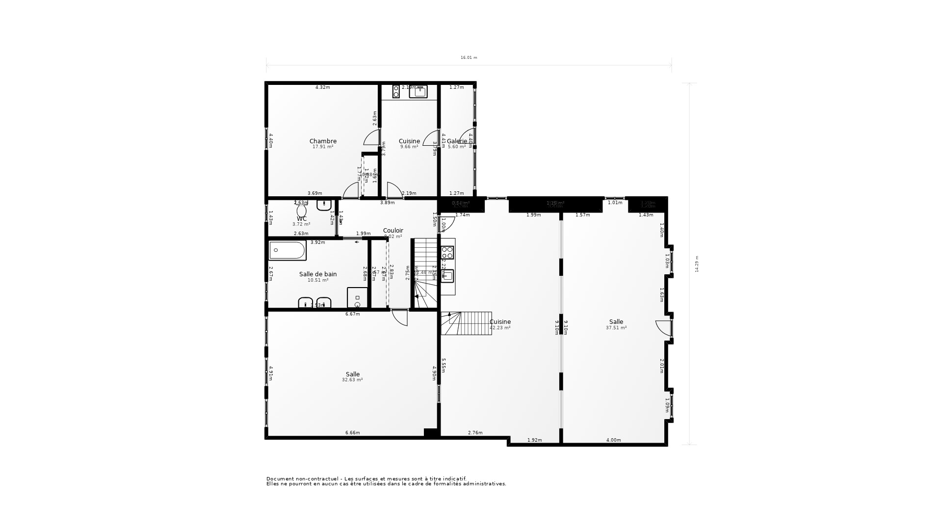
Ce plan 2D représente la structure complète et précise du bien. La surface de chaque pièce est précisée à titre informatif. Ce plan ne se substitue en aucun cas à un diagnostic loi Carrez réalisé par un professionnel certifié.

Télécharger le plan

Calculez votre temps de trajet depuis ce bien

Les informations locales de Chalais

  • Transports
    • Arrêts de bus
    • Gares
    • Tramways
    • Arrêts de métro, RER
    • Aéroports
    • Parkings
  • Santé
    • Médecins généralistes
    • Médecins spécialistes
    • Pharmacies
    • Hôpitaux
  • Education Petite enfance
    • Crèches
    • Ecoles maternelles
    • Ecoles primaires
    • Collèges
    • Lycées
    • Enseignements supérieur
  • Loisirs & Culture
    • Restaurants, Cafés
    • Monuments, Bibliothèques
    • Sport
    • Espaces verts
    • Théatres, Cinémas, Casinos
  • Commerces Administration
    • Supermarchés
    • Bureaux de poste
    • Boulangeries
    • Boucheries
    • Marchés
    • Mairies, Police, Gendarmerie

Plus d’informations sur la ville de Chalais

  • Population : 1 810 habitants
  • Propriétaires : 56 %
  • Résidences secondaires : 8 %
  • Revenus moyens : 1 620 euros / mois
  • Taxe d'habitation* : 10 %
  • Taxe foncière* : 29 %
  • Densité de logements : 1 log/ha
  • Type de maison : Logements vacants
  • Logements sociaux : 3 %
  • Densité de population : 100 hab/km²

*Taux basé sur la valeur locative cadastrale

Prix honoraires inclus : 228 284 € - Honoraires à la charge de l'acquéreur : 5,20% TTC - Prix hors honoraires : 217 000 €

Simulez votre mensualité avec notre partenaire ImmoBanques


Maison à vendre 228 284 € Chalais 7 p 225 m² DPE D

Réf : 101-3759 A partir
Chalais HUMAN Immobilier
3 AVENUE DE LA GARE
16210 CHALAIS