Maison à vendre |  Castets |  5 pièces | 113 m²
Vendu
Réf : 534-442

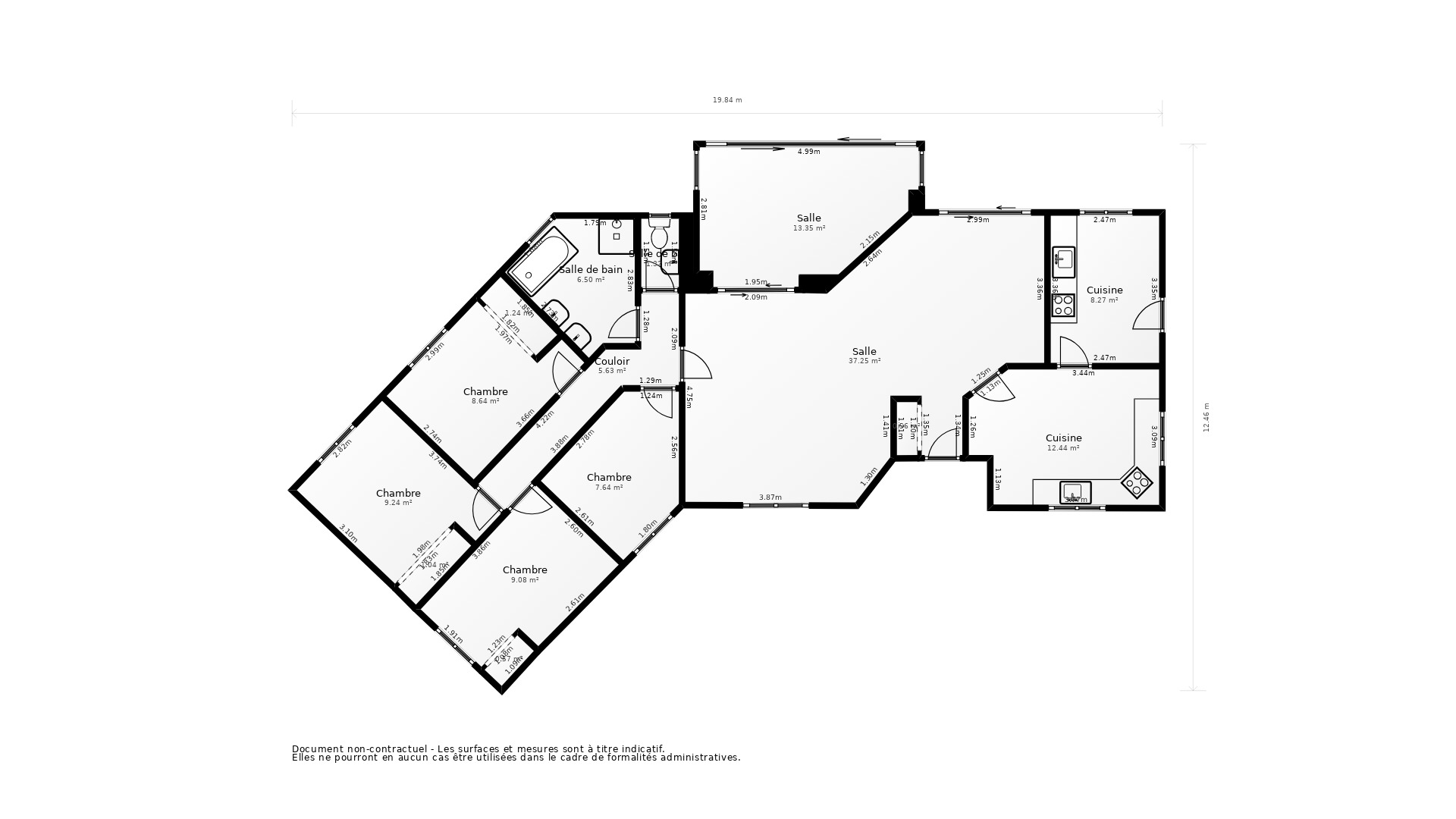
Proche du centre, dans un quartier tranquille, plain-pied entièrement clôturé, composé de 3 chambres, 1 bureau, salon/séjour, cuisine équipée et aménagée, cellier, une salle de bain et d'eau, wc. Dépendance de 55 m² : abri voitures et atelier. Ses plus : chauffage au sol électrique, poêle à bois, climatisation réversible.

Bien sous compromis Bien sous compromis
  • Surface habitable : 113 m²
  • Superficie terrain : 786 m²
  • Surface du séjour : 39 m²
  • Exposition séjour : Sud Ouest
  • Pièce(s) : 5
  • Chambre(s) : 3
  • Cuisine : Aménagée
  • Salle(s) de bain : 1
  • WC : 1
  • Chauffage : Pompe à chaleur
  • Cheminée : Oui
  • Cellier : Oui
  • Garage(s) : 1
  • Parking(s) : 6
A
B
C
D
E
F
G
Dont Emission de gaz
à effet de serre
A
B
C
D
E
F
G
Afficher le DPE

Les informations sur les risques auxquels ce bien est exposé sont disponible sur le site Géorisques :
www.georisques.gouv.fr

Prenez les mesures

Ce plan 2D représente la structure complète et précise du bien. La surface de chaque pièce est précisée à titre informatif. Ce plan ne se substitue en aucun cas à un diagnostic loi Carrez réalisé par un professionnel certifié.

> Télécharger le plan
Vente Maison CASTETS - 5 pièces - 113 m² - (40260)

Prix honoraires inclus : 329 868 €

Honoraires à la charge de l'acquéreur : 4,72% TTC

Prix hors honoraires : 315 000 €

Simulez votre mensualité pour l'achat de ce bien !

*Choissisez une durée d'emprunt

Simulez votre mensualité avec notre partenaire ImmoBanques


Calculez votre temps de trajet depuis ce bien



Les informations locales de Castets

  • Transports
    • Arrêts de bus
    • Gares
    • Tramways
    • Arrêts de métro, RER
    • Aéroports
    • Parkings
  • Santé
    • Médecins généralistes
    • Médecins spécialistes
    • Pharmacies
    • Hôpitaux
  • Education Petite enfance
    • Crèches
    • Ecoles maternelles
    • Ecoles primaires
    • Collèges
    • Lycées
    • Enseignements supérieur
  • Loisirs & Culture
    • Restaurants, Cafés
    • Monuments, Bibliothèques
    • Sport
    • Espaces verts
    • Théatres, Cinémas, Casinos
  • Commerces Administration
    • Supermarchés
    • Bureaux de poste
    • Boulangeries
    • Boucheries
    • Marchés
    • Mairies, Police, Gendarmerie

Plus d’informations sur la ville de Castets

  • Population : 1 990 habitants
  • Propriétaires : 65 %
  • Résidences secondaires : 9 %
  • Revenus moyens : 2 390 euros / mois
  • Taxe d'habitation* : 12 %
  • Taxe foncière* : 12 %
  • Densité de logements : <1 log/ha
  • Type de maison : Maisons récentes
  • Logements sociaux : 6 %
  • Densité de population : 20 hab/km²

*Taux basé sur la valeur locative cadastrale

Agence immobilière ancien neuf Castets
160 RUE SAINTE HÉLÈNE
40260 CASTETS