Maison à vendre |  Cabrières |  6 pièces | 133 m²
307 999 €
Réf : 187-4586
Visitez en avant-première

À proximité de Clermont l'Hérault, profitez d'un cadre de vie chaleureux avec la vue sur ses collines. Une pièce de vie traversante, elle se compose d'un salon avec une double ouverture sur une terrasse ensoleillée, de 2 chambres de 13 m² et 12 m² au RDC avec salle d'eau et buanderie, et de 2 chambres avec salle de bain à l'étage.

  • Surface habitable : 133 m²
  • Superficie terrain : 576 m²
  • Surface du séjour : 48 m²
  • Exposition séjour : Plein Est
  • Pièce(s) : 6
  • Chambre(s) : 4
  • Cuisine : Equipée
  • Salle(s) de bain : 1
  • Salle(s) d'eau : 1
  • WC : 2
  • Chauffage : Électrique
  • Terrasse : Oui
  • Parking(s) : 1
  • Mitoyenneté : Oui
A
B
C
D
E
F
G
Dont Emission de gaz
à effet de serre
A
B
C
D
E
F
G
Afficher le DPE

Les informations sur les risques auxquels ce bien est exposé sont disponible sur le site Géorisques :
www.georisques.gouv.fr

Prenez les mesures

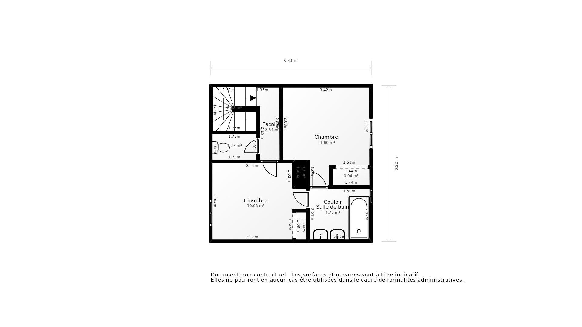
Ce plan 2D représente la structure complète et précise du bien. La surface de chaque pièce est précisée à titre informatif. Ce plan ne se substitue en aucun cas à un diagnostic loi Carrez réalisé par un professionnel certifié.

> Télécharger le plan
Vente Maison CABRIERES - 6 pièces - 133 m² - (34800)
Vente Maison CABRIERES - 6 pièces - 133 m² - (34800)

Prix honoraires inclus : 307 999 €

Honoraires à la charge de l'acquéreur : 4,72% TTC

Prix hors honoraires : 294 118 €

Simulez votre mensualité pour l'achat de ce bien !

*Choissisez une durée d'emprunt

Simulez votre mensualité avec notre partenaire ImmoBanques


Calculez votre temps de trajet depuis ce bien



Les informations locales de Cabrières

  • Transports
    • Arrêts de bus
    • Gares
    • Tramways
    • Arrêts de métro, RER
    • Aéroports
    • Parkings
  • Santé
    • Médecins généralistes
    • Médecins spécialistes
    • Pharmacies
    • Hôpitaux
  • Education Petite enfance
    • Crèches
    • Ecoles maternelles
    • Ecoles primaires
    • Collèges
    • Lycées
    • Enseignements supérieur
  • Loisirs & Culture
    • Restaurants, Cafés
    • Monuments, Bibliothèques
    • Sport
    • Espaces verts
    • Théatres, Cinémas, Casinos
  • Commerces Administration
    • Supermarchés
    • Bureaux de poste
    • Boulangeries
    • Boucheries
    • Marchés
    • Mairies, Police, Gendarmerie

Plus d’informations sur la ville de Cabrières

  • Population : 480 habitants
  • Propriétaires : 70 %
  • Résidences secondaires : 26 %
  • Revenus moyens : 1 760 euros / mois
  • Taxe d'habitation* : 10 %
  • Taxe foncière* : 17 %
  • Densité de logements : <1 log/ha
  • Type de maison : Maisons récentes
  • Logements sociaux : 6 %
  • Densité de population : 20 hab/km²

*Taux basé sur la valeur locative cadastrale

Agence immobilière ancien neuf Clermont l'Hérault
4 BOULEVARD GAMBETTA
34800 CLERMONT L HERAULT