Maison à vendre |  Bassens |  5 pièces | 125 m²
Vendu
Réf : 19-4960

Sur la commune de Bassens, proche du tram charmante maison contemporaine offrant 4 chambres dont une suite parentale au RDC, salon ouvert sur cuisine avec une belle hauteur sous plafond, garage attenant et une piscine idéale pour les beaux jours.

Bien sous compromis Bien sous compromis
  • Surface habitable : 125 m²
  • Superficie terrain : 300 m²
  • Surface du séjour : 45 m²
  • Pièce(s) : 5
  • Chambre(s) : 4
  • Cuisine : Américaine équipée
  • Salle(s) de bain : 1
  • Salle(s) d'eau : 1
  • WC : 2
  • Chauffage : Gaz
  • Piscine : Oui
A
B
C
D
E
F
G
Dont Emission de gaz
à effet de serre
A
B
C
D
E
F
G
Afficher le DPE

Les informations sur les risques auxquels ce bien est exposé sont disponible sur le site Géorisques :
www.georisques.gouv.fr

Photo originale Photo retouchée
Laissez-vous inspirer par nos décorateurs

Ils ont imaginé pour vous cet aménagement virtuel non contractuel. L'extérieur a été entièrement repensé afin de révéler tout son potentiel.

> Prendre rendez-vous pour visiter
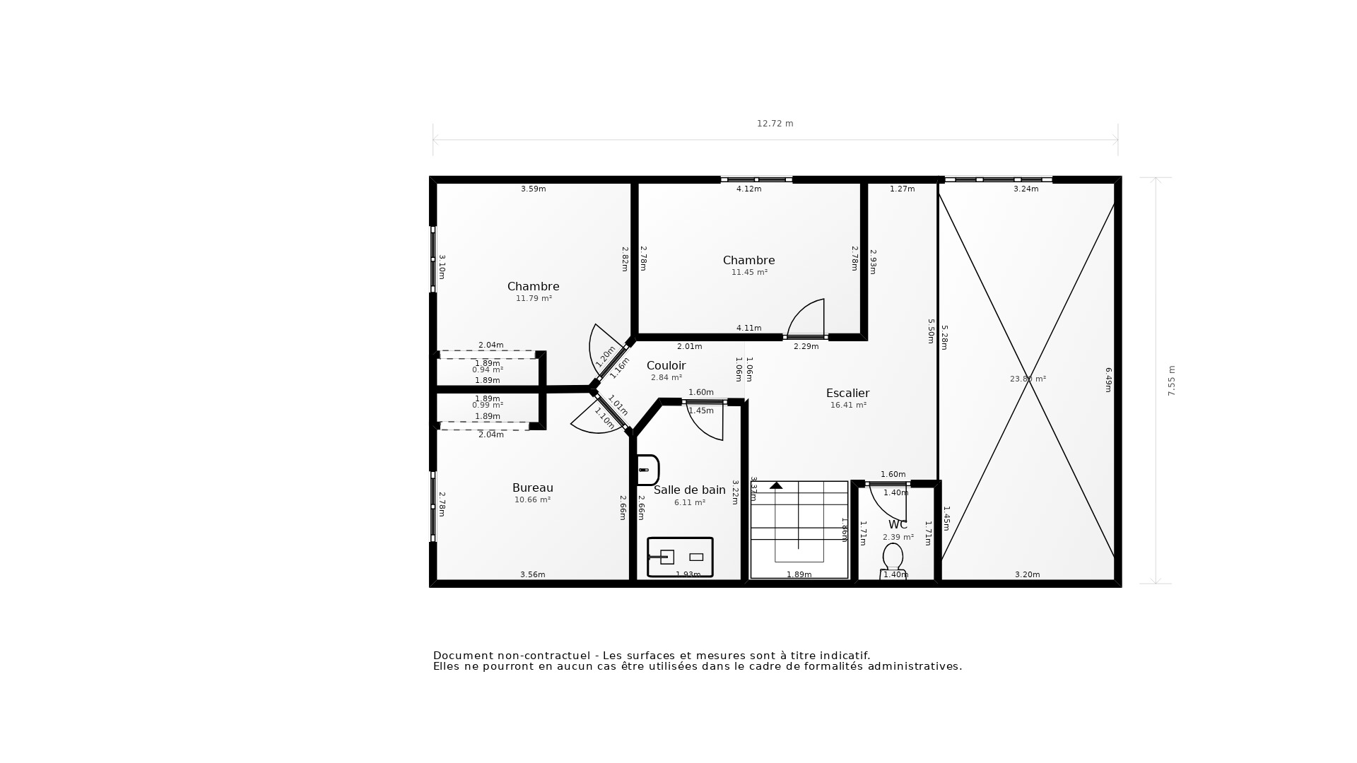
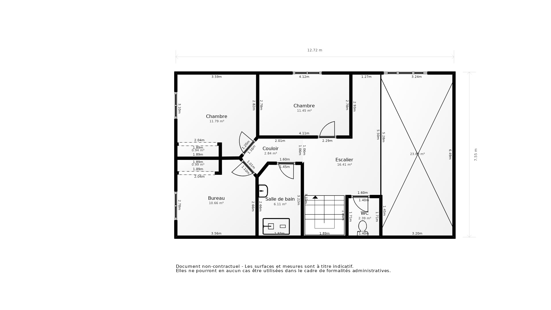
Prenez les mesures

Ce plan 2D représente la structure complète et précise du bien. La surface de chaque pièce est précisée à titre informatif. Ce plan ne se substitue en aucun cas à un diagnostic loi Carrez réalisé par un professionnel certifié.

> Télécharger le plan
Vente Maison BASSENS - 5 pièces - 125 m² - (33530)
Vente Maison BASSENS - 5 pièces - 125 m² - (33530)
Vente Maison BASSENS - 5 pièces - 125 m² - (33530)
Vente Maison BASSENS - 5 pièces - 125 m² - (33530)
Vente Maison BASSENS - 5 pièces - 125 m² - (33530)
Vente Maison BASSENS - 5 pièces - 125 m² - (33530)
Vente Maison BASSENS - 5 pièces - 125 m² - (33530)
Vente Maison BASSENS - 5 pièces - 125 m² - (33530)
Vente Maison BASSENS - 5 pièces - 125 m² - (33530)
Vente Maison BASSENS - 5 pièces - 125 m² - (33530)
Vente Maison BASSENS - 5 pièces - 125 m² - (33530)
Vente Maison BASSENS - 5 pièces - 125 m² - (33530)

Prix honoraires inclus : 385 688 €

Honoraires à la charge de l'acquéreur : 4,24% TTC

Prix hors honoraires : 370 000 €

Simulez votre mensualité pour l'achat de ce bien !

*Choissisez une durée d'emprunt

Simulez votre mensualité avec notre partenaire ImmoBanques


Calculez votre temps de trajet depuis ce bien



Les informations locales de Bassens

  • Transports
    • Arrêts de bus
    • Gares
    • Tramways
    • Arrêts de métro, RER
    • Aéroports
    • Parkings
  • Santé
    • Médecins généralistes
    • Médecins spécialistes
    • Pharmacies
    • Hôpitaux
  • Education Petite enfance
    • Crèches
    • Ecoles maternelles
    • Ecoles primaires
    • Collèges
    • Lycées
    • Enseignements supérieur
  • Loisirs & Culture
    • Restaurants, Cafés
    • Monuments, Bibliothèques
    • Sport
    • Espaces verts
    • Théatres, Cinémas, Casinos
  • Commerces Administration
    • Supermarchés
    • Bureaux de poste
    • Boulangeries
    • Boucheries
    • Marchés
    • Mairies, Police, Gendarmerie

Plus d’informations sur la ville de Bassens

  • Population : 6 970 habitants
  • Propriétaires : 47 %
  • Résidences secondaires : 1 %
  • Revenus moyens : 2 260 euros / mois
  • Taxe d'habitation* : 21 %
  • Taxe foncière* : 24 %
  • Densité de logements : 3 log/ha
  • Type de maison : Maisons récentes
  • Logements sociaux : 37 %
  • Densité de population : 670 hab/km²

*Taux basé sur la valeur locative cadastrale

Agence immobilière ancien neuf Ambarès
10 PLACE DE LA REPUBLIQUE
33440 AMBARES ET LAGRAVE