Maison à vendre |  Aubergenville |  4 pièces | 80 m²
Vendu
Réf : 288-2576

Quartier ELISABETHVILLE pour cette agréable maison lumineuse et entièrement rénovée avec gout et offrant pièce à vivre avec cuisine ouverte + accès direct sur jardin expo sud, deux chambres, salle d' eau, bureau. En annexe elle vous offrira une belle dépendance au fond du jardin, un garage. Le tout sur un jardin de 400m² env. A VOI

Bien sous compromis Bien sous compromis
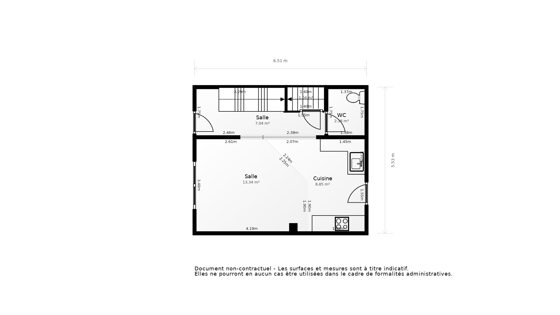
  • Surface habitable : 80 m²
  • Superficie terrain : 400 m²
  • Surface du séjour : 20 m²
  • Exposition séjour : Nord Sud
  • Pièce(s) : 4
  • Chambre(s) : 2
  • Cuisine : Américaine aménagée
  • Salle(s) d'eau : 1
  • WC : 1
  • Chauffage : Gaz
  • Cave : Oui
  • Garage(s) : 1
  • Parking(s) : 1
  • Mitoyenneté : Oui
A
B
C
D
E
F
G
Dont Emission de gaz
à effet de serre
A
B
C
D
E
F
G
Afficher le DPE

Les informations sur les risques auxquels ce bien est exposé sont disponible sur le site Géorisques :
www.georisques.gouv.fr

Photo originale Photo retouchée
Laissez-vous inspirer par nos décorateurs

Avec la complicité de notre partenaire, nous vous proposons cet aménagement virtuel non contractuel. La pièce a été entièrement repensée et laisse place à une décoration actuelle et tendance.

> Prendre rendez-vous pour visiter
Prenez les mesures

Ce plan 2D représente la structure complète et précise du bien. La surface de chaque pièce est précisée à titre informatif. Ce plan ne se substitue en aucun cas à un diagnostic loi Carrez réalisé par un professionnel certifié.

> Télécharger le plan
Vente Maison AUBERGENVILLE - 4 pièces - 80 m² - (78410)
Vente Maison AUBERGENVILLE - 4 pièces - 80 m² - (78410)
Vente Maison AUBERGENVILLE - 4 pièces - 80 m² - (78410)

Prix honoraires inclus : 265 000 €

Honoraires à la charge de l'acquéreur : 4,96% TTC

Prix hors honoraires : 252 478 €

Simulez votre mensualité pour l'achat de ce bien !

*Choissisez une durée d'emprunt

Simulez votre mensualité avec notre partenaire ImmoBanques


Calculez votre temps de trajet depuis ce bien



Les informations locales de Aubergenville

  • Transports
    • Arrêts de bus
    • Gares
    • Tramways
    • Arrêts de métro, RER
    • Aéroports
    • Parkings
  • Santé
    • Médecins généralistes
    • Médecins spécialistes
    • Pharmacies
    • Hôpitaux
  • Education Petite enfance
    • Crèches
    • Ecoles maternelles
    • Ecoles primaires
    • Collèges
    • Lycées
    • Enseignements supérieur
  • Loisirs & Culture
    • Restaurants, Cafés
    • Monuments, Bibliothèques
    • Sport
    • Espaces verts
    • Théatres, Cinémas, Casinos
  • Commerces Administration
    • Supermarchés
    • Bureaux de poste
    • Boulangeries
    • Boucheries
    • Marchés
    • Mairies, Police, Gendarmerie

Plus d’informations sur la ville de Aubergenville

  • Population : 11 620 habitants
  • Propriétaires : 49 %
  • Résidences secondaires : 1 %
  • Revenus moyens : 2 840 euros / mois
  • Taxe d'habitation* : 16 %
  • Taxe foncière* : 20 %
  • Densité de logements : 5 log/ha
  • Type de maison : Appartements et maisons de ville
  • Logements sociaux : 37 %
  • Densité de population : 1 270 hab/km²

*Taux basé sur la valeur locative cadastrale

Agence immobilière ancien neuf Aubergenville
2 BOULEVARD DE MANTES
78410 AUBERGENVILLE