Appartement à vendre |  Lyon 01 |  4 pièces | 102,1 m²
Vendu
Réf : 299-1718

Quartier Lyon 1


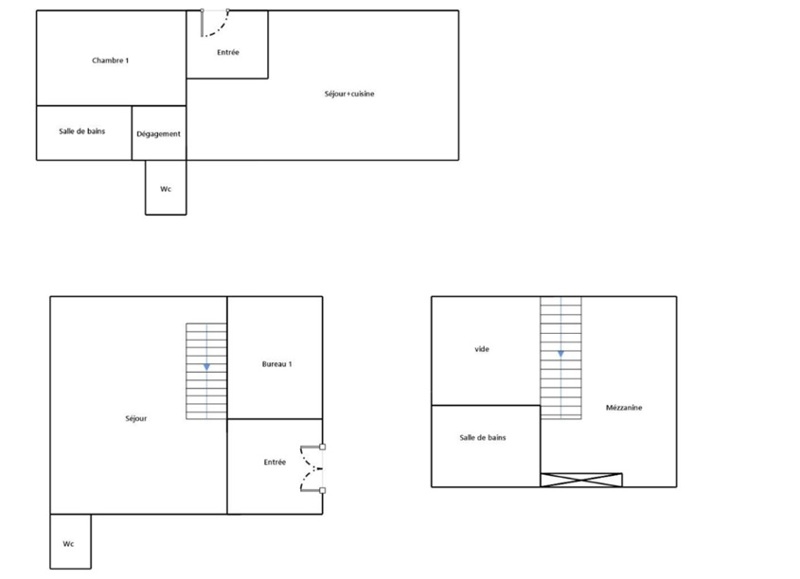
SOUS OFFRE PENTES CROIX ROUSSE. A deux pas du métro Croix Paquet, dans un bel immeunle ancien en cours de ravalement, nous vous proposons un projet à fort potentiel et plusieurs projections possibles: réunification en un unique logement duplex ou 2 lots distincts (50 et 48m2) pour investissement locatif. Cave au sous-sol.

Ce bien est soumis à la copropriété et comporte 33 lots. Les charges courantes annuelles sont estimées à 0 €.

Bien sous compromis Bien sous compromis
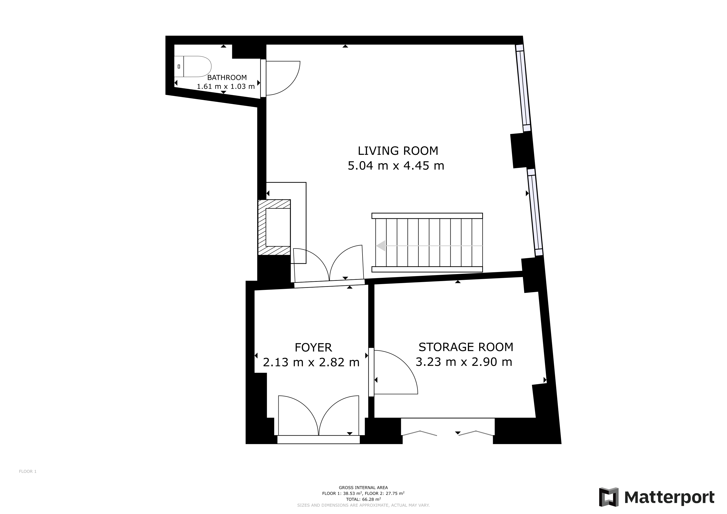
  • Surface habitable : 102,1 m²
  • Surface du séjour : 43 m²
  • Exposition séjour : Plein Ouest
  • Pièce(s) : 4
  • Chambre(s) : 2
  • Cuisine : Américaine
  • Salle(s) de bain : 2
  • WC : 2
  • Cave : Oui
  • Situation du bien : au rez-de-chaussée
Prenez les mesures

Ce plan 2D représente la structure complète et précise du bien. La surface de chaque pièce est précisée à titre informatif. Ce plan ne se substitue en aucun cas à un diagnostic loi Carrez réalisé par un professionnel certifié.

> Télécharger le plan
Vente Appartement LYON 01 - 4 pièces - 102,1 m² - (69001)
Vente Appartement LYON 01 - 4 pièces - 102,1 m² - (69001)

Prix honoraires inclus : 293 216 €

Honoraires à la charge de l'acquéreur : 4,72% TTC

Prix hors honoraires : 280 000 €

Simulez votre mensualité pour l'achat de ce bien !

*Choissisez une durée d'emprunt

Simulez votre mensualité avec notre partenaire ImmoBanques


Calculez votre temps de trajet depuis ce bien



Les informations locales du quartier Lyon 1 de Lyon 01

  • Transports
    • Arrêts de bus
    • Gares
    • Tramways
    • Arrêts de métro, RER
    • Aéroports
    • Parkings
  • Santé
    • Médecins généralistes
    • Médecins spécialistes
    • Pharmacies
    • Hôpitaux
  • Education Petite enfance
    • Crèches
    • Ecoles maternelles
    • Ecoles primaires
    • Collèges
    • Lycées
    • Enseignements supérieur
  • Loisirs & Culture
    • Restaurants, Cafés
    • Monuments, Bibliothèques
    • Sport
    • Espaces verts
    • Théatres, Cinémas, Casinos
  • Commerces Administration
    • Supermarchés
    • Bureaux de poste
    • Boulangeries
    • Boucheries
    • Marchés
    • Mairies, Police, Gendarmerie

Plus d’informations sur la ville de Lyon 01

  • Population : 29 210 habitants
  • Propriétaires : 31 %
  • Résidences secondaires : 3 %
  • Revenus moyens : 2 170 euros / mois
  • Taxe d'habitation* : 22 %
  • Taxe foncière* : 18 %
  • Densité de logements : 119 log/ha
  • Type de maison : Appartements de centre ville
  • Logements sociaux : 10 %
  • Densité de population : 19 380 hab/km²

*Taux basé sur la valeur locative cadastrale

Agence immobilière ancien neuf Lyon 4 Croix Rousse
138 BOULEVARD DE LA CROIX ROUSSE
69001 LYON 01