Appartement à vendre |  Bègles |  3 pièces | 63 m²
Vendu
Réf : 486-706

Quartier Mairie-Bourg


Human Bègles Centre vous propose; dans une copropriété sécurisée et entretenue, au calme, face au lac de Bègles, cet appartement T3 avec un séjour ouvert sur une grande terrasse sans vis-àvis exposé plein Ouest. Ce bien est vendu avec une place de parking et un box de rangement privatif.

Ce bien est soumis à la copropriété et comporte 100 lots. Les charges courantes annuelles sont estimées à 1200 €.

Bien sous compromis Bien sous compromis
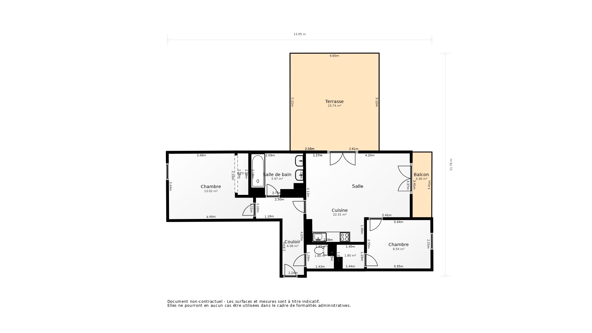
  • Surface habitable : 63 m²
  • Surface du séjour : 22 m²
  • Exposition séjour : Plein Ouest
  • Pièce(s) : 3
  • Chambre(s) : 2
  • Cuisine : Américaine équipée
  • Salle(s) de bain : 1
  • WC : 1
  • Chauffage : Gaz
  • Terrasse : Oui
  • Cellier : Oui
  • Parking(s) : 1
  • Situation du bien : autre
A
B
C
D
E
F
G
Dont Emission de gaz
à effet de serre
A
B
C
D
E
F
G
Afficher le DPE

Les informations sur les risques auxquels ce bien est exposé sont disponible sur le site Géorisques :
www.georisques.gouv.fr

Prenez les mesures

Ce plan 2D représente la structure complète et précise du bien. La surface de chaque pièce est précisée à titre informatif. Ce plan ne se substitue en aucun cas à un diagnostic loi Carrez réalisé par un professionnel certifié.

> Télécharger le plan
Vente Appartement BEGLES - 3 pièces - 63 m² - (33130)

Prix honoraires inclus : 199 808 €

Honoraires à la charge de l'acquéreur : 5,44% TTC

Prix hors honoraires : 189 500 €

Simulez votre mensualité pour l'achat de ce bien !

*Choissisez une durée d'emprunt

Simulez votre mensualité avec notre partenaire ImmoBanques


Calculez votre temps de trajet depuis ce bien



Les informations locales du quartier Mairie-Bourg de Bègles

  • Transports
    • Arrêts de bus
    • Gares
    • Tramways
    • Arrêts de métro, RER
    • Aéroports
    • Parkings
  • Santé
    • Médecins généralistes
    • Médecins spécialistes
    • Pharmacies
    • Hôpitaux
  • Education Petite enfance
    • Crèches
    • Ecoles maternelles
    • Ecoles primaires
    • Collèges
    • Lycées
    • Enseignements supérieur
  • Loisirs & Culture
    • Restaurants, Cafés
    • Monuments, Bibliothèques
    • Sport
    • Espaces verts
    • Théatres, Cinémas, Casinos
  • Commerces Administration
    • Supermarchés
    • Bureaux de poste
    • Boulangeries
    • Boucheries
    • Marchés
    • Mairies, Police, Gendarmerie

Plus d’informations sur la ville de Bègles

  • Population : 25 380 habitants
  • Propriétaires : 45 %
  • Résidences secondaires : 1 %
  • Revenus moyens : 2 260 euros / mois
  • Taxe d'habitation* : 25 %
  • Taxe foncière* : 34 %
  • Densité de logements : 11 log/ha
  • Type de maison : Maisons récentes
  • Logements sociaux : 30 %
  • Densité de population : 2 240 hab/km²

*Taux basé sur la valeur locative cadastrale

Agence immobilière ancien neuf Bègles Centre
5 PLACE DU 14 JUILLET
33130 BEGLES