Maison à vendre |  Valençay |  5 pièces | 192 m²
Vendu
Réf : 536-387

Sur les hauteurs de Valençay, laissez vous séduire par cette maison pleine de charme, aux beaux volumes : salon avec plafond cathédrale, mezzanine, 4 chambres dont deux de plain pied. Après rafraîchissement, elle dévoilera tout son potentiel. Grand jardin boisé sur 4 800m². Affaire rare et coup de coeur assuré.

Bien sous compromis Bien sous compromis
  • Surface habitable : 192 m²
  • Superficie terrain : 4 803 m²
  • Surface du séjour : 47 m²
  • Exposition séjour : Nord Ouest
  • Pièce(s) : 5
  • Chambre(s) : 4
  • Cuisine : Aménagée
  • Salle(s) de bain : 1
  • Salle(s) d'eau : 1
  • WC : 2
  • Chauffage : Électrique
  • Garage(s) : 1
  • Parking(s) : 3
A
B
C
D
E
F
G
Dont Emission de gaz
à effet de serre
A
B
C
D
E
F
G
Afficher le DPE

Les informations sur les risques auxquels ce bien est exposé sont disponible sur le site Géorisques :
www.georisques.gouv.fr

Photo originale Photo retouchée
Laissez-vous inspirer par nos décorateurs

Avec la complicité de notre partenaire, nous vous proposons cet aménagement virtuel non contractuel. La pièce a été entièrement repensée et laisse place à une décoration actuelle et tendance.

> Prendre rendez-vous pour visiter
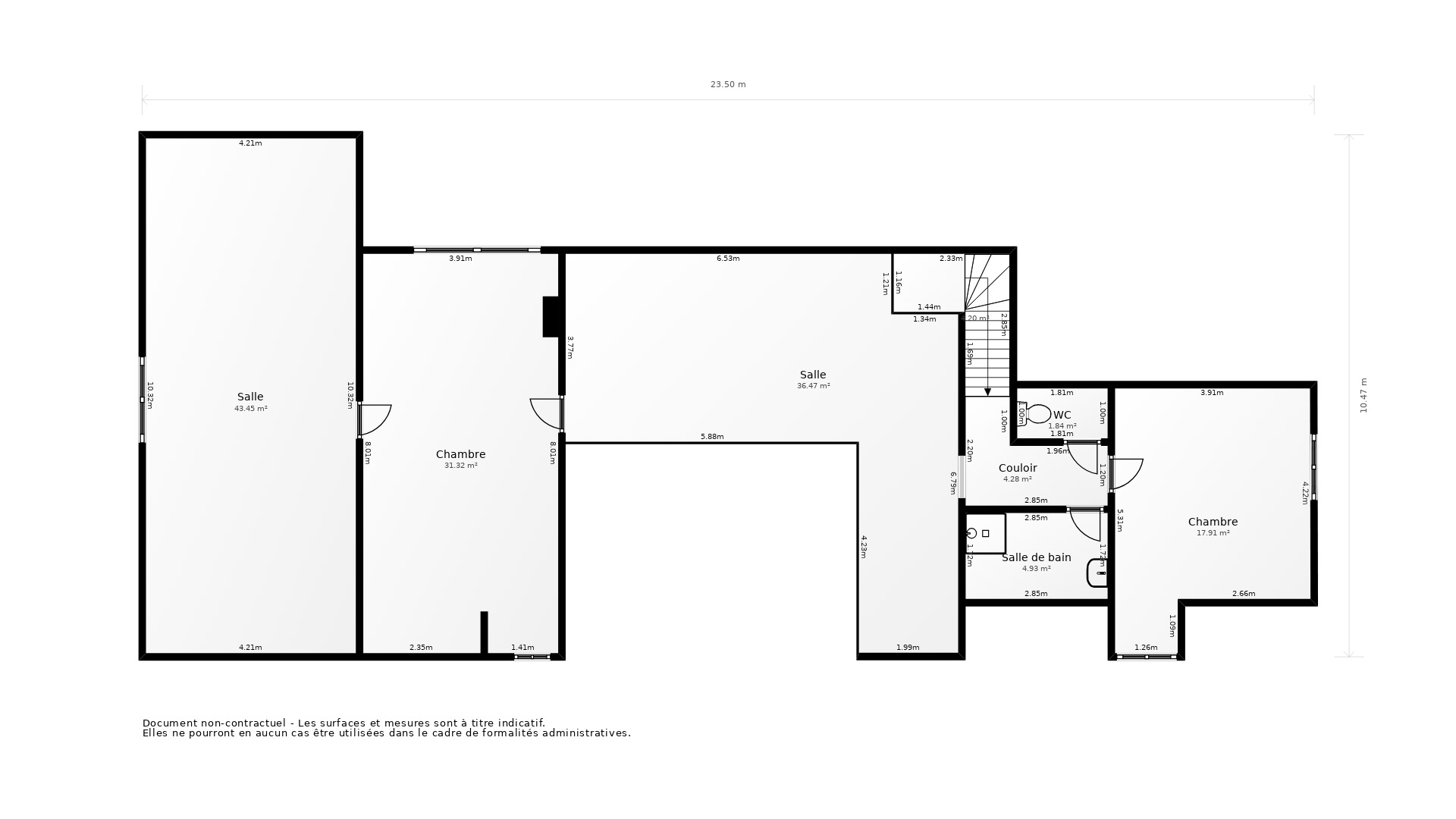
Prenez les mesures

Ce plan 2D représente la structure complète et précise du bien. La surface de chaque pièce est précisée à titre informatif. Ce plan ne se substitue en aucun cas à un diagnostic loi Carrez réalisé par un professionnel certifié.

> Télécharger le plan
Vente Maison VALENCAY - 5 pièces - 192 m² - (36600)
Vente Maison VALENCAY - 5 pièces - 192 m² - (36600)

Prix honoraires inclus : 142 576 €

Honoraires à la charge de l'acquéreur : 6,40% TTC

Prix hors honoraires : 134 000 €

Simulez votre mensualité pour l'achat de ce bien !

*Choissisez une durée d'emprunt

Simulez votre mensualité avec notre partenaire ImmoBanques


Calculez votre temps de trajet depuis ce bien



Les informations locales de Valençay

  • Transports
    • Arrêts de bus
    • Gares
    • Tramways
    • Arrêts de métro, RER
    • Aéroports
    • Parkings
  • Santé
    • Médecins généralistes
    • Médecins spécialistes
    • Pharmacies
    • Hôpitaux
  • Education Petite enfance
    • Crèches
    • Ecoles maternelles
    • Ecoles primaires
    • Collèges
    • Lycées
    • Enseignements supérieur
  • Loisirs & Culture
    • Restaurants, Cafés
    • Monuments, Bibliothèques
    • Sport
    • Espaces verts
    • Théatres, Cinémas, Casinos
  • Commerces Administration
    • Supermarchés
    • Bureaux de poste
    • Boulangeries
    • Boucheries
    • Marchés
    • Mairies, Police, Gendarmerie

Plus d’informations sur la ville de Valençay

  • Population : 2 580 habitants
  • Propriétaires : 69 %
  • Résidences secondaires : 10 %
  • Revenus moyens : 2 070 euros / mois
  • Taxe d'habitation* : 11 %
  • Taxe foncière* : 19 %
  • Densité de logements : <1 log/ha
  • Type de maison : Maisons anciennes
  • Logements sociaux : 16 %
  • Densité de population : 60 hab/km²

*Taux basé sur la valeur locative cadastrale

Agence immobilière ancien neuf Valencay
31 PLACE DE LA HALLE
36600 VALENÇAY