Maison à vendre |  Toulouse |  4 pièces | 99 m²
Vendu
Réf : 161-4964

Quartier Minimes


Toulouse Minimes, au coeur de la vie de quartier, venez découvrir cette belle maison de 1900. Grande pièce à vivre au rez-de-chaussée donnant sur un jardin arboré de 100 m² et sa terrasse exposée sud. A l'étage, deux grandes chambres et un bureau. Vous serez séduits par sa luminosité et ses espaces. Un vrai havre de paix.

Bien sous compromis Bien sous compromis
  • Surface habitable : 99 m²
  • Superficie terrain : 181 m²
  • Surface du séjour : 31 m²
  • Exposition séjour : Nord Sud
  • Pièce(s) : 4
  • Chambre(s) : 2
  • Cuisine : Equipée
  • Salle(s) d'eau : 1
  • WC : 2
  • Chauffage : Gaz
  • Cave : Oui
  • Mitoyenneté : Oui
A
B
C
D
E
F
G
Dont Emission de gaz
à effet de serre
A
B
C
D
E
F
G
Afficher le DPE

Les informations sur les risques auxquels ce bien est exposé sont disponible sur le site Géorisques :
www.georisques.gouv.fr

Photo originale Photo retouchée
Laissez-vous inspirer par nos décorateurs

Ils ont imaginé pour vous cet aménagement virtuel non contractuel. L'extérieur a été entièrement repensé afin de révéler tout son potentiel.

> Prendre rendez-vous pour visiter
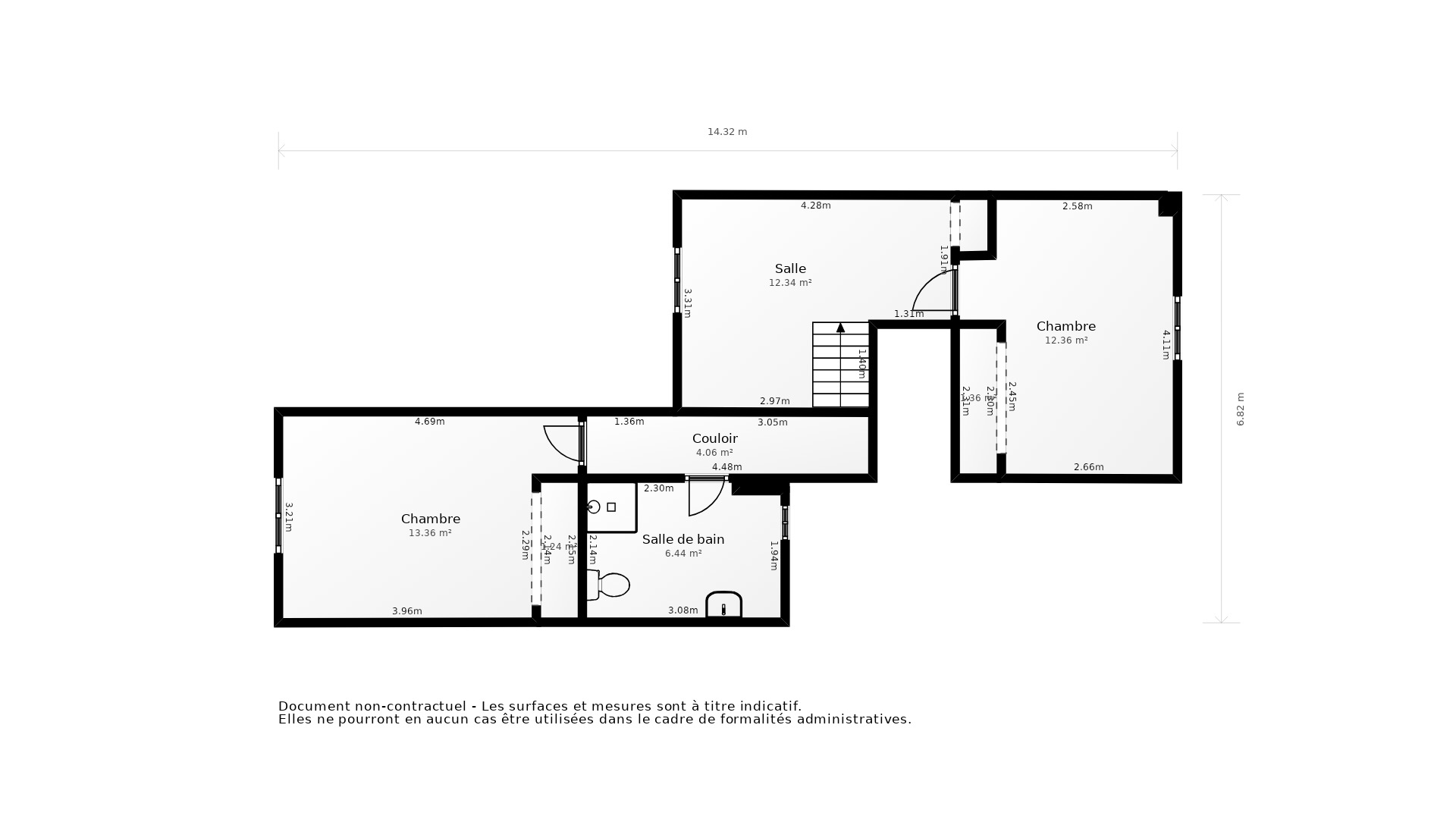
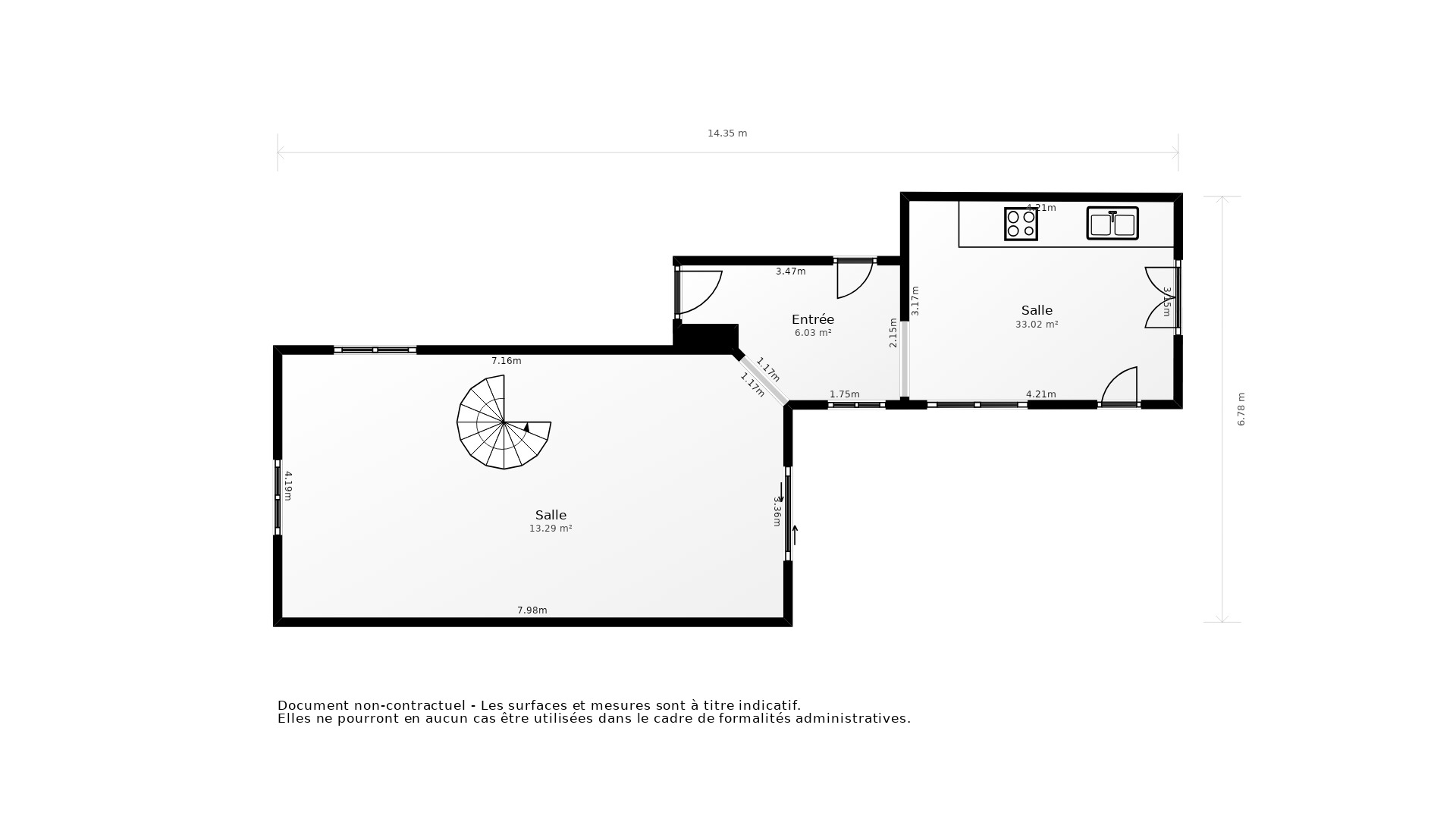
Prenez les mesures

Ce plan 2D représente la structure complète et précise du bien. La surface de chaque pièce est précisée à titre informatif. Ce plan ne se substitue en aucun cas à un diagnostic loi Carrez réalisé par un professionnel certifié.

> Télécharger le plan
Vente Maison TOULOUSE - 4 pièces - 99 m² - (31200)
Vente Maison TOULOUSE - 4 pièces - 99 m² - (31200)
Simulez votre mensualité pour l'achat de ce bien !

*Choissisez une durée d'emprunt

Simulez votre mensualité avec notre partenaire ImmoBanques


Calculez votre temps de trajet depuis ce bien



Les informations locales du quartier Minimes de Toulouse

  • Transports
    • Arrêts de bus
    • Gares
    • Tramways
    • Arrêts de métro, RER
    • Aéroports
    • Parkings
  • Santé
    • Médecins généralistes
    • Médecins spécialistes
    • Pharmacies
    • Hôpitaux
  • Education Petite enfance
    • Crèches
    • Ecoles maternelles
    • Ecoles primaires
    • Collèges
    • Lycées
    • Enseignements supérieur
  • Loisirs & Culture
    • Restaurants, Cafés
    • Monuments, Bibliothèques
    • Sport
    • Espaces verts
    • Théatres, Cinémas, Casinos
  • Commerces Administration
    • Supermarchés
    • Bureaux de poste
    • Boulangeries
    • Boucheries
    • Marchés
    • Mairies, Police, Gendarmerie

Plus d’informations sur la ville de Toulouse

  • Population : 453 320 habitants
  • Propriétaires : 34 %
  • Résidences secondaires : 2 %
  • Revenus moyens : 2 090 euros / mois
  • Taxe d'habitation* : 18 %
  • Taxe foncière* : 20 %
  • Densité de logements : 23 log/ha
  • Type de maison : Locations nombreuses
  • Logements sociaux : 14 %
  • Densité de population : 3 920 hab/km²

*Taux basé sur la valeur locative cadastrale

Agence immobilière ancien neuf Toulouse Minimes
24 AVENUE DES MINIMES
31200 TOULOUSE