Maison à vendre |  Tassin-la-Demi-Lune |  4 pièces | 89,8 m²
Vendu
Réf : 299-1708

Nichée au fond d'une impasse, maison à réorganiser selon vos besoins et vos souhaits... Parcelle de terrain à l'esprit bucolique, piscinable, au calme et aucun vis à vis. Nombreuses possibilités de rénovation, extension et aménagement. Belle opportunité !

Bien sous compromis Bien sous compromis
  • Surface habitable : 89,8 m²
  • Superficie terrain : 725 m²
  • Surface du séjour : 31 m²
  • Exposition séjour : Plein Ouest
  • Pièce(s) : 4
  • Chambre(s) : 3
  • Cuisine : Aménagée
  • Salle(s) d'eau : 1
  • WC : 1
  • Chauffage : Fioul
  • Grenier,Combles : Oui
  • Garage(s) : 1
  • Parking(s) : 3
  • Sous-sol : Oui
A
B
C
D
E
F
G
Dont Emission de gaz
à effet de serre
A
B
C
D
E
F
G
Afficher le DPE

Les informations sur les risques auxquels ce bien est exposé sont disponible sur le site Géorisques :
www.georisques.gouv.fr

Photo originale Photo retouchée
Laissez-vous inspirer par nos décorateurs

Ils ont imaginé pour vous cet aménagement virtuel non contractuel. L'extérieur a été entièrement repensé afin de révéler tout son potentiel.

> Prendre rendez-vous pour visiter
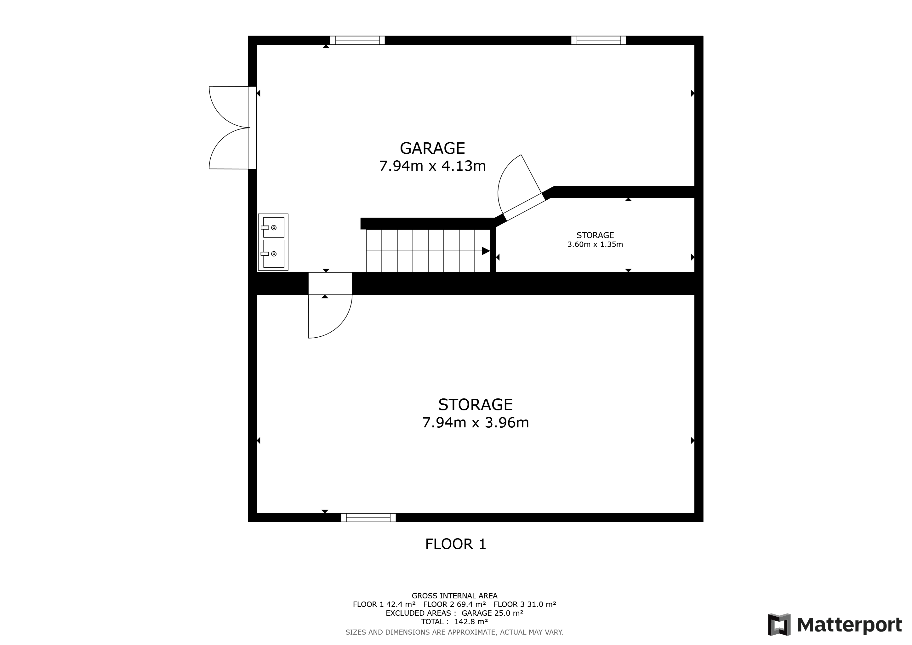
Prenez les mesures

Ce plan 2D représente la structure complète et précise du bien. La surface de chaque pièce est précisée à titre informatif. Ce plan ne se substitue en aucun cas à un diagnostic loi Carrez réalisé par un professionnel certifié.

> Télécharger le plan
Vente Maison TASSIN LA DEMI LUNE - 4 pièces - 89,8 m² - (69160)
Vente Maison TASSIN LA DEMI LUNE - 4 pièces - 89,8 m² - (69160)
Vente Maison TASSIN LA DEMI LUNE - 4 pièces - 89,8 m² - (69160)

Prix honoraires inclus : 549 000 €

Honoraires à la charge de l'acquéreur : 3,76% TTC

Prix hors honoraires : 529 106 €

Simulez votre mensualité pour l'achat de ce bien !

*Choissisez une durée d'emprunt

Simulez votre mensualité avec notre partenaire ImmoBanques


Calculez votre temps de trajet depuis ce bien



Les informations locales de Tassin-la-Demi-Lune

  • Transports
    • Arrêts de bus
    • Gares
    • Tramways
    • Arrêts de métro, RER
    • Aéroports
    • Parkings
  • Santé
    • Médecins généralistes
    • Médecins spécialistes
    • Pharmacies
    • Hôpitaux
  • Education Petite enfance
    • Crèches
    • Ecoles maternelles
    • Ecoles primaires
    • Collèges
    • Lycées
    • Enseignements supérieur
  • Loisirs & Culture
    • Restaurants, Cafés
    • Monuments, Bibliothèques
    • Sport
    • Espaces verts
    • Théatres, Cinémas, Casinos
  • Commerces Administration
    • Supermarchés
    • Bureaux de poste
    • Boulangeries
    • Boucheries
    • Marchés
    • Mairies, Police, Gendarmerie

Plus d’informations sur la ville de Tassin-la-Demi-Lune

  • Population : 21 030 habitants
  • Propriétaires : 57 %
  • Résidences secondaires : 1 %
  • Revenus moyens : 3 080 euros / mois
  • Taxe d'habitation* : 17 %
  • Taxe foncière* : 16 %
  • Densité de logements : 13 log/ha
  • Type de maison : Maisons de ville
  • Logements sociaux : 8 %
  • Densité de population : 2 670 hab/km²

*Taux basé sur la valeur locative cadastrale

Agence immobilière ancien neuf Lyon 5 St Just
74 RUE DE TRION
69005 LYON 05