Maison à vendre |  Saint-Renan |  7 pièces | 160 m²
Vendu
Réf : 208-2037

Human immobilier vous propose en exclusivité cette charmante propriété à Saint-Renan, à proximité de toutes les commodités. Dotée de cinq chambres spacieuses et d'un confort d'habitabilité de plain-pied, elle assure un cadre de vie idéal. Avec tout le confort nécessaire, cette maison combine praticité, luminosité et fonctionnalité.

Bien sous compromis Bien sous compromis
  • Surface habitable : 160 m²
  • Superficie terrain : 816 m²
  • Surface du séjour : 50 m²
  • Pièce(s) : 7
  • Chambre(s) : 5
  • Cuisine : Aménagée
  • Salle(s) de bain : 1
  • Salle(s) d'eau : 2
  • WC : 3
  • Chauffage : Gaz
  • Garage(s) : 1
A
B
C
D
E
F
G
Dont Emission de gaz
à effet de serre
A
B
C
D
E
F
G
Afficher le DPE

Les informations sur les risques auxquels ce bien est exposé sont disponible sur le site Géorisques :
www.georisques.gouv.fr

Photo originale Photo retouchée
Laissez-vous inspirer par nos décorateurs

Avec la complicité de notre partenaire, nous vous proposons cet aménagement virtuel non contractuel. La pièce a été entièrement repensée et laisse place à une décoration actuelle et tendance.

> Prendre rendez-vous pour visiter
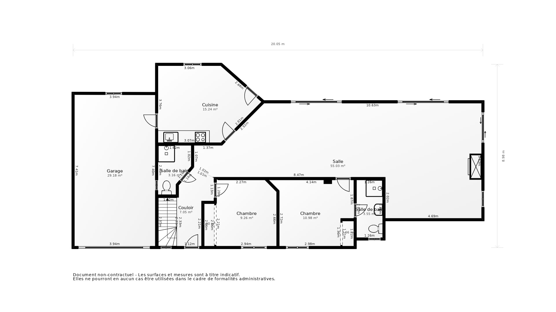
Prenez les mesures

Ce plan 2D représente la structure complète et précise du bien. La surface de chaque pièce est précisée à titre informatif. Ce plan ne se substitue en aucun cas à un diagnostic loi Carrez réalisé par un professionnel certifié.

> Télécharger le plan
Vente Maison ST RENAN - 7 pièces - 160 m² - (29290)
Vente Maison ST RENAN - 7 pièces - 160 m² - (29290)

Prix honoraires inclus : 457 600 €

Honoraires à la charge de l'acquéreur : 4,00% TTC

Prix hors honoraires : 440 000 €

Simulez votre mensualité pour l'achat de ce bien !

*Choissisez une durée d'emprunt

Simulez votre mensualité avec notre partenaire ImmoBanques


Calculez votre temps de trajet depuis ce bien



Les informations locales de Saint-Renan

  • Transports
    • Arrêts de bus
    • Gares
    • Tramways
    • Arrêts de métro, RER
    • Aéroports
    • Parkings
  • Santé
    • Médecins généralistes
    • Médecins spécialistes
    • Pharmacies
    • Hôpitaux
  • Education Petite enfance
    • Crèches
    • Ecoles maternelles
    • Ecoles primaires
    • Collèges
    • Lycées
    • Enseignements supérieur
  • Loisirs & Culture
    • Restaurants, Cafés
    • Monuments, Bibliothèques
    • Sport
    • Espaces verts
    • Théatres, Cinémas, Casinos
  • Commerces Administration
    • Supermarchés
    • Bureaux de poste
    • Boulangeries
    • Boucheries
    • Marchés
    • Mairies, Police, Gendarmerie

Plus d’informations sur la ville de Saint-Renan

  • Population : 7 710 habitants
  • Propriétaires : 73 %
  • Résidences secondaires : 1 %
  • Revenus moyens : 2 700 euros / mois
  • Taxe d'habitation* : 21 %
  • Taxe foncière* : 28 %
  • Densité de logements : 2 log/ha
  • Type de maison : Maisons récentes
  • Logements sociaux : 8 %
  • Densité de population : 590 hab/km²

*Taux basé sur la valeur locative cadastrale

Agence immobilière ancien neuf St Renan
17 RUE SAINT YVES
29290 ST RENAN