Maison à vendre |  Saint-Renan |  3 pièces | 71 m²
Vendu
Réf : 208-2025

-SOUS OFFRE - Human immobilier vous propose en exclusivité cette charmante maison à deux pas du centre historique de Saint-Renan. Elle se compose de deux chambres lumineuses, d'une pièce de vie agréable avec une cuisine ouverte. Un sous-sol complet vient compléter le bien, offrant de belles possibilités d'aménagement.

Bien sous compromis Bien sous compromis
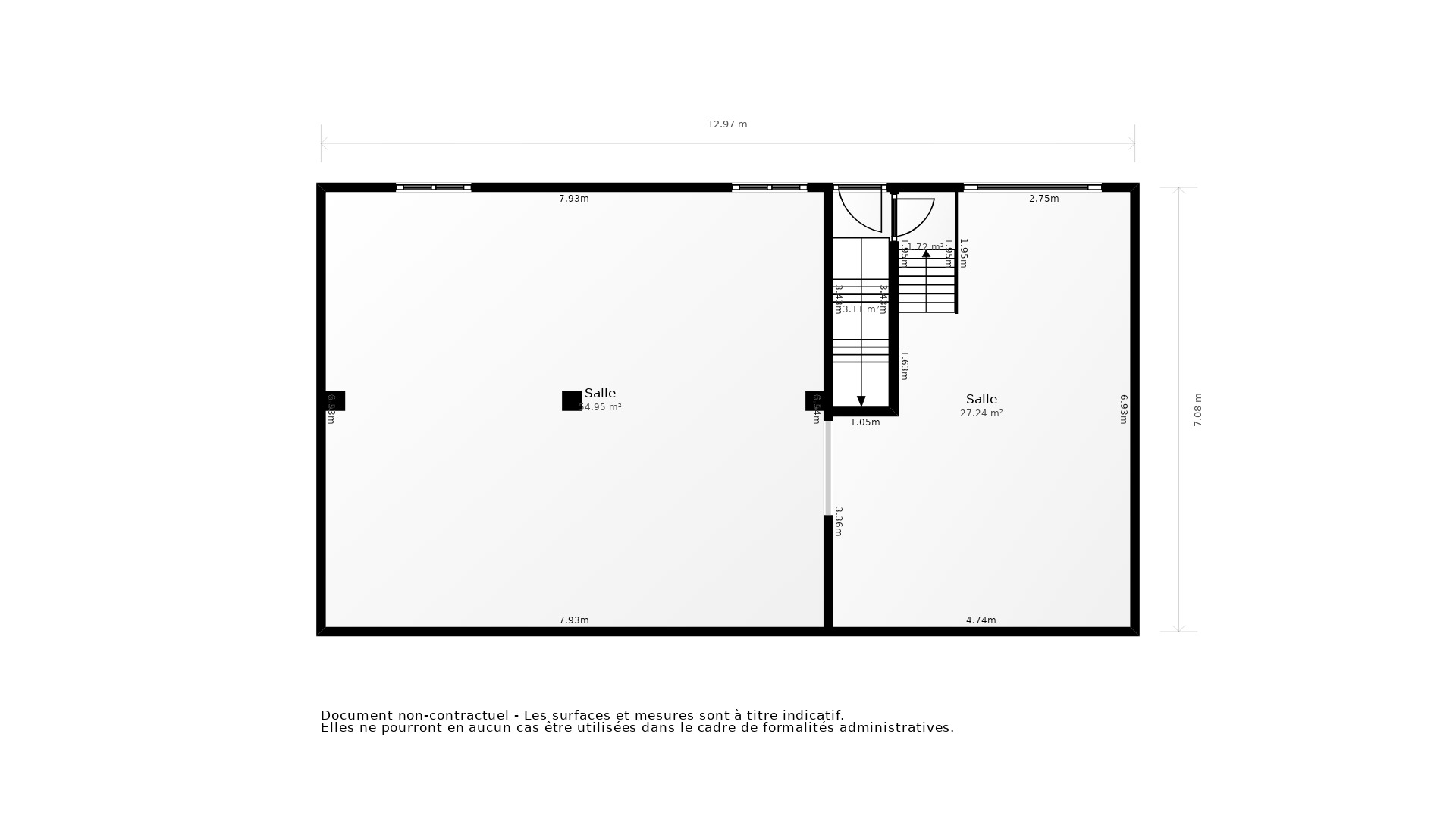
  • Surface habitable : 71 m²
  • Superficie terrain : 607 m²
  • Surface du séjour : 39 m²
  • Pièce(s) : 3
  • Chambre(s) : 2
  • Cuisine : Equipée
  • Salle(s) d'eau : 1
  • WC : 1
  • Chauffage : Fioul
A
B
C
D
E
F
G
Dont Emission de gaz
à effet de serre
A
B
C
D
E
F
G
Afficher le DPE

Les informations sur les risques auxquels ce bien est exposé sont disponible sur le site Géorisques :
www.georisques.gouv.fr

Photo originale Photo retouchée
Laissez-vous inspirer par nos décorateurs

Avec la complicité de notre partenaire, nous vous proposons cet aménagement virtuel non contractuel. La pièce a été entièrement repensée et laisse place à une décoration actuelle et tendance.

> Prendre rendez-vous pour visiter
Prenez les mesures

Ce plan 2D représente la structure complète et précise du bien. La surface de chaque pièce est précisée à titre informatif. Ce plan ne se substitue en aucun cas à un diagnostic loi Carrez réalisé par un professionnel certifié.

> Télécharger le plan
Vente Maison ST RENAN - 3 pièces - 71 m² - (29290)
Vente Maison ST RENAN - 3 pièces - 71 m² - (29290)
Simulez votre mensualité pour l'achat de ce bien !

*Choissisez une durée d'emprunt

Simulez votre mensualité avec notre partenaire ImmoBanques


Calculez votre temps de trajet depuis ce bien



Les informations locales de Saint-Renan

  • Transports
    • Arrêts de bus
    • Gares
    • Tramways
    • Arrêts de métro, RER
    • Aéroports
    • Parkings
  • Santé
    • Médecins généralistes
    • Médecins spécialistes
    • Pharmacies
    • Hôpitaux
  • Education Petite enfance
    • Crèches
    • Ecoles maternelles
    • Ecoles primaires
    • Collèges
    • Lycées
    • Enseignements supérieur
  • Loisirs & Culture
    • Restaurants, Cafés
    • Monuments, Bibliothèques
    • Sport
    • Espaces verts
    • Théatres, Cinémas, Casinos
  • Commerces Administration
    • Supermarchés
    • Bureaux de poste
    • Boulangeries
    • Boucheries
    • Marchés
    • Mairies, Police, Gendarmerie

Plus d’informations sur la ville de Saint-Renan

  • Population : 7 710 habitants
  • Propriétaires : 73 %
  • Résidences secondaires : 1 %
  • Revenus moyens : 2 700 euros / mois
  • Taxe d'habitation* : 21 %
  • Taxe foncière* : 28 %
  • Densité de logements : 2 log/ha
  • Type de maison : Maisons récentes
  • Logements sociaux : 8 %
  • Densité de population : 590 hab/km²

*Taux basé sur la valeur locative cadastrale

Agence immobilière ancien neuf St Renan
17 RUE SAINT YVES
29290 ST RENAN