Maison à vendre |  Saint-Pierre-de-Côle |  5 pièces | 161 m²
189 792 €
Réf : 70-5057
Visitez en avant-première

Dans un hameau calme, proche du centre et à seulement 12 min de BRANTOME. Pavillon de 2009 composé d'un grand séjour avec cheminée, une cuisine équipée, un cellier, une lingerie, une salle d'eau avec douche et baignoire, 3 chambres et un bureau. Véranda et garage attenant. Jardin avec jolie vue sur la campagne de 2200m² environ.

  • Surface habitable : 161 m²
  • Superficie terrain : 2 443 m²
  • Surface du séjour : 38 m²
  • Pièce(s) : 5
  • Chambre(s) : 4
  • Cuisine : Equipée
  • Salle(s) de bain : 1
  • WC : 1
  • Chauffage : Électrique
  • Cheminée : Oui
  • Cellier : Oui
  • Garage(s) : 1
  • Parking(s) : 6
A
B
C
D
E
F
G
Dont Emission de gaz
à effet de serre
A
B
C
D
E
F
G
Afficher le DPE

Les informations sur les risques auxquels ce bien est exposé sont disponible sur le site Géorisques :
www.georisques.gouv.fr

Photo originale Photo retouchée
Laissez-vous inspirer par nos décorateurs

Avec la complicité de notre partenaire, nous vous proposons cet aménagement virtuel non contractuel. La pièce a été entièrement repensée et laisse place à une décoration actuelle et tendance.

> Prendre rendez-vous pour visiter
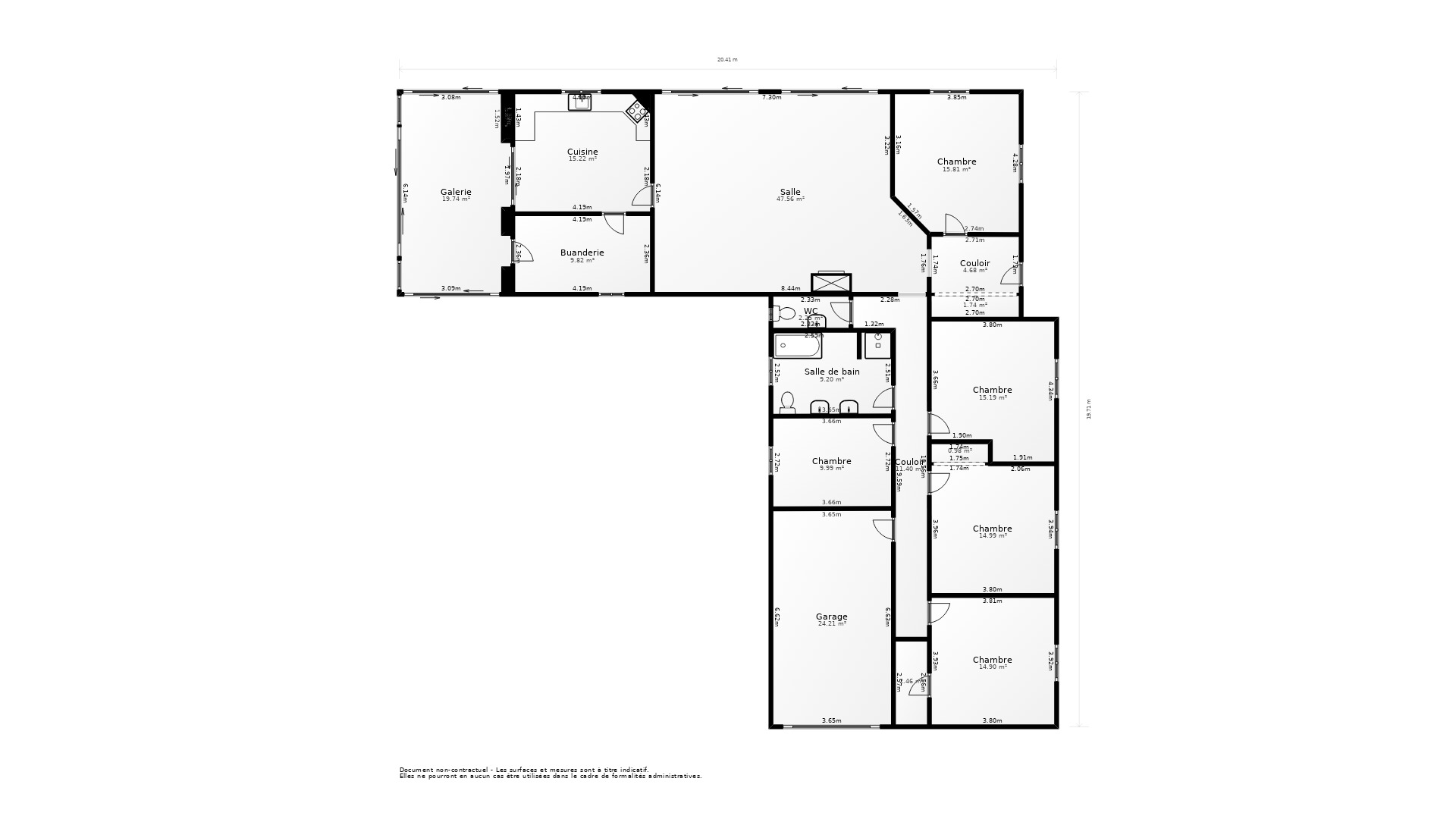
Prenez les mesures

Ce plan 2D représente la structure complète et précise du bien. La surface de chaque pièce est précisée à titre informatif. Ce plan ne se substitue en aucun cas à un diagnostic loi Carrez réalisé par un professionnel certifié.

> Télécharger le plan
Vente Maison ST PIERRE DE COLE - 5 pièces - 161 m² - (24800)

Prix honoraires inclus : 189 792 €

Honoraires à la charge de l'acquéreur : 5,44% TTC

Prix hors honoraires : 180 000 €

Simulez votre mensualité pour l'achat de ce bien !

*Choissisez une durée d'emprunt

Simulez votre mensualité avec notre partenaire ImmoBanques


Calculez votre temps de trajet depuis ce bien



Les informations locales de Saint-Pierre-de-Côle

  • Transports
    • Arrêts de bus
    • Gares
    • Tramways
    • Arrêts de métro, RER
    • Aéroports
    • Parkings
  • Santé
    • Médecins généralistes
    • Médecins spécialistes
    • Pharmacies
    • Hôpitaux
  • Education Petite enfance
    • Crèches
    • Ecoles maternelles
    • Ecoles primaires
    • Collèges
    • Lycées
    • Enseignements supérieur
  • Loisirs & Culture
    • Restaurants, Cafés
    • Monuments, Bibliothèques
    • Sport
    • Espaces verts
    • Théatres, Cinémas, Casinos
  • Commerces Administration
    • Supermarchés
    • Bureaux de poste
    • Boulangeries
    • Boucheries
    • Marchés
    • Mairies, Police, Gendarmerie

Plus d’informations sur la ville de Saint-Pierre-de-Côle

  • Population : 480 habitants
  • Propriétaires : 65 %
  • Résidences secondaires : 20 %
  • Revenus moyens : 1 700 euros / mois
  • Taxe d'habitation* : 10 %
  • Taxe foncière* : 22 %
  • Densité de logements : <1 log/ha
  • Type de maison : Maisons anciennes
  • Logements sociaux : 0 %
  • Densité de population : 20 hab/km²

*Taux basé sur la valeur locative cadastrale

Agence immobilière ancien neuf Brantôme
28 RUE GAMBETTA
24310 BRANTOME