Maison à vendre |  Saint-Perdon |  4 pièces | 124 m²
Vendu
Réf : 483-736

Située dans un environnement calme et pratique, à proximité des axes principaux et proches de toutes commodités à moins de 10 minutes de MONT DE MARSAN, découvrez cette jolie maison landaise composée de 3 chambres et 1 bureau, une pièce de vie lumineuse. Un bien rare dans un secteur recherché, prêt à accueillir vos projets!

Bien sous compromis Bien sous compromis
  • Surface habitable : 124 m²
  • Superficie terrain : 728 m²
  • Surface du séjour : 30 m²
  • Exposition séjour : Sud Est
  • Pièce(s) : 4
  • Chambre(s) : 3
  • Cuisine : Aménagée
  • Salle(s) d'eau : 2
  • WC : 2
  • Chauffage : Gaz
  • Cheminée : Oui
  • Garage(s) : 1
A
B
C
D
E
F
G
Dont Emission de gaz
à effet de serre
A
B
C
D
E
F
G
Afficher le DPE

Les informations sur les risques auxquels ce bien est exposé sont disponible sur le site Géorisques :
www.georisques.gouv.fr

Photo originale Photo retouchée
Laissez-vous inspirer par nos décorateurs

Avec la complicité de notre partenaire, nous vous proposons cet aménagement virtuel non contractuel. La pièce a été entièrement repensée et laisse place à une décoration actuelle et tendance.

> Prendre rendez-vous pour visiter
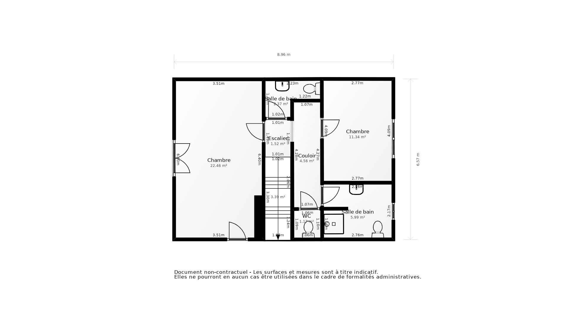
Prenez les mesures

Ce plan 2D représente la structure complète et précise du bien. La surface de chaque pièce est précisée à titre informatif. Ce plan ne se substitue en aucun cas à un diagnostic loi Carrez réalisé par un professionnel certifié.

> Télécharger le plan
Vente Maison ST PERDON - 4 pièces - 124 m² - (40090)
Vente Maison ST PERDON - 4 pièces - 124 m² - (40090)

Prix honoraires inclus : 182 000 €

Honoraires à la charge de l'acquéreur : 5,68% TTC

Prix hors honoraires : 172 219 €

Simulez votre mensualité pour l'achat de ce bien !

*Choissisez une durée d'emprunt

Simulez votre mensualité avec notre partenaire ImmoBanques


Calculez votre temps de trajet depuis ce bien



Les informations locales de Saint-Perdon

  • Transports
    • Arrêts de bus
    • Gares
    • Tramways
    • Arrêts de métro, RER
    • Aéroports
    • Parkings
  • Santé
    • Médecins généralistes
    • Médecins spécialistes
    • Pharmacies
    • Hôpitaux
  • Education Petite enfance
    • Crèches
    • Ecoles maternelles
    • Ecoles primaires
    • Collèges
    • Lycées
    • Enseignements supérieur
  • Loisirs & Culture
    • Restaurants, Cafés
    • Monuments, Bibliothèques
    • Sport
    • Espaces verts
    • Théatres, Cinémas, Casinos
  • Commerces Administration
    • Supermarchés
    • Bureaux de poste
    • Boulangeries
    • Boucheries
    • Marchés
    • Mairies, Police, Gendarmerie

Plus d’informations sur la ville de Saint-Perdon

  • Population : 1 610 habitants
  • Propriétaires : 64 %
  • Résidences secondaires : 2 %
  • Revenus moyens : 2 560 euros / mois
  • Taxe d'habitation* : 8 %
  • Taxe foncière* : 15 %
  • Densité de logements : <1 log/ha
  • Type de maison : Maisons récentes
  • Logements sociaux : 1 %
  • Densité de population : 50 hab/km²

*Taux basé sur la valeur locative cadastrale

Agence immobilière ancien neuf St Pierre du mont
65 AVENUE CAMILLE BRETTES
40280 SAINT-PIERRE-DU-MONT