Maison à vendre |  Saint-Ouen-l'Aumône |  3 pièces | 66 m²
Vendu
Réf : 469-587

Quartier Epluches - Pont Petit


Exclusivité HUMAN - A 10 mn du centre ville et proche des axes routiers, maison mitoyenne offrant entrée sur cuisine équipée ou sur séjour, wc, salle d'eau, à l'étage chambre avec dressing, cave, garage le tout sur une parcelle de 176m² de jardin fleuri. Idéal pour bien débuter......

Bien sous compromis Bien sous compromis
  • Surface habitable : 66 m²
  • Superficie terrain : 176 m²
  • Surface du séjour : 18 m²
  • Exposition séjour : Nord Est
  • Pièce(s) : 3
  • Chambre(s) : 2
  • Cuisine : Aménagée
  • Salle(s) d'eau : 1
  • WC : 1
  • Chauffage : Fioul
  • Cave : Oui
  • Garage(s) : 1
  • Mitoyenneté : Oui
A
B
C
D
E
F
G
Dont Emission de gaz
à effet de serre
A
B
C
D
E
F
G
Afficher le DPE

Les informations sur les risques auxquels ce bien est exposé sont disponible sur le site Géorisques :
www.georisques.gouv.fr

Photo originale Photo retouchée
Laissez-vous inspirer par nos décorateurs

Avec la complicité de notre partenaire, nous vous proposons cet aménagement virtuel non contractuel. La pièce a été entièrement repensée et laisse place à une décoration actuelle et tendance.

> Prendre rendez-vous pour visiter
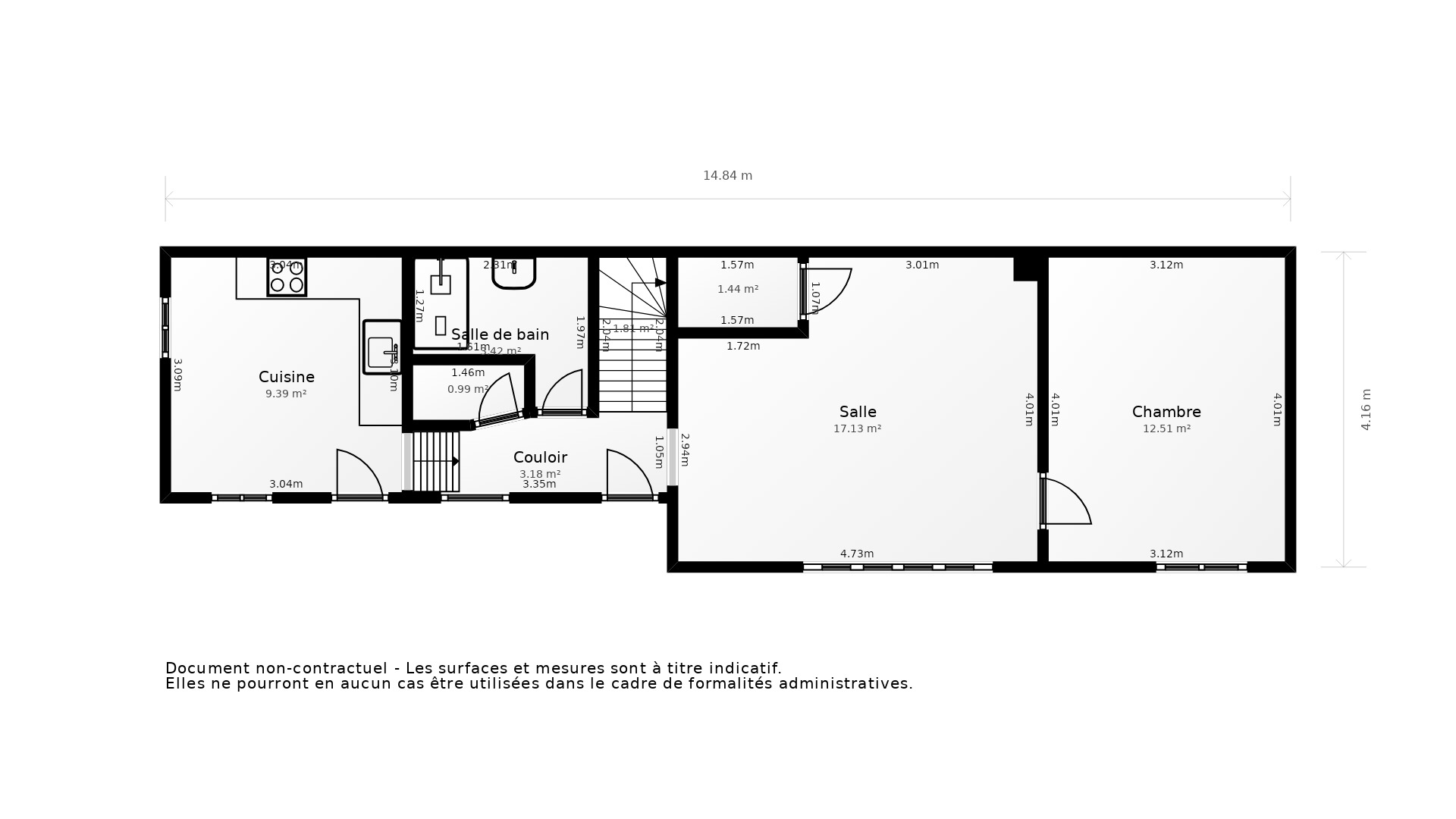
Prenez les mesures

Ce plan 2D représente la structure complète et précise du bien. La surface de chaque pièce est précisée à titre informatif. Ce plan ne se substitue en aucun cas à un diagnostic loi Carrez réalisé par un professionnel certifié.

> Télécharger le plan
Vente Maison ST OUEN L AUMONE - 3 pièces - 66 m² - (95310)
Vente Maison ST OUEN L AUMONE - 3 pièces - 66 m² - (95310)

Prix honoraires inclus : 247 220 €

Honoraires à la charge de l'acquéreur : 5,20% TTC

Prix hors honoraires : 235 000 €

Simulez votre mensualité pour l'achat de ce bien !

*Choissisez une durée d'emprunt

Simulez votre mensualité avec notre partenaire ImmoBanques


Calculez votre temps de trajet depuis ce bien



Les informations locales du quartier Epluches - Pont Petit de Saint-Ouen-l'Aumône

  • Transports
    • Arrêts de bus
    • Gares
    • Tramways
    • Arrêts de métro, RER
    • Aéroports
    • Parkings
  • Santé
    • Médecins généralistes
    • Médecins spécialistes
    • Pharmacies
    • Hôpitaux
  • Education Petite enfance
    • Crèches
    • Ecoles maternelles
    • Ecoles primaires
    • Collèges
    • Lycées
    • Enseignements supérieur
  • Loisirs & Culture
    • Restaurants, Cafés
    • Monuments, Bibliothèques
    • Sport
    • Espaces verts
    • Théatres, Cinémas, Casinos
  • Commerces Administration
    • Supermarchés
    • Bureaux de poste
    • Boulangeries
    • Boucheries
    • Marchés
    • Mairies, Police, Gendarmerie

Plus d’informations sur la ville de Saint-Ouen-l'Aumône

  • Population : 23 470 habitants
  • Propriétaires : 52 %
  • Résidences secondaires : 0 %
  • Revenus moyens : 2 630 euros / mois
  • Taxe d'habitation* : 9 %
  • Taxe foncière* : 24 %
  • Densité de logements : 6 log/ha
  • Type de maison : Appartements et maisons de ville
  • Logements sociaux : 28 %
  • Densité de population : 1 650 hab/km²

*Taux basé sur la valeur locative cadastrale

Agence immobilière ancien neuf Pontoise
6 RUE DE L'HÔTEL DIEU
95300 PONTOISE