Maison à vendre |  Saint-Laurent-des-Hommes |  6 pièces | 143 m²
269 500 €
Réf : 20-6022
Visitez en avant-première

Idéalement située cette maison vous séduira par ses volumes, sa luminosité et la qualité de ses prestations. Une pièce de vie baignée de lumière, une cuisine équipée fonctionnelle. Véritable cœur de la maison, elle s’ouvre sur l’extérieur par sa véranda. 5 chambres, 2 salles d’eau. Elevée sur un jardin de 3000m², terrasse,garage.

  • Surface habitable : 143 m²
  • Superficie terrain : 3 057 m²
  • Surface du séjour : 34 m²
  • Exposition séjour : Plein Ouest
  • Pièce(s) : 6
  • Chambre(s) : 4
  • Cuisine : Equipée
  • Salle(s) d'eau : 2
  • WC : 2
  • Chauffage : Électrique
  • Cheminée : Oui
  • Terrasse : Oui
  • Grenier,Combles : Oui
  • Garage(s) : 2
  • Parking(s) : 1
  • Sous-sol : Oui
A
B
C
D
E
F
G
Dont Emission de gaz
à effet de serre
A
B
C
D
E
F
G
Afficher le DPE

Les informations sur les risques auxquels ce bien est exposé sont disponible sur le site Géorisques :
www.georisques.gouv.fr

Prenez les mesures

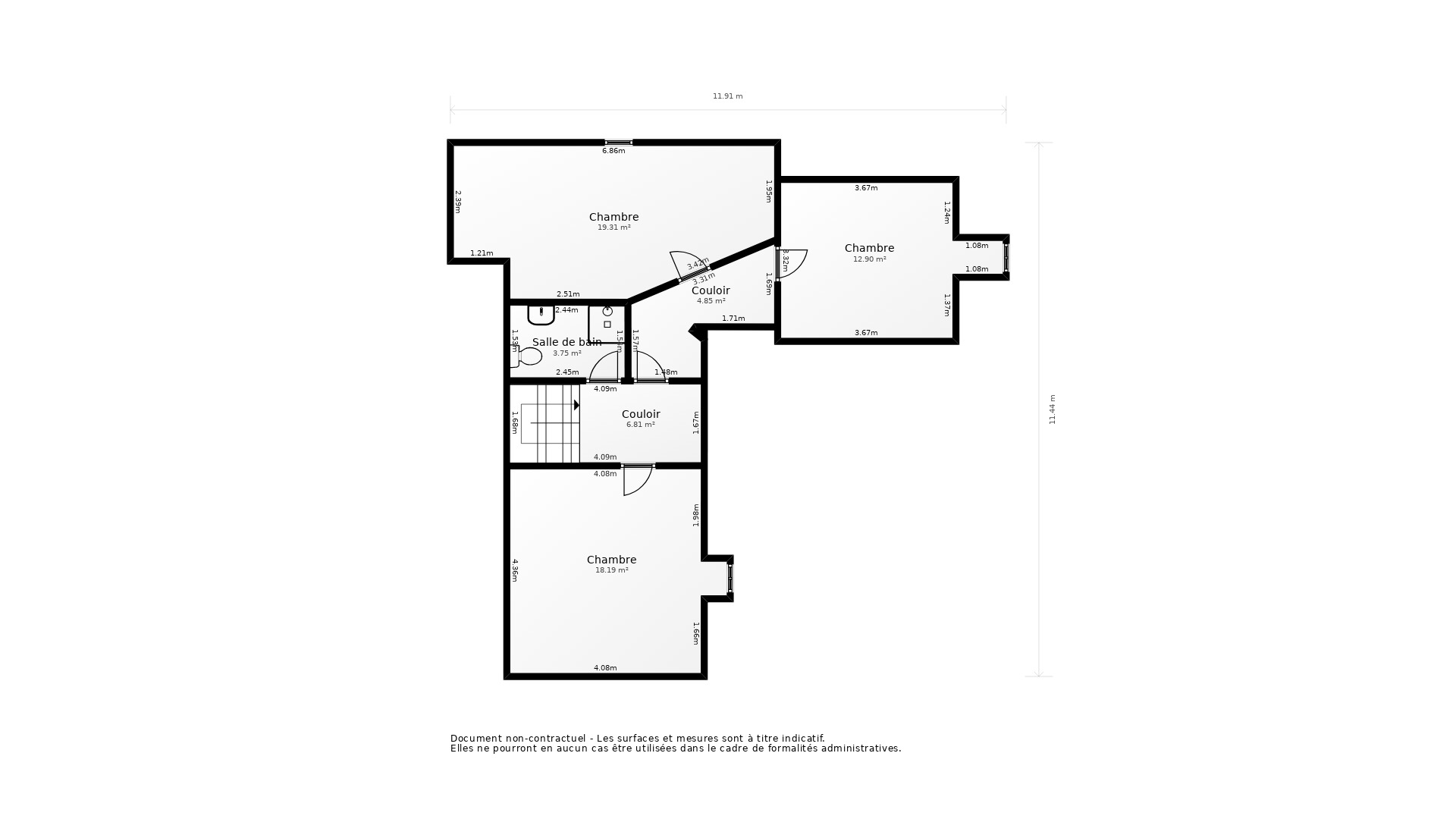
Ce plan 2D représente la structure complète et précise du bien. La surface de chaque pièce est précisée à titre informatif. Ce plan ne se substitue en aucun cas à un diagnostic loi Carrez réalisé par un professionnel certifié.

> Télécharger le plan
Vente Maison ST LAURENT DES HOMMES - 6 pièces - 143 m² - (24400)
Vente Maison ST LAURENT DES HOMMES - 6 pièces - 143 m² - (24400)
Vente Maison ST LAURENT DES HOMMES - 6 pièces - 143 m² - (24400)
Vente Maison ST LAURENT DES HOMMES - 6 pièces - 143 m² - (24400)
Vente Maison ST LAURENT DES HOMMES - 6 pièces - 143 m² - (24400)
Vente Maison ST LAURENT DES HOMMES - 6 pièces - 143 m² - (24400)
Vente Maison ST LAURENT DES HOMMES - 6 pièces - 143 m² - (24400)
Vente Maison ST LAURENT DES HOMMES - 6 pièces - 143 m² - (24400)
Vente Maison ST LAURENT DES HOMMES - 6 pièces - 143 m² - (24400)

Prix honoraires inclus : 269 500 €

Honoraires à la charge de l'acquéreur : 4,96% TTC

Prix hors honoraires : 256 765 €

Simulez votre mensualité pour l'achat de ce bien !

*Choissisez une durée d'emprunt

Simulez votre mensualité avec notre partenaire ImmoBanques


Calculez votre temps de trajet depuis ce bien



Les informations locales de Saint-Laurent-des-Hommes

  • Transports
    • Arrêts de bus
    • Gares
    • Tramways
    • Arrêts de métro, RER
    • Aéroports
    • Parkings
  • Santé
    • Médecins généralistes
    • Médecins spécialistes
    • Pharmacies
    • Hôpitaux
  • Education Petite enfance
    • Crèches
    • Ecoles maternelles
    • Ecoles primaires
    • Collèges
    • Lycées
    • Enseignements supérieur
  • Loisirs & Culture
    • Restaurants, Cafés
    • Monuments, Bibliothèques
    • Sport
    • Espaces verts
    • Théatres, Cinémas, Casinos
  • Commerces Administration
    • Supermarchés
    • Bureaux de poste
    • Boulangeries
    • Boucheries
    • Marchés
    • Mairies, Police, Gendarmerie

Plus d’informations sur la ville de Saint-Laurent-des-Hommes

  • Population : 1 050 habitants
  • Propriétaires : 80 %
  • Résidences secondaires : 8 %
  • Revenus moyens : 2 300 euros / mois
  • Taxe d'habitation* : 15 %
  • Taxe foncière* : 16 %
  • Densité de logements : <1 log/ha
  • Type de maison : Maisons récentes
  • Logements sociaux : 0 %
  • Densité de population : 30 hab/km²

*Taux basé sur la valeur locative cadastrale

Agence immobilière ancien neuf Montpon Ménestérol
52 RUE THIERS
24700 MONTPON MENESTEROL