Maison à vendre |  Saint-Jean-de-Védas |  5 pièces | 197 m²
591 432 €
Réf : 112-6216
Visitez en avant-première

Charmante maison de ville entièrement rénovée par un architecte, offrant des prestations de qualité et une décoration soignée. Confort, intimité, volumes généreux et luminosité confèrent à l'ensemble une atmosphère chaleureuse et accueillante. Un garage ainsi qu'un agréable jardin intimiste viennent parfaire ce bien.

  • Surface habitable : 197 m²
  • Superficie terrain : 205 m²
  • Surface du séjour : 36 m²
  • Pièce(s) : 5
  • Chambre(s) : 3
  • Cuisine : Equipée
  • Salle(s) d'eau : 2
  • WC : 3
  • Chauffage : Gaz
  • Cheminée : Oui
  • Terrasse : Oui
  • Garage(s) : 2
  • Mitoyenneté : Oui
A
B
C
D
E
F
G
Dont Emission de gaz
à effet de serre
A
B
C
D
E
F
G
Afficher le DPE

Les informations sur les risques auxquels ce bien est exposé sont disponible sur le site Géorisques :
www.georisques.gouv.fr

Photo originale Photo retouchée
Laissez-vous inspirer par nos décorateurs

Ils ont imaginé pour vous cet aménagement virtuel non contractuel. L'extérieur a été entièrement repensé afin de révéler tout son potentiel.

> Prendre rendez-vous pour visiter
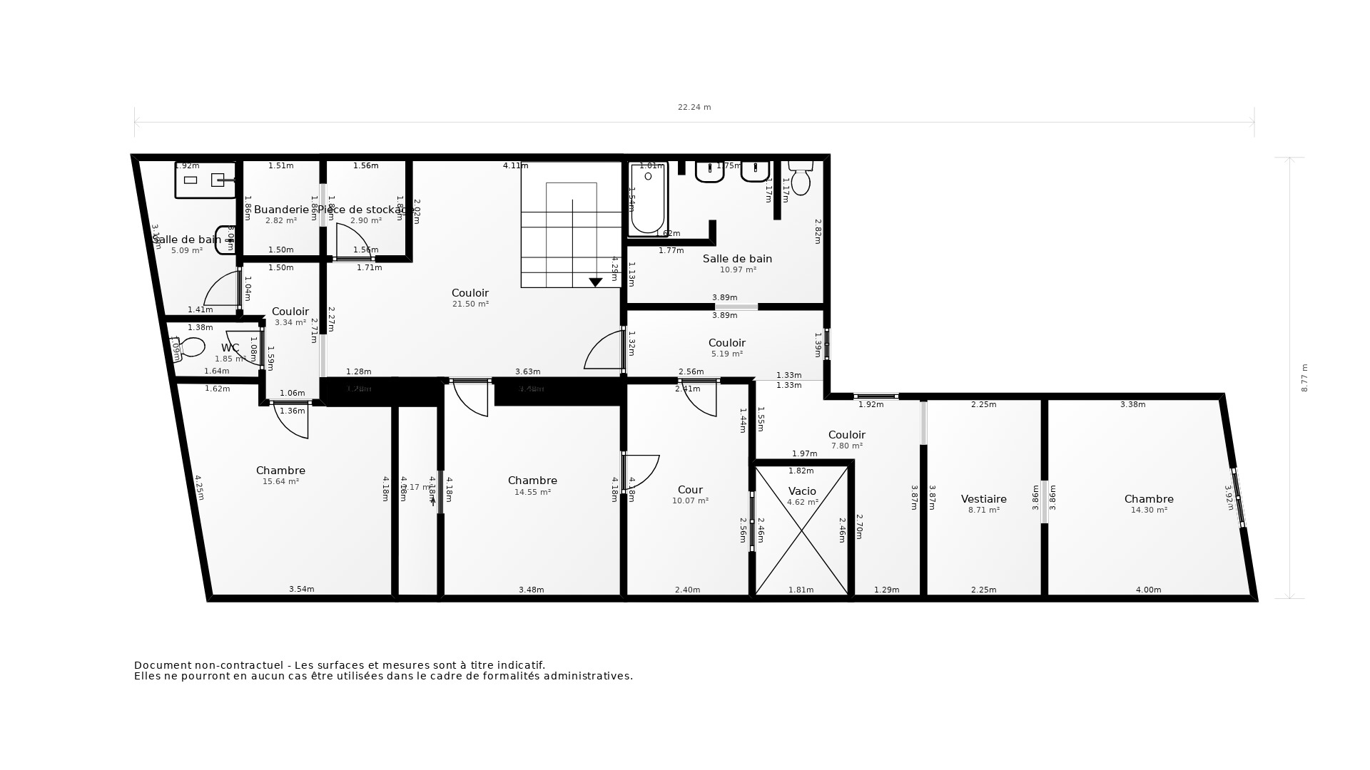
Prenez les mesures

Ce plan 2D représente la structure complète et précise du bien. La surface de chaque pièce est précisée à titre informatif. Ce plan ne se substitue en aucun cas à un diagnostic loi Carrez réalisé par un professionnel certifié.

> Télécharger le plan
Vente Maison ST JEAN DE VEDAS - 5 pièces - 197 m² - (34430)
Vente Maison ST JEAN DE VEDAS - 5 pièces - 197 m² - (34430)
Vente Maison ST JEAN DE VEDAS - 5 pièces - 197 m² - (34430)
Vente Maison ST JEAN DE VEDAS - 5 pièces - 197 m² - (34430)
Vente Maison ST JEAN DE VEDAS - 5 pièces - 197 m² - (34430)
Vente Maison ST JEAN DE VEDAS - 5 pièces - 197 m² - (34430)

Prix honoraires inclus : 591 432 €

Honoraires à la charge de l'acquéreur : 3,76% TTC

Prix hors honoraires : 570 000 €

Simulez votre mensualité pour l'achat de ce bien !

*Choissisez une durée d'emprunt

Simulez votre mensualité avec notre partenaire ImmoBanques


Calculez votre temps de trajet depuis ce bien



Les informations locales de Saint-Jean-de-Védas

  • Transports
    • Arrêts de bus
    • Gares
    • Tramways
    • Arrêts de métro, RER
    • Aéroports
    • Parkings
  • Santé
    • Médecins généralistes
    • Médecins spécialistes
    • Pharmacies
    • Hôpitaux
  • Education Petite enfance
    • Crèches
    • Ecoles maternelles
    • Ecoles primaires
    • Collèges
    • Lycées
    • Enseignements supérieur
  • Loisirs & Culture
    • Restaurants, Cafés
    • Monuments, Bibliothèques
    • Sport
    • Espaces verts
    • Théatres, Cinémas, Casinos
  • Commerces Administration
    • Supermarchés
    • Bureaux de poste
    • Boulangeries
    • Boucheries
    • Marchés
    • Mairies, Police, Gendarmerie

Plus d’informations sur la ville de Saint-Jean-de-Védas

  • Population : 8 550 habitants
  • Propriétaires : 75 %
  • Résidences secondaires : 2 %
  • Revenus moyens : 3 340 euros / mois
  • Taxe d'habitation* : 14 %
  • Taxe foncière* : 25 %
  • Densité de logements : 3 log/ha
  • Type de maison : Maisons récentes
  • Logements sociaux : 4 %
  • Densité de population : 630 hab/km²

*Taux basé sur la valeur locative cadastrale

Agence immobilière ancien neuf St Jean de Vedas
96 ESPLANADE DE L ORTET
34430 ST JEAN DE VEDAS