Maison à vendre |  Saint-Jean-de-Védas |  5 pièces | 148 m²
1 095 616 €
Réf : 112-6189
Visitez en avant-première

St-Jean-de-Védas à cinq minutes de l'autoroute A9. Découvrez cette spacieuse villa d'architecte, composé d'une pièce de vie lumineuse intégrant une cuisine ouverte. Vous trouverez à l'étage quatre chambres, ainsi que deux salles d'eau. Un garage de 30 m² ainsi qu'un terrain divisible d'une superficie totale de 1 832 m².

  • Surface habitable : 148 m²
  • Superficie terrain : 1 832 m²
  • Surface du séjour : 50 m²
  • Exposition séjour : Plein Sud
  • Pièce(s) : 5
  • Chambre(s) : 4
  • Cuisine : Equipée
  • Salle(s) d'eau : 2
  • WC : 2
  • Chauffage : Gaz
  • Cheminée : Oui
  • Terrasse : Oui
  • Garage(s) : 2
  • Parking(s) : 6
A
B
C
D
E
F
G
Dont Emission de gaz
à effet de serre
A
B
C
D
E
F
G
Afficher le DPE

Les informations sur les risques auxquels ce bien est exposé sont disponible sur le site Géorisques :
www.georisques.gouv.fr

Photo originale Photo retouchée
Laissez-vous inspirer par nos décorateurs

Ils ont imaginé pour vous cet aménagement virtuel non contractuel. L'extérieur a été entièrement repensé afin de révéler tout son potentiel.

> Prendre rendez-vous pour visiter
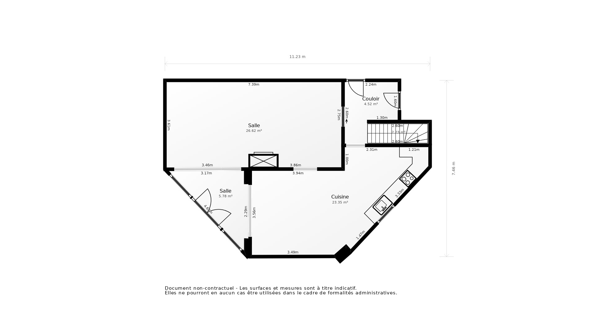
Prenez les mesures

Ce plan 2D représente la structure complète et précise du bien. La surface de chaque pièce est précisée à titre informatif. Ce plan ne se substitue en aucun cas à un diagnostic loi Carrez réalisé par un professionnel certifié.

> Télécharger le plan
Vente Maison ST JEAN DE VEDAS - 5 pièces - 148 m² - (34430)
Vente Maison ST JEAN DE VEDAS - 5 pièces - 148 m² - (34430)

Prix honoraires inclus : 1 095 616 €

Honoraires à la charge de l'acquéreur : 3,36% TTC

Prix hors honoraires : 1 060 000 €

Simulez votre mensualité pour l'achat de ce bien !

*Choissisez une durée d'emprunt

Simulez votre mensualité avec notre partenaire ImmoBanques


Calculez votre temps de trajet depuis ce bien



Les informations locales de Saint-Jean-de-Védas

  • Transports
    • Arrêts de bus
    • Gares
    • Tramways
    • Arrêts de métro, RER
    • Aéroports
    • Parkings
  • Santé
    • Médecins généralistes
    • Médecins spécialistes
    • Pharmacies
    • Hôpitaux
  • Education Petite enfance
    • Crèches
    • Ecoles maternelles
    • Ecoles primaires
    • Collèges
    • Lycées
    • Enseignements supérieur
  • Loisirs & Culture
    • Restaurants, Cafés
    • Monuments, Bibliothèques
    • Sport
    • Espaces verts
    • Théatres, Cinémas, Casinos
  • Commerces Administration
    • Supermarchés
    • Bureaux de poste
    • Boulangeries
    • Boucheries
    • Marchés
    • Mairies, Police, Gendarmerie

Plus d’informations sur la ville de Saint-Jean-de-Védas

  • Population : 8 550 habitants
  • Propriétaires : 75 %
  • Résidences secondaires : 2 %
  • Revenus moyens : 3 340 euros / mois
  • Taxe d'habitation* : 14 %
  • Taxe foncière* : 25 %
  • Densité de logements : 3 log/ha
  • Type de maison : Maisons récentes
  • Logements sociaux : 4 %
  • Densité de population : 630 hab/km²

*Taux basé sur la valeur locative cadastrale

Agence immobilière ancien neuf St Jean de Vedas
96 ESPLANADE DE L ORTET
34430 ST JEAN DE VEDAS