*Choissisez une durée d'emprunt
Contacter l'agence Roquefort
A 10 minutes de Roquefort, dans la forêt de pins, cette jolie contemporaine va vous séduire par ses prestations de qualité. Une maison familiale avec ses deux chambres, sa suite parentale et sa grande pièce à vivre tournée vers la forêt. Une vie à la campagne, sans vis à vis, tout en étant proche des commodités et des écoles.
Les informations sur les risques auxquels ce bien est exposé sont disponible sur le site Géorisques :
www.georisques.gouv.fr
Ils ont imaginé pour vous cet aménagement virtuel non contractuel. L'extérieur a été entièrement repensé afin de révéler tout son potentiel.
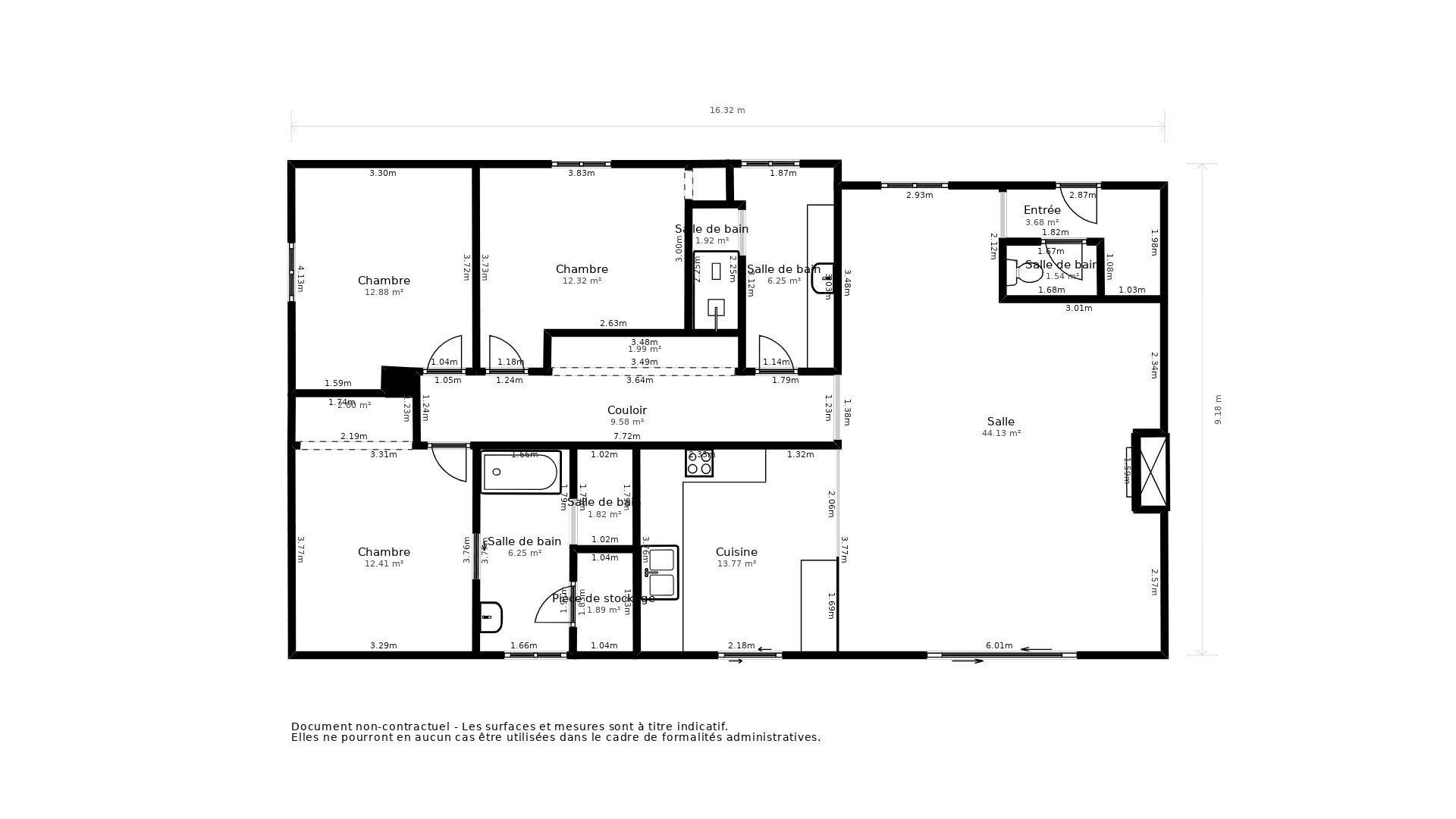
> Prendre rendez-vous pour visiterCe plan 2D représente la structure complète et précise du bien. La surface de chaque pièce est précisée à titre informatif. Ce plan ne se substitue en aucun cas à un diagnostic loi Carrez réalisé par un professionnel certifié.
> Télécharger le plan
Prix honoraires inclus : 262 400 € -
Honoraires à la charge de l'acquéreur : 4,96% TTC -
Prix hors honoraires : 250 000 €
*Choissisez une durée d'emprunt
*Taux basé sur la valeur locative cadastrale