Maison à vendre |  Plouzané |  6 pièces | 94 m²
Vendu
Réf : 210-2740

La Trinité, en fond d'impasse. Venez découvrir cette agréable maison composée de 4 chambres, qui nécessite des travaux de raffraichissement. Vous serez séduits par sa pièce de vie avec sa cuisine semi-ouverte, ainsi que par le potentiel de son jardin exposé sud-ouest. Les : garage, pompe à chaleur, huisseries alu et DPE en C !

Bien sous compromis Bien sous compromis
  • Surface habitable : 94 m²
  • Superficie terrain : 418 m²
  • Surface du séjour : 28 m²
  • Exposition séjour : Nord Sud
  • Pièce(s) : 6
  • Chambre(s) : 4
  • Cuisine : Simple
  • Salle(s) de bain : 1
  • WC : 2
  • Chauffage : Pompe à chaleur
  • Terrasse : Oui
  • Garage(s) : 1
  • Parking(s) : 1
  • Mitoyenneté : Oui
A
B
C
D
E
F
G
Dont Emission de gaz
à effet de serre
A
B
C
D
E
F
G
Afficher le DPE

Les informations sur les risques auxquels ce bien est exposé sont disponible sur le site Géorisques :
www.georisques.gouv.fr

Photo originale Photo retouchée
Laissez-vous inspirer par nos décorateurs

Ils ont imaginé pour vous cet aménagement virtuel non contractuel. L'extérieur a été entièrement repensé afin de révéler tout son potentiel.

> Prendre rendez-vous pour visiter
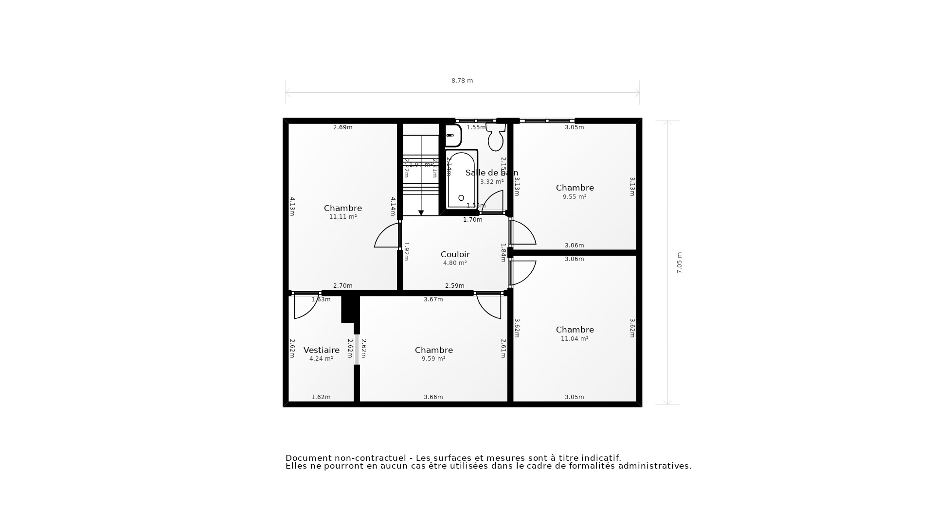
Prenez les mesures

Ce plan 2D représente la structure complète et précise du bien. La surface de chaque pièce est précisée à titre informatif. Ce plan ne se substitue en aucun cas à un diagnostic loi Carrez réalisé par un professionnel certifié.

> Télécharger le plan
Vente Maison PLOUZANE - 6 pièces - 94 m² - (29280)
Vente Maison PLOUZANE - 6 pièces - 94 m² - (29280)

Prix honoraires inclus : 215 660 €

Honoraires à la charge de l'acquéreur : 5,20% TTC

Prix hors honoraires : 205 000 €

Simulez votre mensualité pour l'achat de ce bien !

*Choissisez une durée d'emprunt

Simulez votre mensualité avec notre partenaire ImmoBanques


Calculez votre temps de trajet depuis ce bien



Les informations locales de Plouzané

  • Transports
    • Arrêts de bus
    • Gares
    • Tramways
    • Arrêts de métro, RER
    • Aéroports
    • Parkings
  • Santé
    • Médecins généralistes
    • Médecins spécialistes
    • Pharmacies
    • Hôpitaux
  • Education Petite enfance
    • Crèches
    • Ecoles maternelles
    • Ecoles primaires
    • Collèges
    • Lycées
    • Enseignements supérieur
  • Loisirs & Culture
    • Restaurants, Cafés
    • Monuments, Bibliothèques
    • Sport
    • Espaces verts
    • Théatres, Cinémas, Casinos
  • Commerces Administration
    • Supermarchés
    • Bureaux de poste
    • Boulangeries
    • Boucheries
    • Marchés
    • Mairies, Police, Gendarmerie

Plus d’informations sur la ville de Plouzané

  • Population : 12 010 habitants
  • Propriétaires : 76 %
  • Résidences secondaires : 1 %
  • Revenus moyens : 2 980 euros / mois
  • Taxe d'habitation* : 24 %
  • Taxe foncière* : 26 %
  • Densité de logements : 2 log/ha
  • Type de maison : Maisons récentes
  • Logements sociaux : 10 %
  • Densité de population : 360 hab/km²

*Taux basé sur la valeur locative cadastrale

Agence immobilière ancien neuf Plouzané
1 PLACE DU COMMERCE
29280 PLOUZANE