Maison à vendre |  Plouëc-du-Trieux |  8 pièces | 164 m²
344 784 €
Réf : 550-571
Visitez en avant-première

Au calme, maison typique en pierre entièrement rénovée, proche des commerces, école et crèche. Salon cosy avec poêle, grande cuisine équipée avec une ouverture sur une véranda chauffée. Quatre chambres. Un studio totalement aménagé. Jardin cloturé avec partie constructible. Double garage avec carports pour camping car.

  • Surface habitable : 164 m²
  • Superficie terrain : 4 898 m²
  • Surface du séjour : 18 m²
  • Pièce(s) : 8
  • Chambre(s) : 4
  • Cuisine : Equipée
  • Salle(s) d'eau : 2
  • WC : 3
  • Chauffage : Électrique
  • Garage(s) : 2
  • Parking(s) : 5
  • Mitoyenneté : Oui
A
B
C
D
E
F
G
Dont Emission de gaz
à effet de serre
A
B
C
D
E
F
G
Afficher le DPE

Les informations sur les risques auxquels ce bien est exposé sont disponible sur le site Géorisques :
www.georisques.gouv.fr

Photo originale Photo retouchée
Laissez-vous inspirer par nos décorateurs

Ils ont imaginé pour vous cet aménagement virtuel non contractuel. L'extérieur a été entièrement repensé afin de révéler tout son potentiel.

> Prendre rendez-vous pour visiter
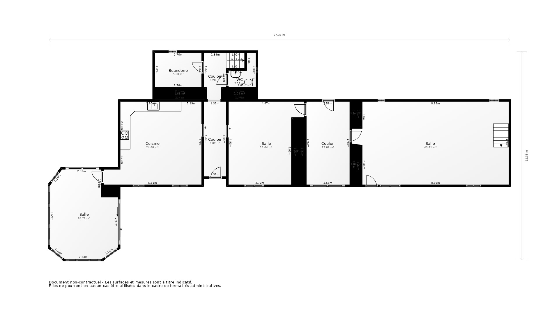
Prenez les mesures

Ce plan 2D représente la structure complète et précise du bien. La surface de chaque pièce est précisée à titre informatif. Ce plan ne se substitue en aucun cas à un diagnostic loi Carrez réalisé par un professionnel certifié.

> Télécharger le plan
Vente Maison PLOUEC DU TRIEUX - 8 pièces - 164 m² - (22260)
Vente Maison PLOUEC DU TRIEUX - 8 pièces - 164 m² - (22260)
Vente Maison PLOUEC DU TRIEUX - 8 pièces - 164 m² - (22260)

Prix honoraires inclus : 344 784 €

Honoraires à la charge de l'acquéreur : 4,48% TTC

Prix hors honoraires : 330 000 €

Simulez votre mensualité pour l'achat de ce bien !

*Choissisez une durée d'emprunt

Simulez votre mensualité avec notre partenaire ImmoBanques


Calculez votre temps de trajet depuis ce bien



Les informations locales de Plouëc-du-Trieux

  • Transports
    • Arrêts de bus
    • Gares
    • Tramways
    • Arrêts de métro, RER
    • Aéroports
    • Parkings
  • Santé
    • Médecins généralistes
    • Médecins spécialistes
    • Pharmacies
    • Hôpitaux
  • Education Petite enfance
    • Crèches
    • Ecoles maternelles
    • Ecoles primaires
    • Collèges
    • Lycées
    • Enseignements supérieur
  • Loisirs & Culture
    • Restaurants, Cafés
    • Monuments, Bibliothèques
    • Sport
    • Espaces verts
    • Théatres, Cinémas, Casinos
  • Commerces Administration
    • Supermarchés
    • Bureaux de poste
    • Boulangeries
    • Boucheries
    • Marchés
    • Mairies, Police, Gendarmerie

Plus d’informations sur la ville de Plouëc-du-Trieux

  • Population : 1 110 habitants
  • Propriétaires : 80 %
  • Résidences secondaires : 12 %
  • Revenus moyens : 2 020 euros / mois
  • Taxe d'habitation* : 17 %
  • Taxe foncière* : 20 %
  • Densité de logements : <1 log/ha
  • Type de maison : Maisons récentes
  • Logements sociaux : 5 %
  • Densité de population : 60 hab/km²

*Taux basé sur la valeur locative cadastrale

Agence immobilière ancien neuf Begard
26 RUE DE L’HOTEL DE VILLE
22140 BÉGARD