Maison à vendre |  Petit-Bersac |  6 pièces | 161 m²
236 700 €
Réf : 54-6060
Visitez en avant-première

Dans un bel environnement cet ensemble immobilier en pierre offre une maison avec un vaste séjour et sa cheminée, cuisine équipée, 4 chambres dont une suitée, salle d'eau, salle de bains, un studio. Présence d'une grange de 200 m² pouvant accueillir des chevaux, une grande terrasse couverte. Le terrain de 4900 m² est arboré et clos

  • Surface habitable : 161 m²
  • Superficie terrain : 4 928 m²
  • Surface du séjour : 38 m²
  • Pièce(s) : 6
  • Chambre(s) : 4
  • Cuisine : Aménagée
  • Salle(s) de bain : 1
  • Salle(s) d'eau : 3
  • WC : 4
  • Chauffage : Fioul
  • Cheminée : Oui
  • Garage(s) : 5
  • Parking(s) : 4
A
B
C
D
E
F
G
Dont Emission de gaz
à effet de serre
A
B
C
D
E
F
G
Afficher le DPE

Les informations sur les risques auxquels ce bien est exposé sont disponible sur le site Géorisques :
www.georisques.gouv.fr

Prenez les mesures

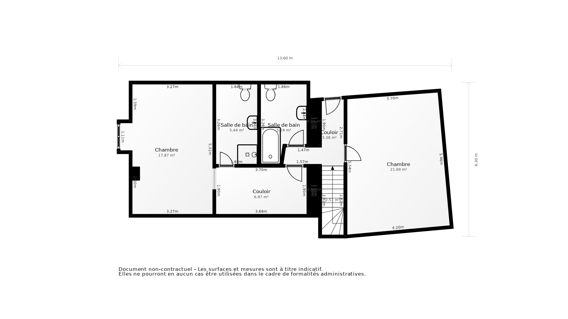
Ce plan 2D représente la structure complète et précise du bien. La surface de chaque pièce est précisée à titre informatif. Ce plan ne se substitue en aucun cas à un diagnostic loi Carrez réalisé par un professionnel certifié.

> Télécharger le plan
Vente Maison PETIT BERSAC - 6 pièces - 161 m² - (24600)
Vente Maison PETIT BERSAC - 6 pièces - 161 m² - (24600)

Prix honoraires inclus : 236 700 €

Honoraires à la charge de l'acquéreur : 5,20% TTC

Prix hors honoraires : 225 000 €

Simulez votre mensualité pour l'achat de ce bien !

*Choissisez une durée d'emprunt

Simulez votre mensualité avec notre partenaire ImmoBanques


Calculez votre temps de trajet depuis ce bien



Les informations locales de Petit-Bersac

  • Transports
    • Arrêts de bus
    • Gares
    • Tramways
    • Arrêts de métro, RER
    • Aéroports
    • Parkings
  • Santé
    • Médecins généralistes
    • Médecins spécialistes
    • Pharmacies
    • Hôpitaux
  • Education Petite enfance
    • Crèches
    • Ecoles maternelles
    • Ecoles primaires
    • Collèges
    • Lycées
    • Enseignements supérieur
  • Loisirs & Culture
    • Restaurants, Cafés
    • Monuments, Bibliothèques
    • Sport
    • Espaces verts
    • Théatres, Cinémas, Casinos
  • Commerces Administration
    • Supermarchés
    • Bureaux de poste
    • Boulangeries
    • Boucheries
    • Marchés
    • Mairies, Police, Gendarmerie

Plus d’informations sur la ville de Petit-Bersac

  • Population : 170 habitants
  • Propriétaires : 81 %
  • Résidences secondaires : 26 %
  • Revenus moyens : 2 360 euros / mois
  • Taxe d'habitation* : 11 %
  • Taxe foncière* : 13 %
  • Densité de logements : <1 log/ha
  • Type de maison : Maisons anciennes
  • Logements sociaux : 0 %
  • Densité de population : 20 hab/km²

*Taux basé sur la valeur locative cadastrale

Agence immobilière ancien neuf Ribérac
27 PLACE NATIONALE
24600 RIBERAC