Maison à vendre |  Nontron |  8 pièces | 187 m²
293 216 €
Réf : 98-5589
Visitez en avant-première

Maison de plain-pied offrant de beaux volumes et un agencement fonctionnel. Elle est composée d’une salle à manger avec coin salon. La partie nuit propose trois chambres , une salle de bains et un WC. Double garage, cave, cuisine d'été, grand bureau, une vue sur le parc, complètent le tout. Une visite s'impose, à vos téléphones !

  • Surface habitable : 187 m²
  • Superficie terrain : 11 394 m²
  • Surface du séjour : 51 m²
  • Pièce(s) : 8
  • Chambre(s) : 3
  • Cuisine : Equipée
  • Salle(s) de bain : 1
  • WC : 1
  • Chauffage : Pompe à chaleur
  • Cheminée : Oui
  • Terrasse : Oui
  • Cave : Oui
  • Garage(s) : 2
  • Parking(s) : 4
A
B
C
D
E
F
G
Dont Emission de gaz
à effet de serre
A
B
C
D
E
F
G
Afficher le DPE

Les informations sur les risques auxquels ce bien est exposé sont disponible sur le site Géorisques :
www.georisques.gouv.fr

Photo originale Photo retouchée
Laissez-vous inspirer par nos décorateurs

Avec la complicité de notre partenaire, nous vous proposons cet aménagement virtuel non contractuel. La pièce a été entièrement repensée et laisse place à une décoration actuelle et tendance.

> Prendre rendez-vous pour visiter
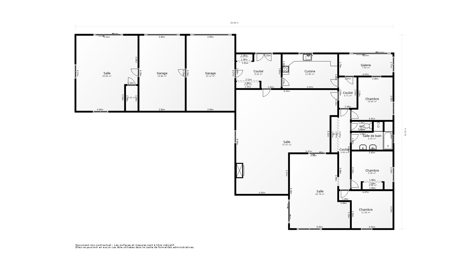
Prenez les mesures

Ce plan 2D représente la structure complète et précise du bien. La surface de chaque pièce est précisée à titre informatif. Ce plan ne se substitue en aucun cas à un diagnostic loi Carrez réalisé par un professionnel certifié.

> Télécharger le plan
Vente Maison NONTRON - 8 pièces - 187 m² - (24300)

Prix honoraires inclus : 293 216 €

Honoraires à la charge de l'acquéreur : 4,72% TTC

Prix hors honoraires : 280 000 €

Simulez votre mensualité pour l'achat de ce bien !

*Choissisez une durée d'emprunt

Simulez votre mensualité avec notre partenaire ImmoBanques


Calculez votre temps de trajet depuis ce bien



Les informations locales de Nontron

  • Transports
    • Arrêts de bus
    • Gares
    • Tramways
    • Arrêts de métro, RER
    • Aéroports
    • Parkings
  • Santé
    • Médecins généralistes
    • Médecins spécialistes
    • Pharmacies
    • Hôpitaux
  • Education Petite enfance
    • Crèches
    • Ecoles maternelles
    • Ecoles primaires
    • Collèges
    • Lycées
    • Enseignements supérieur
  • Loisirs & Culture
    • Restaurants, Cafés
    • Monuments, Bibliothèques
    • Sport
    • Espaces verts
    • Théatres, Cinémas, Casinos
  • Commerces Administration
    • Supermarchés
    • Bureaux de poste
    • Boulangeries
    • Boucheries
    • Marchés
    • Mairies, Police, Gendarmerie

Plus d’informations sur la ville de Nontron

  • Population : 3 210 habitants
  • Propriétaires : 57 %
  • Résidences secondaires : 10 %
  • Revenus moyens : 1 940 euros / mois
  • Taxe d'habitation* : 15 %
  • Taxe foncière* : 32 %
  • Densité de logements : 1 log/ha
  • Type de maison : Maisons récentes
  • Logements sociaux : 9 %
  • Densité de population : 130 hab/km²

*Taux basé sur la valeur locative cadastrale

Agence immobilière ancien neuf Nontron
2 RUE DE VERDUN
24300 NONTRON