Maison à vendre |  Niort |  7 pièces | 142 m²
378 999 €
Réf : 303-4311
Visitez en avant-première

Quartier Centre-ville


Hypercentre, belle maison avec garage et petit jardin. Au rez de chaussée : entrée, salon-séjour, cuisine équipée, 2ème salon. Au 1er : 1 chambre et une suite parentale avec salle d'eau, un wc. Au 2ème : 2 chambres, salle d'eau, wc. Au sous-sol : grande buanderie et pièce de stockage. Un grenier et une dépendance complètent ce bien

  • Surface habitable : 142 m²
  • Superficie terrain : 110 m²
  • Surface du séjour : 28 m²
  • Exposition séjour : Sud Est
  • Pièce(s) : 7
  • Chambre(s) : 5
  • Cuisine : Equipée
  • Salle(s) de bain : 1
  • Salle(s) d'eau : 1
  • WC : 2
  • Chauffage : Gaz
  • Grenier,Combles : Oui
  • Garage(s) : 1
  • Sous-sol : Oui
  • Mitoyenneté : Oui
A
B
C
D
E
F
G
Dont Emission de gaz
à effet de serre
A
B
C
D
E
F
G
Afficher le DPE

Les informations sur les risques auxquels ce bien est exposé sont disponible sur le site Géorisques :
www.georisques.gouv.fr

Photo originale Photo retouchée
Laissez-vous inspirer par nos décorateurs

Ils ont imaginé pour vous cet aménagement virtuel non contractuel. L'extérieur a été entièrement repensé afin de révéler tout son potentiel.

> Prendre rendez-vous pour visiter
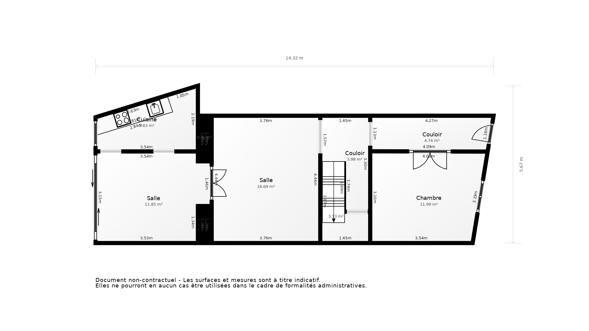
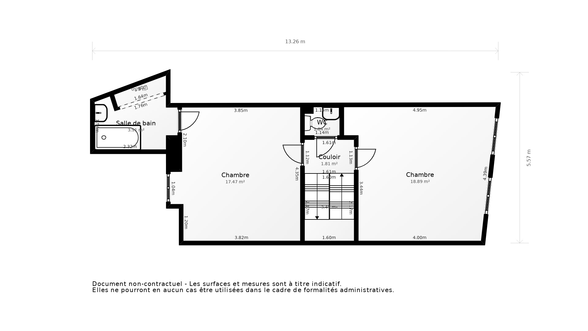
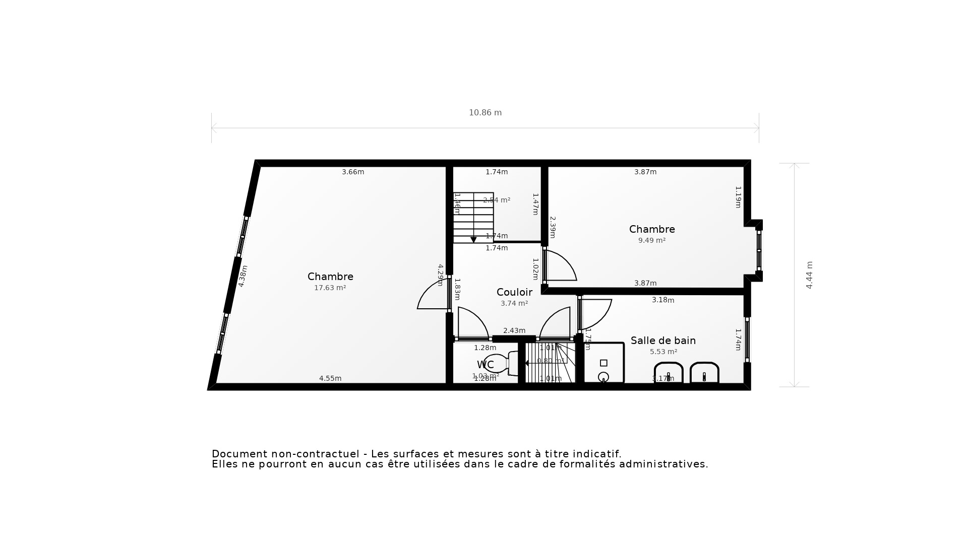
Prenez les mesures

Ce plan 2D représente la structure complète et précise du bien. La surface de chaque pièce est précisée à titre informatif. Ce plan ne se substitue en aucun cas à un diagnostic loi Carrez réalisé par un professionnel certifié.

> Télécharger le plan
Vente Maison NIORT - 7 pièces - 142 m² - (79000)
Vente Maison NIORT - 7 pièces - 142 m² - (79000)
Vente Maison NIORT - 7 pièces - 142 m² - (79000)
Vente Maison NIORT - 7 pièces - 142 m² - (79000)
Vente Maison NIORT - 7 pièces - 142 m² - (79000)

Prix honoraires inclus : 378 999 €

Honoraires à la charge de l'acquéreur : 4,24% TTC

Prix hors honoraires : 363 584 €

Simulez votre mensualité pour l'achat de ce bien !

*Choissisez une durée d'emprunt

Simulez votre mensualité avec notre partenaire ImmoBanques


Calculez votre temps de trajet depuis ce bien



Les informations locales du quartier Centre-ville de Niort

  • Transports
    • Arrêts de bus
    • Gares
    • Tramways
    • Arrêts de métro, RER
    • Aéroports
    • Parkings
  • Santé
    • Médecins généralistes
    • Médecins spécialistes
    • Pharmacies
    • Hôpitaux
  • Education Petite enfance
    • Crèches
    • Ecoles maternelles
    • Ecoles primaires
    • Collèges
    • Lycées
    • Enseignements supérieur
  • Loisirs & Culture
    • Restaurants, Cafés
    • Monuments, Bibliothèques
    • Sport
    • Espaces verts
    • Théatres, Cinémas, Casinos
  • Commerces Administration
    • Supermarchés
    • Bureaux de poste
    • Boulangeries
    • Boucheries
    • Marchés
    • Mairies, Police, Gendarmerie

Plus d’informations sur la ville de Niort

  • Population : 57 610 habitants
  • Propriétaires : 47 %
  • Résidences secondaires : 2 %
  • Revenus moyens : 2 100 euros / mois
  • Taxe d'habitation* : 22 %
  • Taxe foncière* : 30 %
  • Densité de logements : 5 log/ha
  • Type de maison : Maisons récentes
  • Logements sociaux : 18 %
  • Densité de population : 840 hab/km²

*Taux basé sur la valeur locative cadastrale

Agence immobilière ancien neuf Niort
6 PLACE SAINT JEAN
79000 NIORT