Maison à vendre |  Montclar-de-Comminges |  8 pièces | 234 m²
315 000 €
Réf : 251-3516
Visitez en avant-première

Exceptionnelle, cette ancienne fermette a été rénovée avec goût et le soin des finitions. Exposée sud / sud-est, elle profite d'un bel ensoleillement et d'un environnement verdoyant. Levgîte et les dépendances sont des atouts supplémentaires, d'autant plus que ses prestations et son cachet la destinent facilement à l'accueil.

  • Surface habitable : 234 m²
  • Superficie terrain : 5 000 m²
  • Surface du séjour : 47 m²
  • Exposition séjour : Sud Est
  • Pièce(s) : 8
  • Chambre(s) : 5
  • Cuisine : Américaine équipée
  • Salle(s) d'eau : 4
  • WC : 3
  • Chauffage : Autre
  • Cheminée : Oui
  • Cellier : Oui
  • Garage(s) : 2
  • Parking(s) : 5
  • Mitoyenneté : Oui
A
B
C
D
E
F
G
Dont Emission de gaz
à effet de serre
A
B
C
D
E
F
G
Afficher le DPE

Les informations sur les risques auxquels ce bien est exposé sont disponible sur le site Géorisques :
www.georisques.gouv.fr

Photo originale Photo retouchée
Laissez-vous inspirer par nos décorateurs

Ils ont imaginé pour vous cet aménagement virtuel non contractuel. L'extérieur a été entièrement repensé afin de révéler tout son potentiel.

> Prendre rendez-vous pour visiter
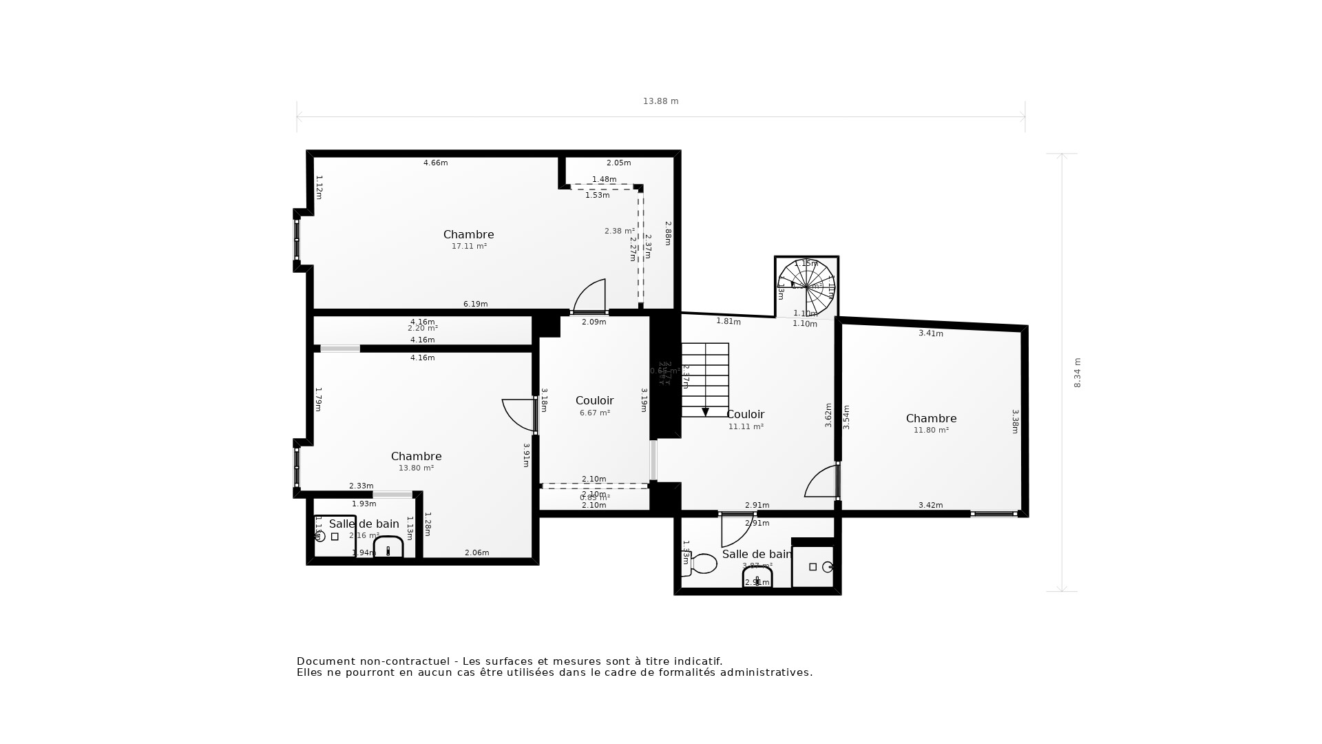
Prenez les mesures

Ce plan 2D représente la structure complète et précise du bien. La surface de chaque pièce est précisée à titre informatif. Ce plan ne se substitue en aucun cas à un diagnostic loi Carrez réalisé par un professionnel certifié.

> Télécharger le plan
Vente Maison MONTCLAR DE COMMINGES - 8 pièces - 234 m² - (31220)
Vente Maison MONTCLAR DE COMMINGES - 8 pièces - 234 m² - (31220)
Vente Maison MONTCLAR DE COMMINGES - 8 pièces - 234 m² - (31220)

Prix honoraires inclus : 315 000 €

Honoraires à la charge de l'acquéreur : 4,72% TTC

Prix hors honoraires : 300 803 €

Simulez votre mensualité pour l'achat de ce bien !

*Choissisez une durée d'emprunt

Simulez votre mensualité avec notre partenaire ImmoBanques


Calculez votre temps de trajet depuis ce bien



Les informations locales de Montclar-de-Comminges

  • Transports
    • Arrêts de bus
    • Gares
    • Tramways
    • Arrêts de métro, RER
    • Aéroports
    • Parkings
  • Santé
    • Médecins généralistes
    • Médecins spécialistes
    • Pharmacies
    • Hôpitaux
  • Education Petite enfance
    • Crèches
    • Ecoles maternelles
    • Ecoles primaires
    • Collèges
    • Lycées
    • Enseignements supérieur
  • Loisirs & Culture
    • Restaurants, Cafés
    • Monuments, Bibliothèques
    • Sport
    • Espaces verts
    • Théatres, Cinémas, Casinos
  • Commerces Administration
    • Supermarchés
    • Bureaux de poste
    • Boulangeries
    • Boucheries
    • Marchés
    • Mairies, Police, Gendarmerie

Plus d’informations sur la ville de Montclar-de-Comminges

  • Population : 90 habitants
  • Propriétaires : 87 %
  • Résidences secondaires : 4 %
  • Revenus moyens : ND
  • Taxe d'habitation* : 21 %
  • Taxe foncière* : 12 %
  • Densité de logements : <1 log/ha
  • Type de maison : Maisons anciennes
  • Logements sociaux : 0 %
  • Densité de population : 10 hab/km²

*Taux basé sur la valeur locative cadastrale

Agence immobilière ancien neuf Cazères
1 PLACE JULES FERRY
31220 CAZÈRES