Maison à vendre |  Montaner |  8 pièces | 200 m²
Vendu
Réf : 431-704

A 10 km du village de Ger, grand corps de ferme avec vue sur les Pyrénées, comprenant une maison d'habitation et des dépendances multiples, greniers aménageables, étable, cave, atelier. L'ensemble entouré d'un jardin arboré d'environ 1,5 ha . Le domaine comprend une zone forestière exploitable et une maison indépendante louée.

Bien sous compromis Bien sous compromis
  • Surface habitable : 200 m²
  • Superficie terrain : 15 210 m²
  • Surface du séjour : 28 m²
  • Exposition séjour : Plein Sud
  • Pièce(s) : 8
  • Chambre(s) : 5
  • Cuisine : Simple
  • Salle(s) d'eau : 1
  • WC : 1
  • Cheminée : Oui
  • Cave : Oui
  • Grenier,Combles : Oui
  • Garage(s) : 4
  • Parking(s) : 5
A
B
C
D
E
F
G
Dont Emission de gaz
à effet de serre
A
B
C
D
E
F
G
Afficher le DPE

Les informations sur les risques auxquels ce bien est exposé sont disponible sur le site Géorisques :
www.georisques.gouv.fr

Photo originale Photo retouchée
Laissez-vous inspirer par nos décorateurs

Ils ont imaginé pour vous cet aménagement virtuel non contractuel. L'extérieur a été entièrement repensé afin de révéler tout son potentiel.

> Prendre rendez-vous pour visiter
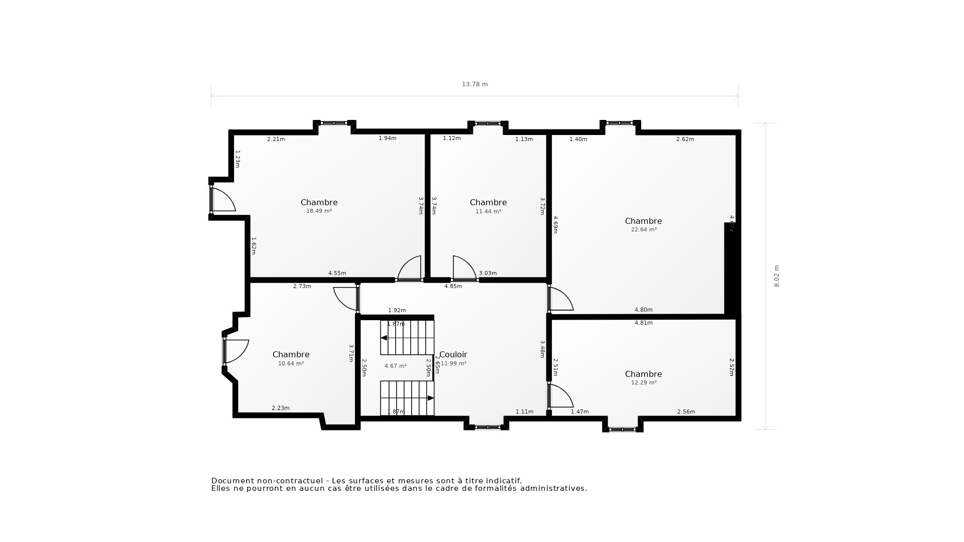
Prenez les mesures

Ce plan 2D représente la structure complète et précise du bien. La surface de chaque pièce est précisée à titre informatif. Ce plan ne se substitue en aucun cas à un diagnostic loi Carrez réalisé par un professionnel certifié.

> Télécharger le plan
Vente Maison MONTANER - 8 pièces - 200 m² - (64460)
Vente Maison MONTANER - 8 pièces - 200 m² - (64460)
Vente Maison MONTANER - 8 pièces - 200 m² - (64460)

Prix honoraires inclus : 242 500 €

Honoraires à la charge de l'acquéreur : 5,20% TTC

Prix hors honoraires : 230 514 €

Simulez votre mensualité pour l'achat de ce bien !

*Choissisez une durée d'emprunt

Simulez votre mensualité avec notre partenaire ImmoBanques


Calculez votre temps de trajet depuis ce bien



Les informations locales de Montaner

  • Transports
    • Arrêts de bus
    • Gares
    • Tramways
    • Arrêts de métro, RER
    • Aéroports
    • Parkings
  • Santé
    • Médecins généralistes
    • Médecins spécialistes
    • Pharmacies
    • Hôpitaux
  • Education Petite enfance
    • Crèches
    • Ecoles maternelles
    • Ecoles primaires
    • Collèges
    • Lycées
    • Enseignements supérieur
  • Loisirs & Culture
    • Restaurants, Cafés
    • Monuments, Bibliothèques
    • Sport
    • Espaces verts
    • Théatres, Cinémas, Casinos
  • Commerces Administration
    • Supermarchés
    • Bureaux de poste
    • Boulangeries
    • Boucheries
    • Marchés
    • Mairies, Police, Gendarmerie

Plus d’informations sur la ville de Montaner

  • Population : 460 habitants
  • Propriétaires : 83 %
  • Résidences secondaires : 4 %
  • Revenus moyens : 2 190 euros / mois
  • Taxe d'habitation* : 8 %
  • Taxe foncière* : 8 %
  • Densité de logements : <1 log/ha
  • Type de maison : Maisons récentes
  • Logements sociaux : 3 %
  • Densité de population : 20 hab/km²

*Taux basé sur la valeur locative cadastrale

Agence immobilière ancien neuf Rabastens de Bigorre
1 PLACE CENTRALE
65140 RABASTENS DE BIGORRE