Maison à vendre |  Monbahus |  4 pièces | 111 m²
215 660 €
Réf : 120-6734
Visitez en avant-première

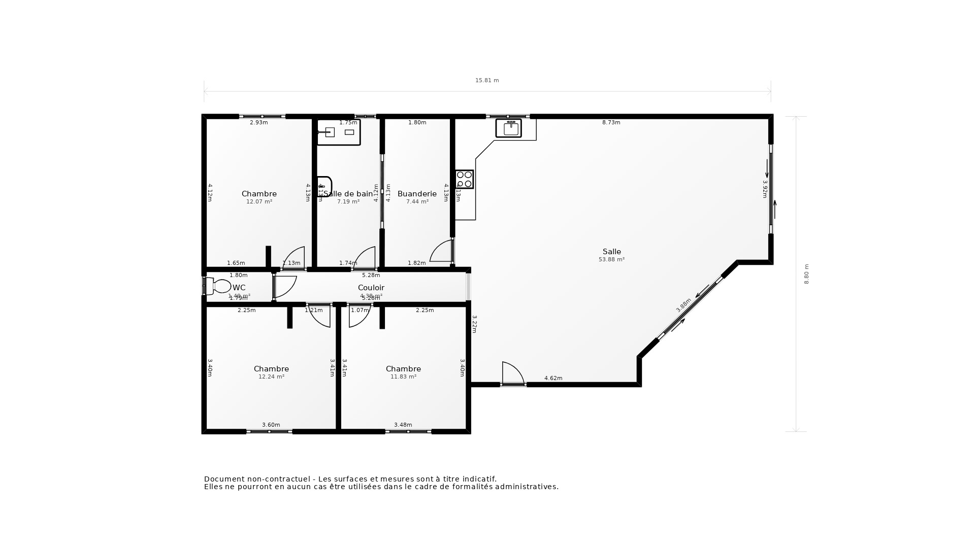
Maison de plain pied de 2016, dans un village avec écoles, collège, supérette et boulangerie. Cette maison est composée d'une cuisine ouverte sur le séjour donnant sur les terrasses, arrière cuisine, trois chambres, salle d'eau. Un double garage. Terrain arboré et clos d'environ 2000m² avec portail électrique.

  • Surface habitable : 111 m²
  • Superficie terrain : 2 000 m²
  • Surface du séjour : 57 m²
  • Exposition séjour : Sud Est
  • Pièce(s) : 4
  • Chambre(s) : 3
  • Cuisine : Aménagée
  • Salle(s) d'eau : 1
  • WC : 1
  • Chauffage : Électrique
  • Cellier : Oui
  • Garage(s) : 2
  • Parking(s) : 2
A
B
C
D
E
F
G
Dont Emission de gaz
à effet de serre
A
B
C
D
E
F
G
Afficher le DPE

Les informations sur les risques auxquels ce bien est exposé sont disponible sur le site Géorisques :
www.georisques.gouv.fr

Photo originale Photo retouchée
Laissez-vous inspirer par nos décorateurs

Avec la complicité de notre partenaire, nous vous proposons cet aménagement virtuel non contractuel. La pièce a été entièrement repensée et laisse place à une décoration actuelle et tendance.

> Prendre rendez-vous pour visiter
Prenez les mesures

Ce plan 2D représente la structure complète et précise du bien. La surface de chaque pièce est précisée à titre informatif. Ce plan ne se substitue en aucun cas à un diagnostic loi Carrez réalisé par un professionnel certifié.

> Télécharger le plan
Vente Maison MONBAHUS - 4 pièces - 111 m² - (47290)

Prix honoraires inclus : 215 660 €

Honoraires à la charge de l'acquéreur : 5,20% TTC

Prix hors honoraires : 205 000 €

Simulez votre mensualité pour l'achat de ce bien !

*Choissisez une durée d'emprunt

Simulez votre mensualité avec notre partenaire ImmoBanques


Calculez votre temps de trajet depuis ce bien



Les informations locales de Monbahus

  • Transports
    • Arrêts de bus
    • Gares
    • Tramways
    • Arrêts de métro, RER
    • Aéroports
    • Parkings
  • Santé
    • Médecins généralistes
    • Médecins spécialistes
    • Pharmacies
    • Hôpitaux
  • Education Petite enfance
    • Crèches
    • Ecoles maternelles
    • Ecoles primaires
    • Collèges
    • Lycées
    • Enseignements supérieur
  • Loisirs & Culture
    • Restaurants, Cafés
    • Monuments, Bibliothèques
    • Sport
    • Espaces verts
    • Théatres, Cinémas, Casinos
  • Commerces Administration
    • Supermarchés
    • Bureaux de poste
    • Boulangeries
    • Boucheries
    • Marchés
    • Mairies, Police, Gendarmerie

Plus d’informations sur la ville de Monbahus

  • Population : 620 habitants
  • Propriétaires : 78 %
  • Résidences secondaires : 8 %
  • Revenus moyens : 1 890 euros / mois
  • Taxe d'habitation* : 12 %
  • Taxe foncière* : 10 %
  • Densité de logements : <1 log/ha
  • Type de maison : Logements vacants
  • Logements sociaux : 0 %
  • Densité de population : 20 hab/km²

*Taux basé sur la valeur locative cadastrale

Agence immobilière ancien neuf Miramont de Guyenne
11 PLACE DE L HOTEL DE VILLE
47800 MIRAMONT DE GUYENNE