Maison à vendre |  Mehun-sur-Yèvre |  6 pièces | 141 m²
Vendu
Réf : 456-1220

Venez découvrir quartier Barmont un pavillon de plain-pied, comprenant une entrée avec placard, un salon avec cheminée, une salle à manger avec cuisine ouverte, wc, une salle de bain, une buanderie et 4 chambres. Un double garage et un abri de jardin complètent ce bien. Jardin clos sans vis à vis. A visiter sans tarder !!

Bien sous compromis Bien sous compromis
  • Surface habitable : 141 m²
  • Superficie terrain : 1 064 m²
  • Surface du séjour : 22 m²
  • Pièce(s) : 6
  • Chambre(s) : 4
  • Cuisine : Aménagée
  • Salle(s) de bain : 1
  • WC : 1
  • Chauffage : Pompe à chaleur
  • Garage(s) : 2
  • Parking(s) : 4
A
B
C
D
E
F
G
Dont Emission de gaz
à effet de serre
A
B
C
D
E
F
G
Afficher le DPE

Les informations sur les risques auxquels ce bien est exposé sont disponible sur le site Géorisques :
www.georisques.gouv.fr

Photo originale Photo retouchée
Laissez-vous inspirer par nos décorateurs

Ils ont imaginé pour vous cet aménagement virtuel non contractuel. L'extérieur a été entièrement repensé afin de révéler tout son potentiel.

> Prendre rendez-vous pour visiter
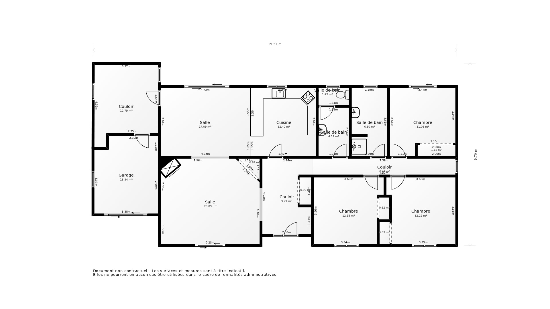
Prenez les mesures

Ce plan 2D représente la structure complète et précise du bien. La surface de chaque pièce est précisée à titre informatif. Ce plan ne se substitue en aucun cas à un diagnostic loi Carrez réalisé par un professionnel certifié.

> Télécharger le plan
Vente Maison MEHUN SUR YEVRE - 6 pièces - 141 m² - (18500)

Prix honoraires inclus : 262 400 €

Honoraires à la charge de l'acquéreur : 4,96% TTC

Prix hors honoraires : 250 000 €

Simulez votre mensualité pour l'achat de ce bien !

*Choissisez une durée d'emprunt

Simulez votre mensualité avec notre partenaire ImmoBanques


Calculez votre temps de trajet depuis ce bien



Les informations locales de Mehun-sur-Yèvre

  • Transports
    • Arrêts de bus
    • Gares
    • Tramways
    • Arrêts de métro, RER
    • Aéroports
    • Parkings
  • Santé
    • Médecins généralistes
    • Médecins spécialistes
    • Pharmacies
    • Hôpitaux
  • Education Petite enfance
    • Crèches
    • Ecoles maternelles
    • Ecoles primaires
    • Collèges
    • Lycées
    • Enseignements supérieur
  • Loisirs & Culture
    • Restaurants, Cafés
    • Monuments, Bibliothèques
    • Sport
    • Espaces verts
    • Théatres, Cinémas, Casinos
  • Commerces Administration
    • Supermarchés
    • Bureaux de poste
    • Boulangeries
    • Boucheries
    • Marchés
    • Mairies, Police, Gendarmerie

Plus d’informations sur la ville de Mehun-sur-Yèvre

  • Population : 6 830 habitants
  • Propriétaires : 69 %
  • Résidences secondaires : 2 %
  • Revenus moyens : 2 230 euros / mois
  • Taxe d'habitation* : 22 %
  • Taxe foncière* : 22 %
  • Densité de logements : 1 log/ha
  • Type de maison : Maisons récentes
  • Logements sociaux : 12 %
  • Densité de population : 280 hab/km²

*Taux basé sur la valeur locative cadastrale

Agence immobilière ancien neuf Mehun sur Yevre
148 RUE JEANNE D ARC
18500 MEHUN SUR YEVRE