Maison à vendre |  Le Poiré-sur-Vie |  6 pièces | 107 m²
282 342 €
Réf : 602-179
Visitez en avant-première

Nouveau bien à découvrir sur le Poiré-sur-Vie ! En exclusivité chez Human, ce bien charmant, situé en lotissement et proche de toutes les comodités saura vous séduire de part sa praticité et le carde qu'il propose. De plain-pied, avec 3 chambres, vous profiterez d'un mangifique terrain avec une piscine. A visiter sans plus tard !

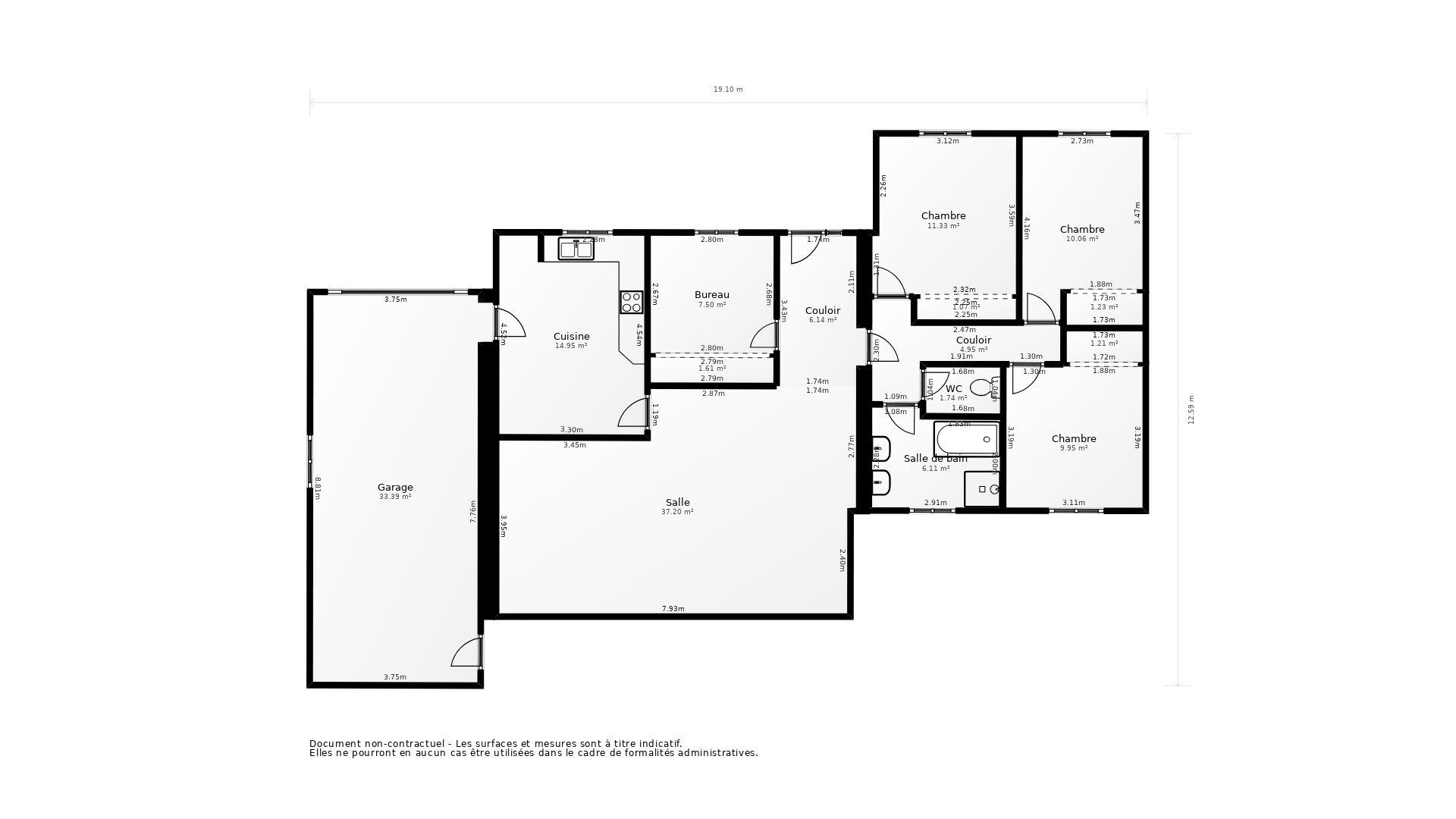
  • Surface habitable : 107 m²
  • Superficie terrain : 774 m²
  • Exposition séjour : Plein Nord
  • Pièce(s) : 6
  • Chambre(s) : 3
  • Cuisine : Aménagée
  • Salle(s) de bain : 1
  • WC : 1
  • Chauffage : Pompe à chaleur
  • Garage(s) : 1
  • Parking(s) : 2
A
B
C
D
E
F
G
Dont Emission de gaz
à effet de serre
A
B
C
D
E
F
G
Afficher le DPE

Les informations sur les risques auxquels ce bien est exposé sont disponible sur le site Géorisques :
www.georisques.gouv.fr

Photo originale Photo retouchée
Laissez-vous inspirer par nos décorateurs

Avec la complicité de notre partenaire, nous vous proposons cet aménagement virtuel non contractuel. La pièce a été entièrement repensée et laisse place à une décoration actuelle et tendance.

> Prendre rendez-vous pour visiter
Prenez les mesures

Ce plan 2D représente la structure complète et précise du bien. La surface de chaque pièce est précisée à titre informatif. Ce plan ne se substitue en aucun cas à un diagnostic loi Carrez réalisé par un professionnel certifié.

> Télécharger le plan
Vente Maison LE POIRE SUR VIE - 6 pièces - 107 m² - (85170)

Prix honoraires inclus : 282 342 €

Honoraires à la charge de l'acquéreur : 4,96% TTC

Prix hors honoraires : 269 000 €

Simulez votre mensualité pour l'achat de ce bien !

*Choissisez une durée d'emprunt

Simulez votre mensualité avec notre partenaire ImmoBanques


Calculez votre temps de trajet depuis ce bien



Les informations locales de Le Poiré-sur-Vie

  • Transports
    • Arrêts de bus
    • Gares
    • Tramways
    • Arrêts de métro, RER
    • Aéroports
    • Parkings
  • Santé
    • Médecins généralistes
    • Médecins spécialistes
    • Pharmacies
    • Hôpitaux
  • Education Petite enfance
    • Crèches
    • Ecoles maternelles
    • Ecoles primaires
    • Collèges
    • Lycées
    • Enseignements supérieur
  • Loisirs & Culture
    • Restaurants, Cafés
    • Monuments, Bibliothèques
    • Sport
    • Espaces verts
    • Théatres, Cinémas, Casinos
  • Commerces Administration
    • Supermarchés
    • Bureaux de poste
    • Boulangeries
    • Boucheries
    • Marchés
    • Mairies, Police, Gendarmerie

Plus d’informations sur la ville de Le Poiré-sur-Vie

  • Population : 8 190 habitants
  • Propriétaires : 76 %
  • Résidences secondaires : 2 %
  • Revenus moyens : 2 830 euros / mois
  • Taxe d'habitation* : 19 %
  • Taxe foncière* : 16 %
  • Densité de logements : <1 log/ha
  • Type de maison : Maisons récentes
  • Logements sociaux : 6 %
  • Densité de population : 110 hab/km²

*Taux basé sur la valeur locative cadastrale

Agence immobilière ancien neuf Le Poiré sur Vie
1 RUE DE L'ANCIEN PRIEURÉ
85170 LE POIRÉ-SUR-VIE