Maison à vendre |  Lannilis |  5 pièces | 76 m²
Vendu
Réf : 474-752

Maison en pierres au coeur du bourg de Lannilis. Dernièrement rénovée, elle allie confort et praticité, le tout à deux pas des commerces et des services. Son véritable atout ? Une cour abritée et sans vis-à-vis. A l'intérieur vous trouverez 3 chambres, dont une spacieuse suite parentale occupant tout le deuxième étage.

Bien sous compromis Bien sous compromis
  • Surface habitable : 76 m²
  • Superficie terrain : 82 m²
  • Surface du séjour : 37 m²
  • Exposition séjour : Est Ouest
  • Pièce(s) : 5
  • Chambre(s) : 3
  • Cuisine : Américaine aménagée
  • Salle(s) de bain : 1
  • Salle(s) d'eau : 1
  • WC : 2
  • Chauffage : Pompe à chaleur
  • Terrasse : Oui
  • Mitoyenneté : Oui
A
B
C
D
E
F
G
Dont Emission de gaz
à effet de serre
A
B
C
D
E
F
G
Afficher le DPE

Les informations sur les risques auxquels ce bien est exposé sont disponible sur le site Géorisques :
www.georisques.gouv.fr

Photo originale Photo retouchée
Laissez-vous inspirer par nos décorateurs

Ils ont imaginé pour vous cet aménagement virtuel non contractuel. L'extérieur a été entièrement repensé afin de révéler tout son potentiel.

> Prendre rendez-vous pour visiter
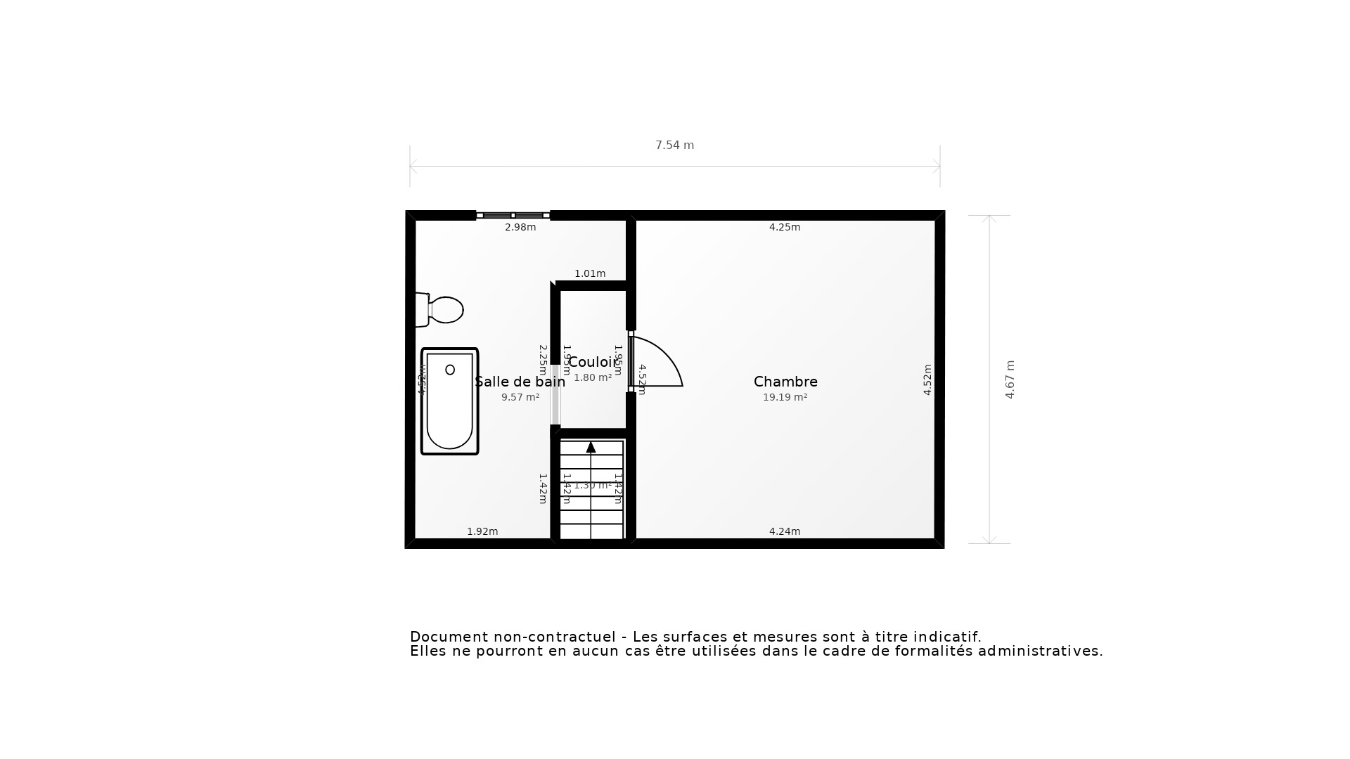
Prenez les mesures

Ce plan 2D représente la structure complète et précise du bien. La surface de chaque pièce est précisée à titre informatif. Ce plan ne se substitue en aucun cas à un diagnostic loi Carrez réalisé par un professionnel certifié.

> Télécharger le plan
Vente Maison LANNILIS - 5 pièces - 76 m² - (29870)
Vente Maison LANNILIS - 5 pièces - 76 m² - (29870)
Vente Maison LANNILIS - 5 pièces - 76 m² - (29870)
Vente Maison LANNILIS - 5 pièces - 76 m² - (29870)
Vente Maison LANNILIS - 5 pièces - 76 m² - (29870)
Vente Maison LANNILIS - 5 pièces - 76 m² - (29870)
Vente Maison LANNILIS - 5 pièces - 76 m² - (29870)
Vente Maison LANNILIS - 5 pièces - 76 m² - (29870)
Vente Maison LANNILIS - 5 pièces - 76 m² - (29870)

Prix honoraires inclus : 169 087 €

Honoraires à la charge de l'acquéreur : 5,68% TTC

Prix hors honoraires : 160 000 €

Simulez votre mensualité pour l'achat de ce bien !

*Choissisez une durée d'emprunt

Simulez votre mensualité avec notre partenaire ImmoBanques


Calculez votre temps de trajet depuis ce bien



Les informations locales de Lannilis

  • Transports
    • Arrêts de bus
    • Gares
    • Tramways
    • Arrêts de métro, RER
    • Aéroports
    • Parkings
  • Santé
    • Médecins généralistes
    • Médecins spécialistes
    • Pharmacies
    • Hôpitaux
  • Education Petite enfance
    • Crèches
    • Ecoles maternelles
    • Ecoles primaires
    • Collèges
    • Lycées
    • Enseignements supérieur
  • Loisirs & Culture
    • Restaurants, Cafés
    • Monuments, Bibliothèques
    • Sport
    • Espaces verts
    • Théatres, Cinémas, Casinos
  • Commerces Administration
    • Supermarchés
    • Bureaux de poste
    • Boulangeries
    • Boucheries
    • Marchés
    • Mairies, Police, Gendarmerie

Plus d’informations sur la ville de Lannilis

  • Population : 5 350 habitants
  • Propriétaires : 75 %
  • Résidences secondaires : 5 %
  • Revenus moyens : 2 390 euros / mois
  • Taxe d'habitation* : 20 %
  • Taxe foncière* : 26 %
  • Densité de logements : 1 log/ha
  • Type de maison : Maisons récentes
  • Logements sociaux : 4 %
  • Densité de population : 210 hab/km²

*Taux basé sur la valeur locative cadastrale

Agence immobilière ancien neuf Lannilis
1 RUE AUDREN DE KERDREL
29870 LANNILIS