Maison à vendre |  La Douze |  6 pièces | 134 m²
Vendu
Réf : 296-4398

Proche les commodités du village de La Douze, maison en pierre rénovée d'environ 135m² habitables comprenant de plain pied une cuisine équipée, deux chambres, une salle d'eau, un cellier et un wc. A l'étage un bureau et deux chambres. Terrain d'environ 2535m², relié au tout à l'égout avec une dépendance et un bûcher.

Bien sous compromis Bien sous compromis
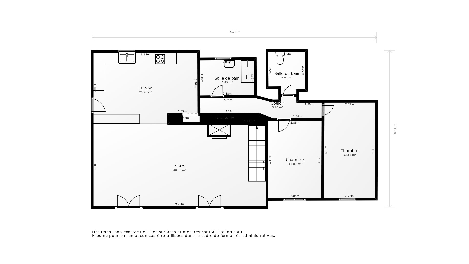
  • Surface habitable : 134 m²
  • Superficie terrain : 2 535 m²
  • Surface du séjour : 35 m²
  • Exposition séjour : Est Ouest
  • Pièce(s) : 6
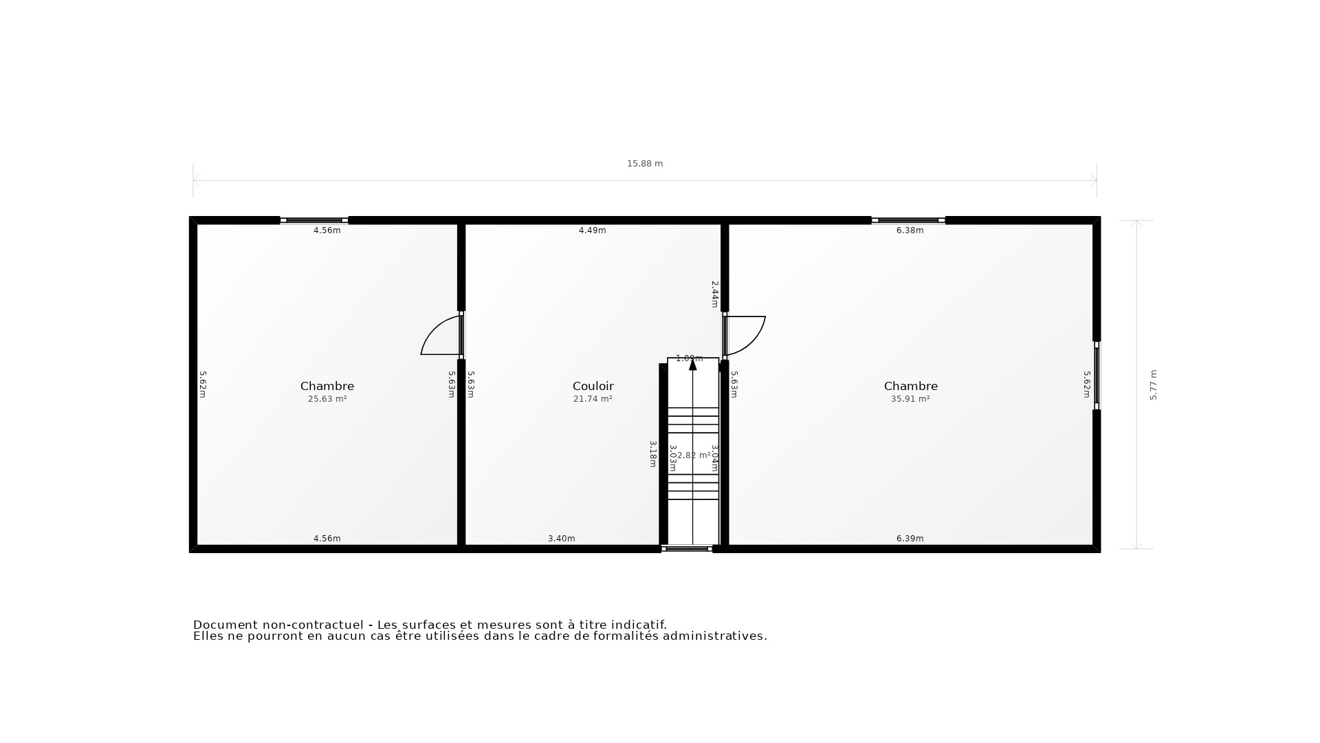
  • Chambre(s) : 4
  • Cuisine : Equipée
  • Salle(s) d'eau : 1
  • WC : 1
  • Chauffage : Autre
  • Cheminée : Oui
  • Terrasse : Oui
  • Cellier : Oui
  • Garage(s) : 2
  • Parking(s) : 2
A
B
C
D
E
F
G
Dont Emission de gaz
à effet de serre
A
B
C
D
E
F
G
Afficher le DPE

Les informations sur les risques auxquels ce bien est exposé sont disponible sur le site Géorisques :
www.georisques.gouv.fr

Photo originale Photo retouchée
Laissez-vous inspirer par nos décorateurs

Avec la complicité de notre partenaire, nous vous proposons cet aménagement virtuel non contractuel. La pièce a été entièrement repensée et laisse place à une décoration actuelle et tendance.

> Prendre rendez-vous pour visiter
Prenez les mesures

Ce plan 2D représente la structure complète et précise du bien. La surface de chaque pièce est précisée à titre informatif. Ce plan ne se substitue en aucun cas à un diagnostic loi Carrez réalisé par un professionnel certifié.

> Télécharger le plan
Vente Maison LA DOUZE - 6 pièces - 134 m² - (24330)
Vente Maison LA DOUZE - 6 pièces - 134 m² - (24330)

Prix honoraires inclus : 138 320 €

Honoraires à la charge de l'acquéreur : 6,40% TTC

Prix hors honoraires : 130 000 €

Simulez votre mensualité pour l'achat de ce bien !

*Choissisez une durée d'emprunt

Simulez votre mensualité avec notre partenaire ImmoBanques


Calculez votre temps de trajet depuis ce bien



Les informations locales de La Douze

  • Transports
    • Arrêts de bus
    • Gares
    • Tramways
    • Arrêts de métro, RER
    • Aéroports
    • Parkings
  • Santé
    • Médecins généralistes
    • Médecins spécialistes
    • Pharmacies
    • Hôpitaux
  • Education Petite enfance
    • Crèches
    • Ecoles maternelles
    • Ecoles primaires
    • Collèges
    • Lycées
    • Enseignements supérieur
  • Loisirs & Culture
    • Restaurants, Cafés
    • Monuments, Bibliothèques
    • Sport
    • Espaces verts
    • Théatres, Cinémas, Casinos
  • Commerces Administration
    • Supermarchés
    • Bureaux de poste
    • Boulangeries
    • Boucheries
    • Marchés
    • Mairies, Police, Gendarmerie

Plus d’informations sur la ville de La Douze

  • Population : 1 110 habitants
  • Propriétaires : 80 %
  • Résidences secondaires : 10 %
  • Revenus moyens : 2 320 euros / mois
  • Taxe d'habitation* : 12 %
  • Taxe foncière* : 18 %
  • Densité de logements : <1 log/ha
  • Type de maison : Maisons récentes
  • Logements sociaux : 1 %
  • Densité de population : 50 hab/km²

*Taux basé sur la valeur locative cadastrale

Agence immobilière ancien neuf Vergt
2 PLACE MARTY
24380 VERGT