Maison à vendre |  Jumilhac-le-Grand |  7 pièces | 300 m²
520 000 €
Réf : 164-4581
Visitez en avant-première

Domaine de caractère de 31 hectares avec vue imprenable sur le Château de Jumilhac-le-Grand (source, vergers, bord de rivière, potentiel 500 m² aménageables). Nichée dans un environnement naturel préservé, cette ancienne ferme périgourdine forme un ensemble de six bâtiments en pierres. Situation dominante, aucun vis-à-vis.

  • Surface habitable : 300 m²
  • Superficie terrain : 300 000 m²
  • Surface du séjour : 29 m²
  • Pièce(s) : 7
  • Chambre(s) : 4
  • Cuisine : Simple
  • Salle(s) d'eau : 2
  • WC : 3
  • Chauffage : Électrique
  • Cheminée : Oui
  • Terrasse : Oui
  • Grenier,Combles : Oui
  • Garage(s) : 4
  • Parking(s) : 4
A
B
C
D
E
F
G
Dont Emission de gaz
à effet de serre
A
B
C
D
E
F
G
Afficher le DPE

Les informations sur les risques auxquels ce bien est exposé sont disponible sur le site Géorisques :
www.georisques.gouv.fr

Photo originale Photo retouchée
Laissez-vous inspirer par nos décorateurs

Avec la complicité de notre partenaire, nous vous proposons cet aménagement virtuel non contractuel. La pièce a été entièrement repensée et laisse place à une décoration actuelle et tendance.

> Prendre rendez-vous pour visiter
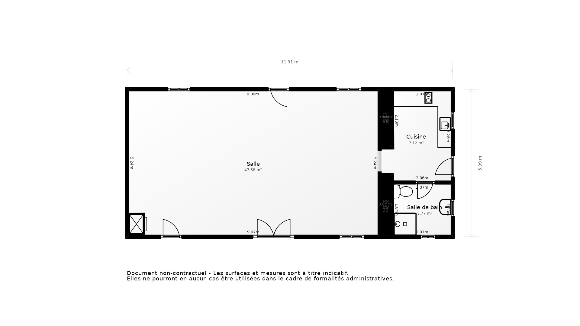
Prenez les mesures

Ce plan 2D représente la structure complète et précise du bien. La surface de chaque pièce est précisée à titre informatif. Ce plan ne se substitue en aucun cas à un diagnostic loi Carrez réalisé par un professionnel certifié.

> Télécharger le plan
Vente Maison JUMILHAC LE GRAND - 7 pièces - 300 m² - (24630)

Prix honoraires inclus : 520 000 €

Honoraires à la charge de l'acquéreur : 4,00% TTC

Prix hors honoraires : 500 000 €

Simulez votre mensualité pour l'achat de ce bien !

*Choissisez une durée d'emprunt

Simulez votre mensualité avec notre partenaire ImmoBanques


Calculez votre temps de trajet depuis ce bien



Les informations locales de Jumilhac-le-Grand

  • Transports
    • Arrêts de bus
    • Gares
    • Tramways
    • Arrêts de métro, RER
    • Aéroports
    • Parkings
  • Santé
    • Médecins généralistes
    • Médecins spécialistes
    • Pharmacies
    • Hôpitaux
  • Education Petite enfance
    • Crèches
    • Ecoles maternelles
    • Ecoles primaires
    • Collèges
    • Lycées
    • Enseignements supérieur
  • Loisirs & Culture
    • Restaurants, Cafés
    • Monuments, Bibliothèques
    • Sport
    • Espaces verts
    • Théatres, Cinémas, Casinos
  • Commerces Administration
    • Supermarchés
    • Bureaux de poste
    • Boulangeries
    • Boucheries
    • Marchés
    • Mairies, Police, Gendarmerie

Plus d’informations sur la ville de Jumilhac-le-Grand

  • Population : 1 230 habitants
  • Propriétaires : 73 %
  • Résidences secondaires : 31 %
  • Revenus moyens : 1 930 euros / mois
  • Taxe d'habitation* : 13 %
  • Taxe foncière* : 21 %
  • Densité de logements : <1 log/ha
  • Type de maison : Maisons anciennes
  • Logements sociaux : 6 %
  • Densité de population : 20 hab/km²

*Taux basé sur la valeur locative cadastrale

Agence immobilière ancien neuf St Yrieix la Perche
9 RUE VICTOR HUGO
87500 ST YRIEIX LA PERCHE