Maison à vendre |  Élancourt |  7 pièces | 120 m²
Vendu
Réf : 228-2055

Proche de toutes les commodités et au calme d'une impasse, pavillon de type Egly comprenant entrée avec placard, séjour double donnant sur jardin, cuisine independante et équipée, WC. A l'étage, 4 chambres avec placards, dressing, SDE, SDB. Combles amenagé en chambre. Garage. 150 m² de jardin. Pas de travaux à prévoir !

Bien sous compromis Bien sous compromis
  • Surface habitable : 120 m²
  • Superficie terrain : 192 m²
  • Surface du séjour : 42 m²
  • Exposition séjour : Plein Ouest
  • Pièce(s) : 7
  • Chambre(s) : 5
  • Cuisine : Equipée
  • Salle(s) de bain : 1
  • Salle(s) d'eau : 1
  • WC : 2
  • Chauffage : Gaz
  • Garage(s) : 1
  • Mitoyenneté : Oui
A
B
C
D
E
F
G
Dont Emission de gaz
à effet de serre
A
B
C
D
E
F
G
Afficher le DPE

Les informations sur les risques auxquels ce bien est exposé sont disponible sur le site Géorisques :
www.georisques.gouv.fr

Photo originale Photo retouchée
Laissez-vous inspirer par nos décorateurs

Ils ont imaginé pour vous cet aménagement virtuel non contractuel. L'extérieur a été entièrement repensé afin de révéler tout son potentiel.

> Prendre rendez-vous pour visiter
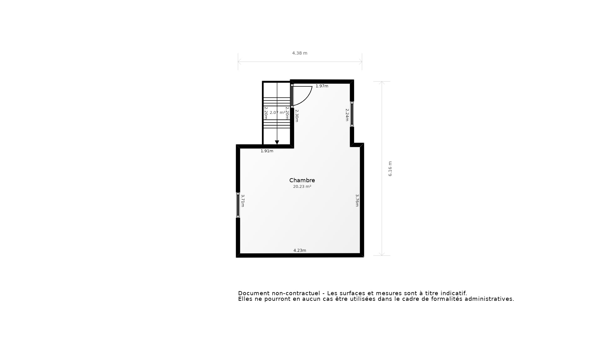
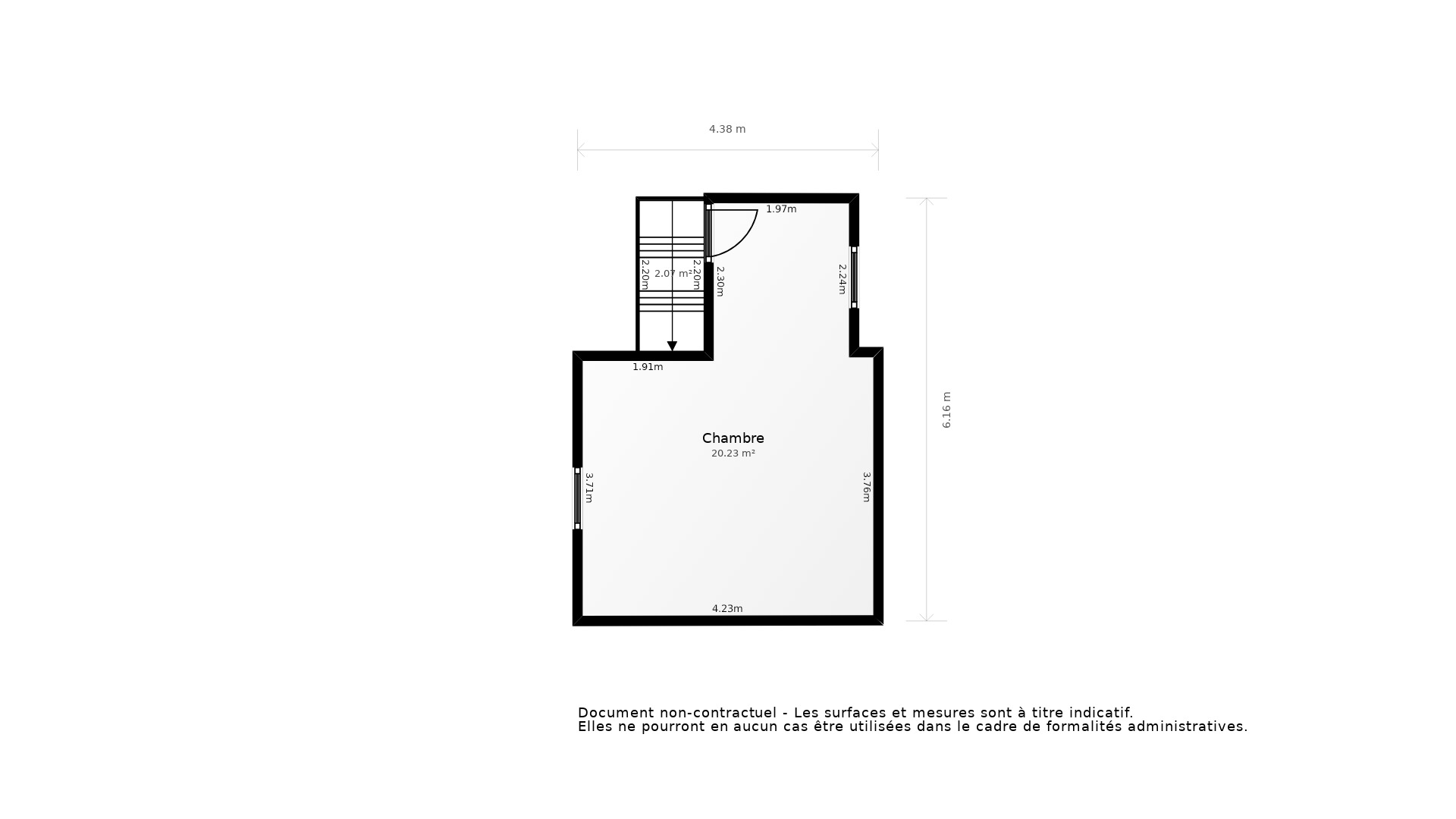
Prenez les mesures

Ce plan 2D représente la structure complète et précise du bien. La surface de chaque pièce est précisée à titre informatif. Ce plan ne se substitue en aucun cas à un diagnostic loi Carrez réalisé par un professionnel certifié.

> Télécharger le plan
Vente Maison ELANCOURT - 7 pièces - 120 m² - (78990)
Vente Maison ELANCOURT - 7 pièces - 120 m² - (78990)
Vente Maison ELANCOURT - 7 pièces - 120 m² - (78990)
Vente Maison ELANCOURT - 7 pièces - 120 m² - (78990)
Vente Maison ELANCOURT - 7 pièces - 120 m² - (78990)
Vente Maison ELANCOURT - 7 pièces - 120 m² - (78990)
Vente Maison ELANCOURT - 7 pièces - 120 m² - (78990)
Vente Maison ELANCOURT - 7 pièces - 120 m² - (78990)
Vente Maison ELANCOURT - 7 pièces - 120 m² - (78990)

Prix honoraires inclus : 386 000 €

Honoraires à la charge de l'acquéreur : 4,24% TTC

Prix hors honoraires : 370 300 €

Simulez votre mensualité pour l'achat de ce bien !

*Choissisez une durée d'emprunt

Simulez votre mensualité avec notre partenaire ImmoBanques


Calculez votre temps de trajet depuis ce bien



Les informations locales de Élancourt

  • Transports
    • Arrêts de bus
    • Gares
    • Tramways
    • Arrêts de métro, RER
    • Aéroports
    • Parkings
  • Santé
    • Médecins généralistes
    • Médecins spécialistes
    • Pharmacies
    • Hôpitaux
  • Education Petite enfance
    • Crèches
    • Ecoles maternelles
    • Ecoles primaires
    • Collèges
    • Lycées
    • Enseignements supérieur
  • Loisirs & Culture
    • Restaurants, Cafés
    • Monuments, Bibliothèques
    • Sport
    • Espaces verts
    • Théatres, Cinémas, Casinos
  • Commerces Administration
    • Supermarchés
    • Bureaux de poste
    • Boulangeries
    • Boucheries
    • Marchés
    • Mairies, Police, Gendarmerie

Plus d’informations sur la ville de Élancourt

  • Population : 26 490 habitants
  • Propriétaires : 63 %
  • Résidences secondaires : 0 %
  • Revenus moyens : 3 320 euros / mois
  • Taxe d'habitation* : 13 %
  • Taxe foncière* : 18 %
  • Densité de logements : 12 log/ha
  • Type de maison : Appartements et maisons de ville
  • Logements sociaux : 21 %
  • Densité de population : 2 810 hab/km²

*Taux basé sur la valeur locative cadastrale

Agence immobilière ancien neuf Villiers Saint Frédéric
7 ROUTE DE SAINT-GERMAIN
78640 VILLIERS-SAINT-FRÉDÉRIC