Maison à vendre |  Église-Neuve-de-Vergt |  5 pièces | 114 m²
249 324 €
Réf : 296-4442
Visitez en avant-première

Proche Périgueux, maison d'environ 114 m² comprenant, une entrée, une pièce de vie lumineuse donnant accés à une terrasse couverte, une cuisine équipée, 3 chambres avec dressing, une salle d'eau, 2 wc. Sous sol aménageable d'environ 120 m². Terrain clos de 2 900 m².

  • Surface habitable : 114 m²
  • Superficie terrain : 2 900 m²
  • Exposition séjour : Nord Ouest
  • Pièce(s) : 5
  • Chambre(s) : 3
  • Cuisine : Equipée
  • Salle(s) d'eau : 1
  • WC : 2
  • Chauffage : Pompe à chaleur
  • Terrasse : Oui
  • Garage(s) : 1
  • Parking(s) : 2
  • Sous-sol : Oui
A
B
C
D
E
F
G
Dont Emission de gaz
à effet de serre
A
B
C
D
E
F
G
Afficher le DPE

Les informations sur les risques auxquels ce bien est exposé sont disponible sur le site Géorisques :
www.georisques.gouv.fr

Photo originale Photo retouchée
Laissez-vous inspirer par nos décorateurs

Ils ont imaginé pour vous cet aménagement virtuel non contractuel. L'extérieur a été entièrement repensé afin de révéler tout son potentiel.

> Prendre rendez-vous pour visiter
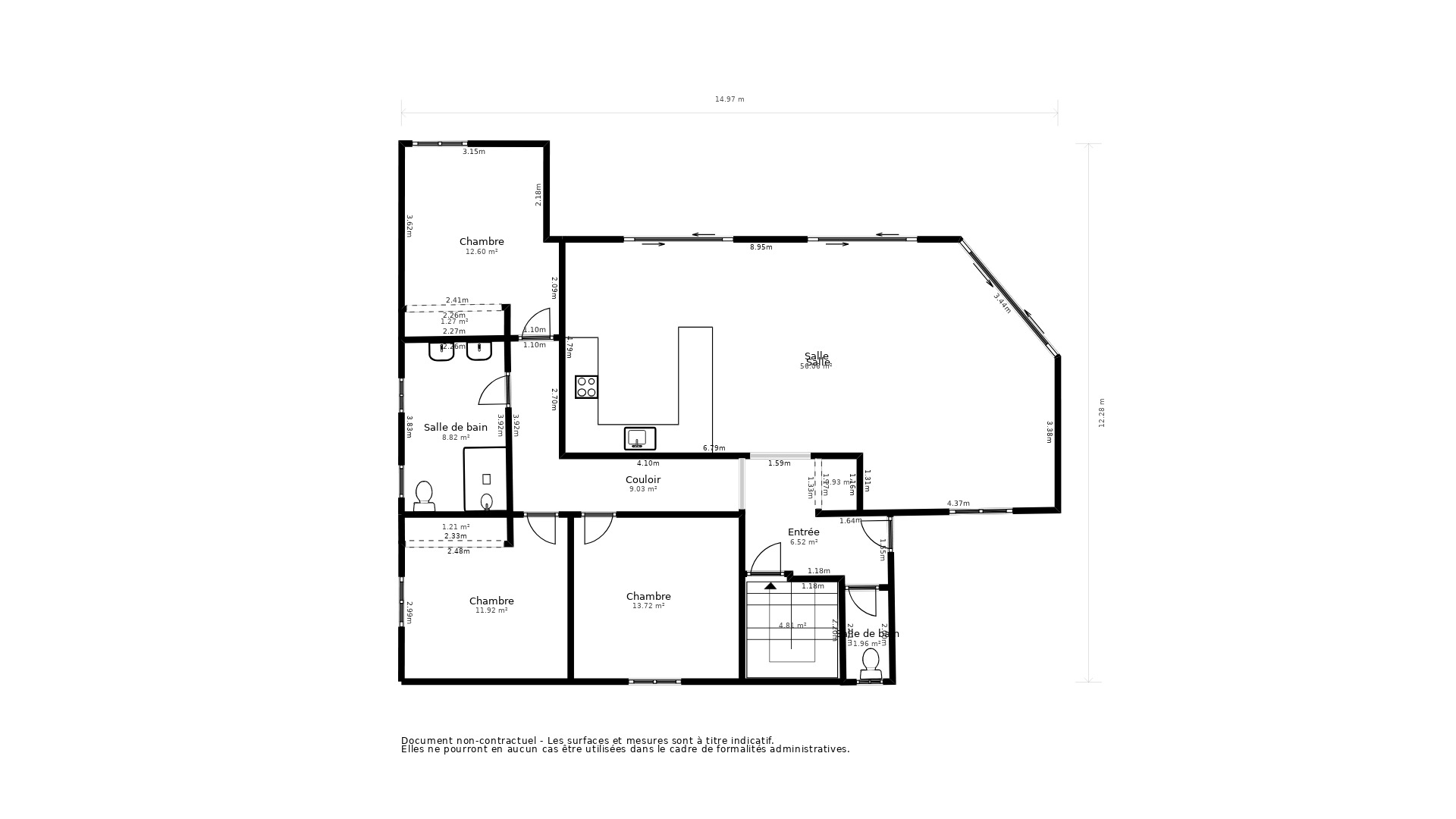
Prenez les mesures

Ce plan 2D représente la structure complète et précise du bien. La surface de chaque pièce est précisée à titre informatif. Ce plan ne se substitue en aucun cas à un diagnostic loi Carrez réalisé par un professionnel certifié.

> Télécharger le plan
Vente Maison EGLISE NEUVE DE VERGT - 5 pièces - 114 m² - (24380)
Vente Maison EGLISE NEUVE DE VERGT - 5 pièces - 114 m² - (24380)

Prix honoraires inclus : 249 324 €

Honoraires à la charge de l'acquéreur : 5,20% TTC

Prix hors honoraires : 237 000 €

Simulez votre mensualité pour l'achat de ce bien !

*Choissisez une durée d'emprunt

Simulez votre mensualité avec notre partenaire ImmoBanques


Calculez votre temps de trajet depuis ce bien



Les informations locales de Église-Neuve-de-Vergt

  • Transports
    • Arrêts de bus
    • Gares
    • Tramways
    • Arrêts de métro, RER
    • Aéroports
    • Parkings
  • Santé
    • Médecins généralistes
    • Médecins spécialistes
    • Pharmacies
    • Hôpitaux
  • Education Petite enfance
    • Crèches
    • Ecoles maternelles
    • Ecoles primaires
    • Collèges
    • Lycées
    • Enseignements supérieur
  • Loisirs & Culture
    • Restaurants, Cafés
    • Monuments, Bibliothèques
    • Sport
    • Espaces verts
    • Théatres, Cinémas, Casinos
  • Commerces Administration
    • Supermarchés
    • Bureaux de poste
    • Boulangeries
    • Boucheries
    • Marchés
    • Mairies, Police, Gendarmerie

Plus d’informations sur la ville de Église-Neuve-de-Vergt

  • Population : 470 habitants
  • Propriétaires : 82 %
  • Résidences secondaires : 3 %
  • Revenus moyens : 2 930 euros / mois
  • Taxe d'habitation* : 12 %
  • Taxe foncière* : 12 %
  • Densité de logements : <1 log/ha
  • Type de maison : Maisons récentes
  • Logements sociaux : 1 %
  • Densité de population : 60 hab/km²

*Taux basé sur la valeur locative cadastrale

Agence immobilière ancien neuf Vergt
2 PLACE MARTY
24380 VERGT