*Choissisez une durée d'emprunt
Contacter l'agence Bruges
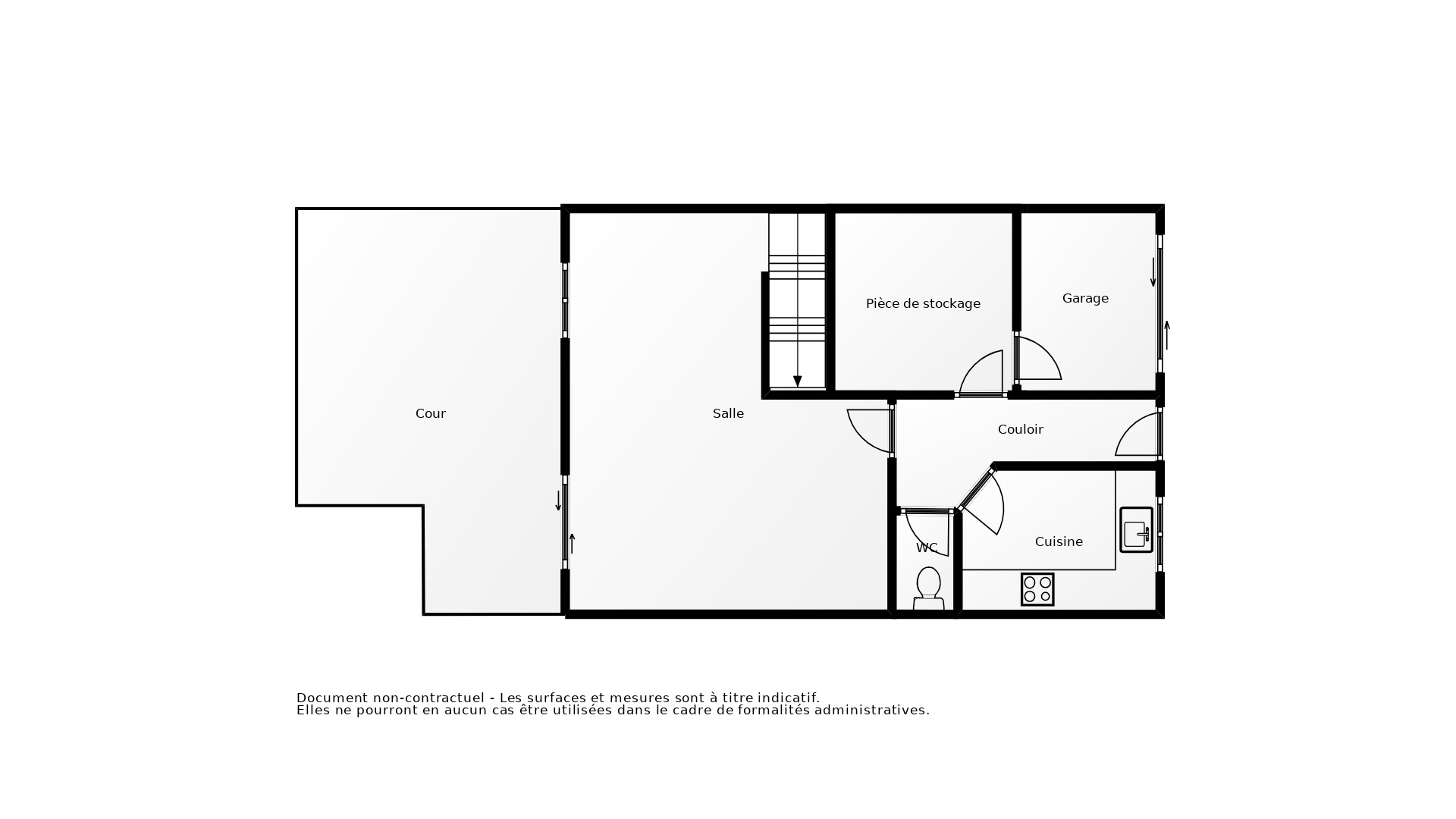
Dans un secteur calme et recherché, je vous invite à découvrir cette jolie maison familiale aux prestations soignées. Ce bien se compose d'un grand séjour lumineux, d'une cuisine indépendante, de 4 chambres, d'une salle d'eau et d'une salle de bains. Un garage, une place de stationnement ainsi qu'une terrasse complètent l'ensemble.
Ce bien est soumis à la copropriété. Les charges courantes annuelles sont estimées à 90 €.
Les informations sur les risques auxquels ce bien est exposé sont disponible sur le site Géorisques :
www.georisques.gouv.fr
Ils ont imaginé pour vous cet aménagement virtuel non contractuel. L'extérieur a été entièrement repensé afin de révéler tout son potentiel.
> Prendre rendez-vous pour visiterCe plan 2D représente la structure complète et précise du bien. La surface de chaque pièce est précisée à titre informatif. Ce plan ne se substitue en aucun cas à un diagnostic loi Carrez réalisé par un professionnel certifié.
> Télécharger le plan
Prix honoraires inclus : 396 112 € -
Honoraires à la charge de l'acquéreur : 4,24% TTC -
Prix hors honoraires : 380 000 €
*Choissisez une durée d'emprunt
*Taux basé sur la valeur locative cadastrale