Maison à vendre |  Brest |  5 pièces | 104 m²
239 990 €
Réf : 199-3319
Visitez en avant-première

Quartier Recouvrance - 4 Moulins


RECOUVRANCE - RARE - À deux pas du Triangle d'or, TRAM, Base navale, Hyper centre - Maison de vile rénovée avec de beaux volumes, exposée EST-OUEST. Profitez d'une agréable pièce à vivre, une cuisine ouverte avec accès terrasse et 3 chambres. Idéalement situéee parfaite pour une vie citadine pratique. À visiter sans tarder !

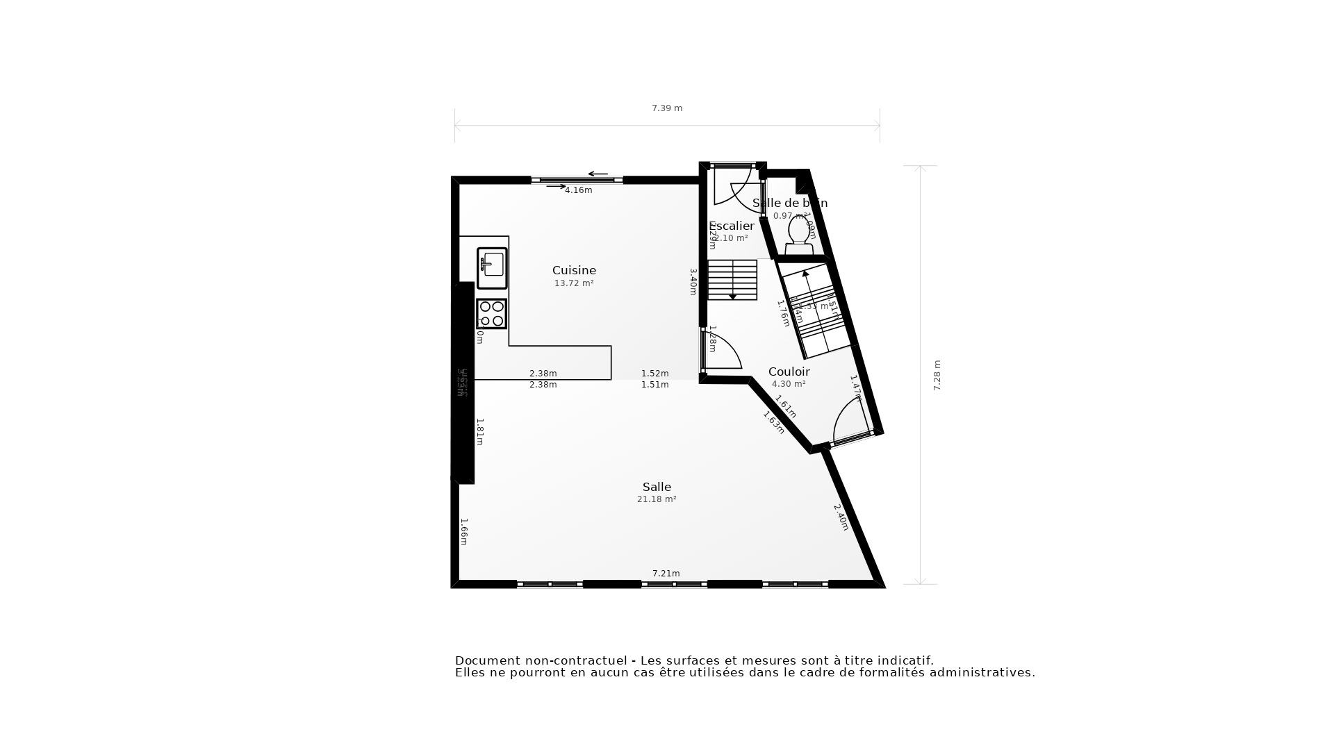
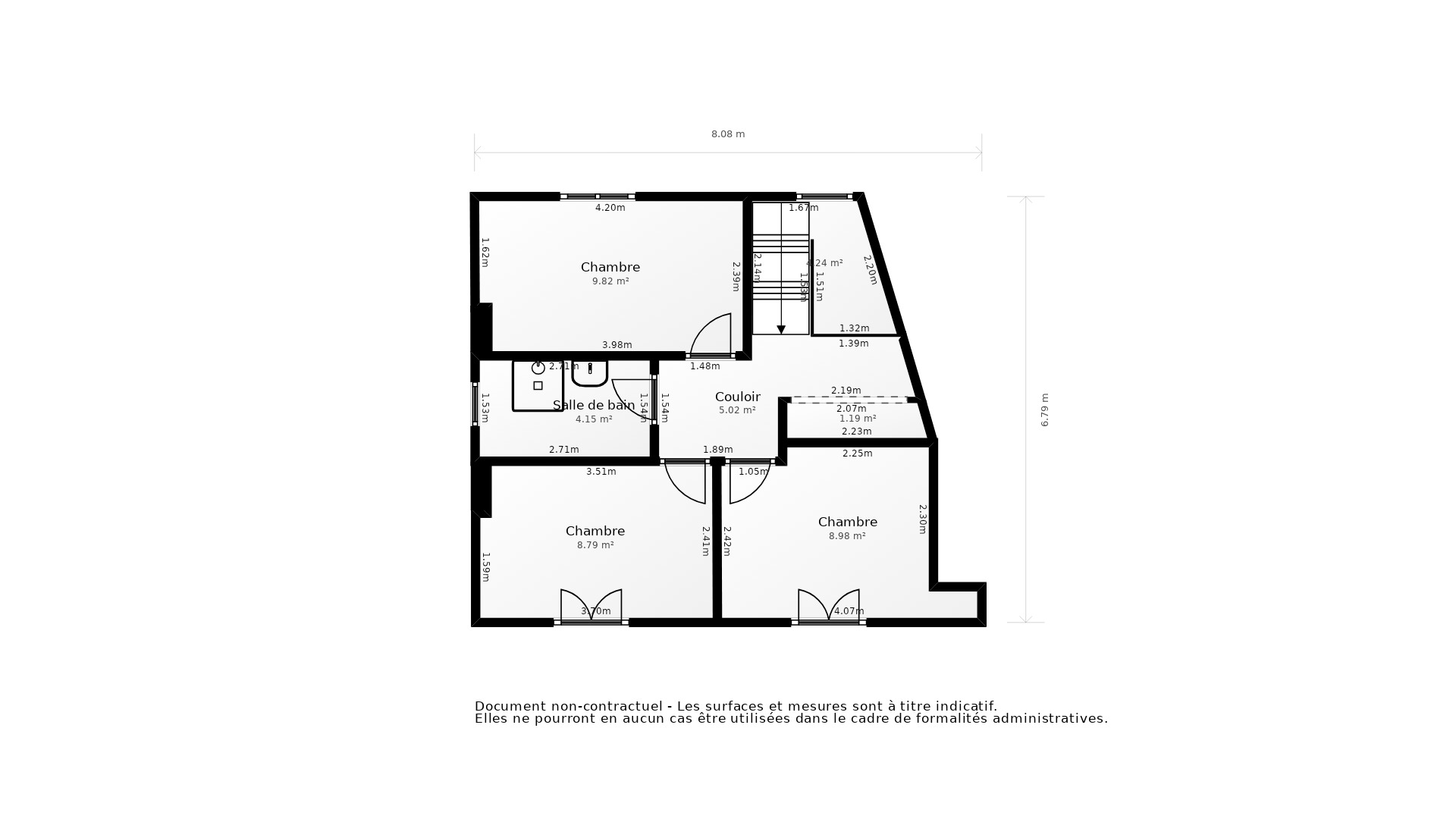
  • Surface habitable : 104 m²
  • Superficie terrain : 86 m²
  • Surface du séjour : 25 m²
  • Exposition séjour : Est Ouest
  • Pièce(s) : 5
  • Chambre(s) : 3
  • Cuisine : Américaine équipée
  • Salle(s) d'eau : 1
  • WC : 1
  • Chauffage : Électrique
  • Mitoyenneté : Oui
A
B
C
D
E
F
G
Dont Emission de gaz
à effet de serre
A
B
C
D
E
F
G
Afficher le DPE

Les informations sur les risques auxquels ce bien est exposé sont disponible sur le site Géorisques :
www.georisques.gouv.fr

Photo originale Photo retouchée
Laissez-vous inspirer par nos décorateurs

Ils ont imaginé pour vous cet aménagement virtuel non contractuel. L'extérieur a été entièrement repensé afin de révéler tout son potentiel.

> Prendre rendez-vous pour visiter
Prenez les mesures

Ce plan 2D représente la structure complète et précise du bien. La surface de chaque pièce est précisée à titre informatif. Ce plan ne se substitue en aucun cas à un diagnostic loi Carrez réalisé par un professionnel certifié.

> Télécharger le plan
Vente Maison BREST - 5 pièces - 104 m² - (29200)
Vente Maison BREST - 5 pièces - 104 m² - (29200)

Prix honoraires inclus : 239 990 €

Honoraires à la charge de l'acquéreur : 5,20% TTC

Prix hors honoraires : 228 128 €

Simulez votre mensualité pour l'achat de ce bien !

*Choissisez une durée d'emprunt

Simulez votre mensualité avec notre partenaire ImmoBanques


Calculez votre temps de trajet depuis ce bien



Les informations locales du quartier Recouvrance - 4 Moulins de Brest

  • Transports
    • Arrêts de bus
    • Gares
    • Tramways
    • Arrêts de métro, RER
    • Aéroports
    • Parkings
  • Santé
    • Médecins généralistes
    • Médecins spécialistes
    • Pharmacies
    • Hôpitaux
  • Education Petite enfance
    • Crèches
    • Ecoles maternelles
    • Ecoles primaires
    • Collèges
    • Lycées
    • Enseignements supérieur
  • Loisirs & Culture
    • Restaurants, Cafés
    • Monuments, Bibliothèques
    • Sport
    • Espaces verts
    • Théatres, Cinémas, Casinos
  • Commerces Administration
    • Supermarchés
    • Bureaux de poste
    • Boulangeries
    • Boucheries
    • Marchés
    • Mairies, Police, Gendarmerie

Plus d’informations sur la ville de Brest

  • Population : 139 680 habitants
  • Propriétaires : 46 %
  • Résidences secondaires : 2 %
  • Revenus moyens : 1 960 euros / mois
  • Taxe d'habitation* : 21 %
  • Taxe foncière* : 24 %
  • Densité de logements : 16 log/ha
  • Type de maison : Maisons de ville
  • Logements sociaux : 18 %
  • Densité de population : 2 730 hab/km²

*Taux basé sur la valeur locative cadastrale

Agence immobilière ancien neuf Brest Recouvrance
31 RUE DE LA PORTE
29200 BREST